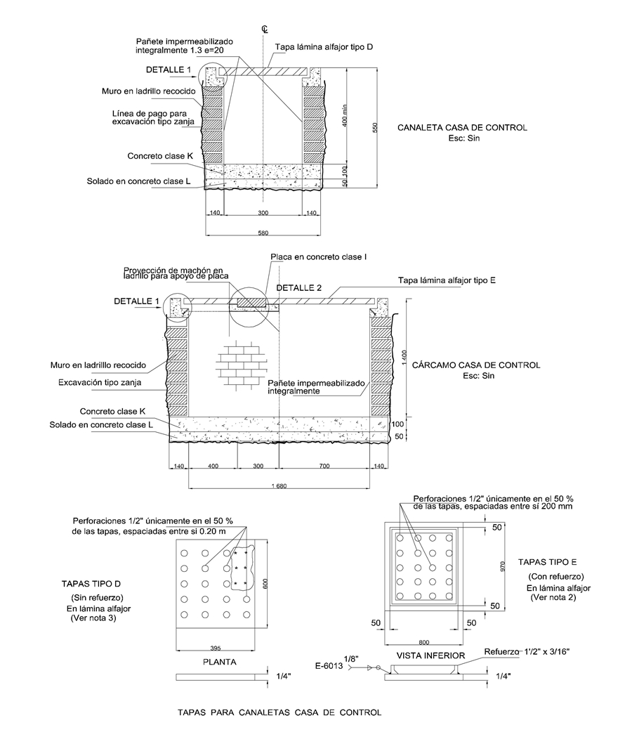
CTR633 Centro de transformación rural 34,5 kV. Obra civil. Canaletas y cárcamo. Casa de control
- Contenido
ESPECIFICACIONES
1-Las varillas corrugadas deben cumplir con la especificación A - 615 y las varillas lisas deben cumplir con la especificación A - 37.
2-Los concretos clase (H-I), K y L deben tener una resistencia a la compresión a los 28 días de 3 000, 2 500 y 1 400 p.s.i. respectivamente.
3-Lámina alfajor reticulada de calidad comercial A - 34 . Perfiles metálicos de calidad comercial A - 42. Soldadura de calidad comercial E - 6013.
4-Todos los elementos metálicos serán protegidos mediante la aplicación de dos capas de anticorrosivo y dos capas de acabado en aluminio.
NOTAS
1-Dimensiones en mm.
2-Las tapas de lámina Alfajor reforzadas tipo E, sólo se utilizarán en el cárcamo de la casa de control.
3-Las tapas de lámina Alfajor tipo D, se utilizarán en la canaleta de la casa de control.
DATOS ADICIONALES
Revisión #
0
Fecha de entrada en vigencia
Actividad de los usuarios
Para hacer comentarios debe iniciar sesión o registrarse aquí