Pasar al contenido principal
Navegación principal
HOME
NORMAS TÉCNICAS
ESPECIFICACIONES TÉCNICAS LOCALES
ESPECIFICACIONES TÉCNICAS CORPORATIVAS
CONTACTO
Menú de cuenta de usuario
Iniciar sesión
Sobrescribir enlaces de ayuda a la navegación
Inicio
Normas Técnicas
CENTROS DE TRANSFORMACIÓN PARA REDES AEREAS URBANOS Y RURALES
Centros De Transformación Rurales De 34,5 KV. Obra Civil
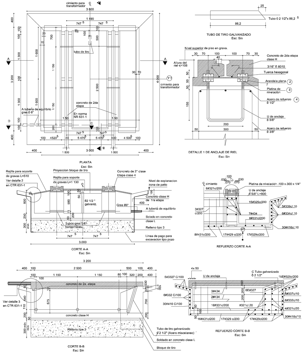
CTR631 Centro De Transformación Rural 34,5 Kv. Obra Civil. Cimiento Para El Transformador De Potencia
CTR631 Centro de transformación rural 34,5 Kv. Obra civil. Cimiento para el transformador de potencia
Contenido
DATOS ADICIONALES
Revisión #
1
Fecha de entrada en vigencia
15 Marzo 1999
HERRAMIENTAS
Descargar archivo
RELACIONADAS
Actividad de los usuarios
Para hacer comentarios debe
iniciar sesión
o registrarse
aquí
Estado del comentario
X
×
Actividad de los usuarios
Para hacer comentarios debe iniciar sesión o registrarse aquí