AP190 Circuitos exclusivos y marcación para circuitos de alumbrado público

  • Contenido

Transformadores exclusivos de alumbrado público

Para uso exclusivo de Alumbrado Público las capacidades de los transformadores trifásicos son: 30, 45 y 75 kVA. Para transformadores monofásicos las capacidades son: 10, 15, 25, 37.5, 50 kVA

Los transformadores trifásicos tendrán salida en BT trifásicas, tetrafilares a 380/220 V.

En los transformadores monofásicos la salida en BT será monofásica trifilar a 480/240 V.

Antes de la entrada en vigencia del RETILAP Enel Colombia utilizaba transformadores exclusivos de alumbrado público en vías arterias (V0, V1, V2 y V3) con relación 11,4 kV - 480/277 V.

Los transformadores pueden ser instalados en centros de transformación capsulados, tipo pedestal o montados en poste, de acuerdo con las especificaciones de cada proyecto.

En vías arterias V2 y V3, también se utilizan transformadores de distribución a 208 voltios, de las mismas capacidades de los transformadores exclusivos de alumbrado o se conectan las luminarias a circuitos alimentados por transformadores de las redes de distribución de la zona o sector, en proyectos previamente aprobados por la empresa.

Para los transformadores de uso exclusivo de AP mayores a 5 kVA se tendrán medidores de energía que realicen la medida de los equipos asociados.


Transformadores compartidos de alumbrado público

Para redes de uso general en BT de Enel Colombia y que alimenten el alumbrado público, la tensión será a 208 V, derivadas del sistema de 208/120 V. En circuitos monofásicos 120/240 V, la tensión para el AP será de 240 V.


Protección contra cortocircuito de los circuitos subterráneos exclusivos de alumbrado

Para proteger los circuitos subterráneos exclusivos de alumbrado público de avenidas, se utilizan barrajes preformados de baja tensión con fusibles limitadores de corriente de cable , ver norma AP820 . Estos barrajes se alojan dentro de la caja de inspección, a la salida del transformador de alumbrado, se instala uno por fase y a dicho barraje se conectan los cables de cada uno de los circuitos de alumbrado.

Los fusibles limitadores de corriente de cable , ver norma AP859 , protegen los cables de los circuitos de alumbrado público contra corrientes de cortocircuito . La acción rápida del fusible limitador de corriente de cable , previene el daño del aislamiento del cable , evitando que se quemen tramos de gran magnitud.

A diferencia de otros fusibles, la selección de la capacidad de corriente del fusible limitador de corriente de cable , se designa por el calibre del cable y no de la corriente de carga. Estos fusibles no responden a corrientes de sobrecarga.

Como en cualquier otro fusible, el tiempo requerido para que el fusible limitador de cable despeje una falla de cortocircuito , es función de la corriente de falla . Los limitadores de corriente de cable aíslan una falla en acometidas múltiples alimentadas por un solo transformador.

En instalaciones no residenciales de baja tensión , como es el caso de los circuitos de alumbrado público, se deben usar fusibles limitadores de corriente de cable de 600 voltios.

Los fusibles limitadores de cable , vienen con diferentes formas en sus terminales: terminal tipo pala o terminal tipo vástago. Para poder instalar los fusibles limitadores de cable en los barrajes preformados de baja tensión , se necesita que al menos uno de sus terminales sea tipo pala (Ver norma AP820 ).

Como alternativa para proteger los circuitos subterráneos exclusivos de alumbrado público alimentados desde transformadores en poste, se instalarán seccionadores portafusibles con fusibles NH (Ver AP402 ).


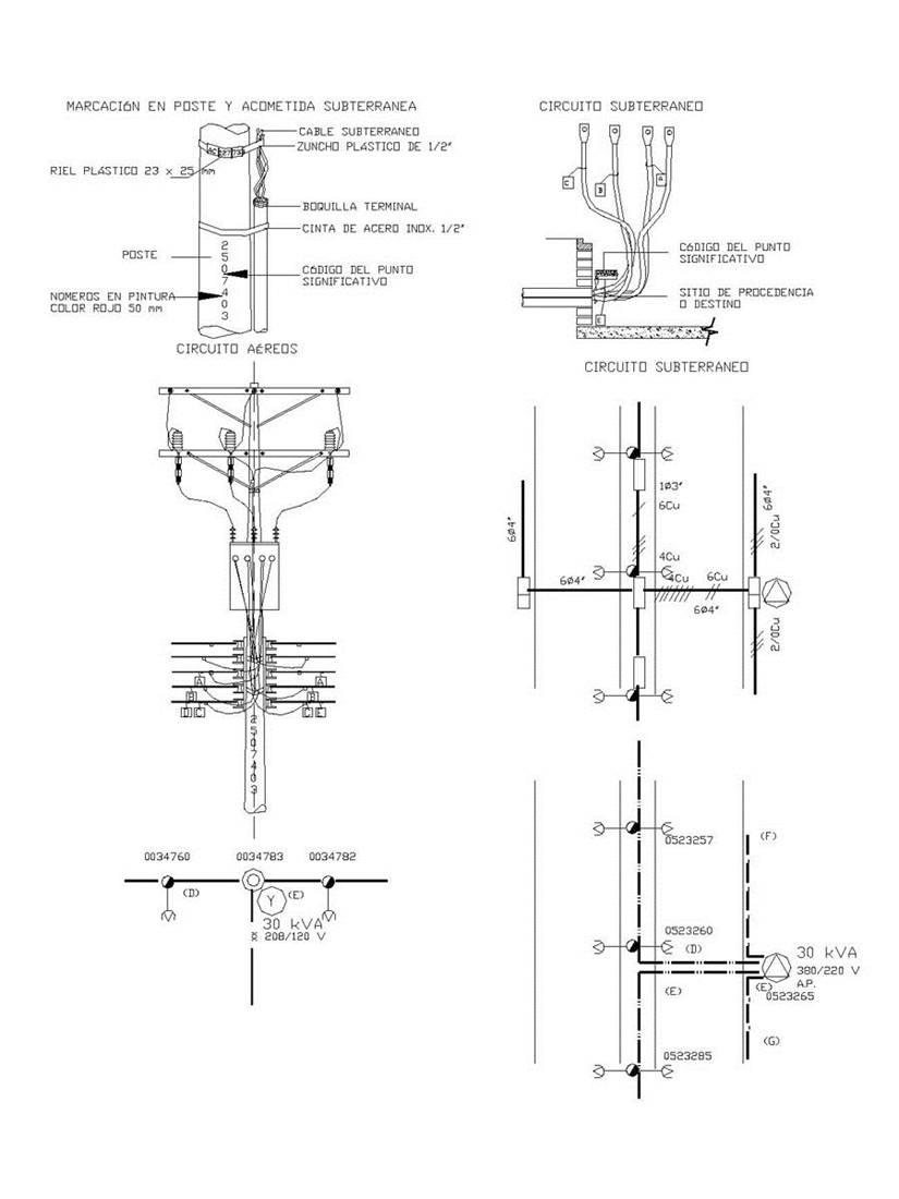
Marcación de los circuitos de baja tensión de alumbrado público

El sistema de distribución de la empresa está consignado dentro de una base de datos llamado sistema de Información de Distribución de Enel Colombia (SID) SDA. Para identificar los puntos físicos de la red y relacionarlos con la base de datos se creo el concepto de "Punto Significativo".


Códigos de punto significativo

En la red de baja tensión de alumbrado público se definen como puntos significativos los siguientes:


a) En los circuitos aéreos los postes en los cuales se apoyan las luminarias.

b) En los circuitos subterráneos son puntos significativos donde existen: derivaciones de ramales, acometidas a luminarias, cambio apreciable de rumbo y a la salida de un transformador de distribución.


Al punto significativo le corresponde un código formado por un número de 7 dígitos y adicionalmente puede tener un octavo carácter de un número o una letra que distingue puntos eléctricamente distintos pero localizados en el mismo lugar y pertenecientes al mismo circuito.

El número colocado en la octava posición representa la cantidad de veces que el circuito pasa por un punto físico, esto suele ocurrir con los circuitos subterráneos, los cuales pueden pasar varias veces por la misma caja de inspección. La letra colocada en la octava posición se usa para fraccionar e identificar los diferentes puntos eléctricos de los equipos instalados en un punto significativo, por ejemplo el punto significativo de un centro de transformación de distribución.

El octavo dígito del punto significativo es indispensable para la correcta determinación de la topología del circuito.

El código de los puntos significativos es marcado con pintura de color rojo, en números de un tamaño de 5 cm, de la siguiente manera:


a) En los postes y centro de transformación los puntos significativos son marcados en sentido vertical.

b) En los centro de transformación se podrá marcar en forma vertical u horizontal de acuerdo con el sitio donde se efectúe la marcación; pero siempre buscando que el código quede en un lugar visible.

c) En las cajas de inspección se marcará en sentido horizontal, sobre una lámina de aluminio de 45 cm x 10 cm , la cual se fijará a una de las paredes de la caja con puntillas.


Marcación de fases

En la marcación de las fases de los circuitos de baja tensión se utilizan placas de acero de 4 x 4 cm , fijándose con alambre de cobre a la fase respectiva (A, B ó C), en los siguientes sitios:

a) En la red aérea en el arranque del circuito (transformador), cada tres tramos (siempre y cuando haya luminarias) y en los finales de circuito o derivación.

b) En la red subterránea en el arranque de los circuitos (transformador), cambio de rumbo y en los barrajes preformados de baja tensión . Cuando el circuito no tenga cambios de rumbo ni barrajes preformados de baja tensión , se identifican las fases cada tres cajas.


Identificación de circuitos de baja tensión

Los diferentes circuitos de baja tensión de un mismo transformador se diferencian unos de otros, mediante la utilización de letras consecutivas comenzando por la letra "D", continuando con la letra "E" y así sucesivamente

Esta identificación se coloca en la siguiente forma:


a) En las redes aéreas abiertas los puntos de marcación de los circuitos de baja tensión , se hacen sobre el conductor, más o menos a un metro de distancia del poste y en la primera fase , contando de abajo hacia arriba. Se utilizan láminas de aluminio ó de acero inoxidable de 4 x 4 cm y se fijan con alambre de cobre en los siguientes sitios: arranque del circuito, cambio de rumbo y fin del circuito o derivación.

En la Norma AP-190 se muestra un transformador ubicado en el punto significativo 0034783 del cual salen dos (2) circuitos aéreos de baja tensión , los que se han diferenciado con las letras D y E.

b) En la red trenzada los puntos de marcación se identifican como circuito trifásico D,E, F, etc., de acuerdo con el número de salidas de baja tensión que tenga desde el transformador. Se utilizan láminas de aluminio ó de acero inoxidable de 4 x 4 cm y se fijan con alambre de cobre en los siguientes sitios: arranque del circuito, cambio de rumbo y fin del circuito o derivación, a más o menos a un metro de distancia del poste.

c) En la red subterránea los puntos de marcación se hacen a la salida del transformador, derivaciones de ramales y cambio apreciable de rumbo.


Se utilizan placas de aluminio ó acero inoxidable de 4 x 4 cm fijadas con alambre de cobre, abarcando todas las fases del circuito. En la Norma AP-190, se muestra un transformador tipo pedestal ubicado en el punto significativo 0032349 del cual salen cuatro (4) circuitos subterráneos de baja tensión , los que se han diferenciado con las letras D,E,F y G respectivamente.



DATOS ADICIONALES
Revisión #

1

Fecha de entrada en vigencia

HERRAMIENTAS
RELACIONADAS

Actividad de los usuarios

Estado del comentario