Pasar al contenido principal
Navegación principal
HOME
NORMAS TÉCNICAS
ESPECIFICACIONES TÉCNICAS LOCALES
ESPECIFICACIONES TÉCNICAS CORPORATIVAS
CONTACTO
Menú de cuenta de usuario
Iniciar sesión
Sobrescribir enlaces de ayuda a la navegación
Inicio
Normas Técnicas
ACOMETIDAS Y MEDIDORES
Cajas, Armarios Y Celdas
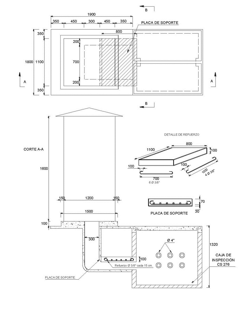
AE328-1 Celda De Medida En 11,4 Y 13,2 KV. Obra Civil
AE328-1 Celda de medida en 11,4 y 13,2 kV. Obra civil
Contenido
DATOS ADICIONALES
Revisión #
1
Fecha de entrada en vigencia
02 Diciembre 2009
HERRAMIENTAS
Descargar archivo
RELACIONADAS
Actividad de los usuarios
Para hacer comentarios debe
iniciar sesión
o registrarse
aquí
Estado del comentario
X
×
Actividad de los usuarios
Para hacer comentarios debe iniciar sesión o registrarse aquí