ET447 Herraje para montaje tipo bandera de seccionador bajo carga telecontrolado
- Contenido
1. OBJETO
Esta especificación técnica tiene por objeto establecer las características, los requisitos técnicos y los ensayo s que deben cumplir los herrajes para instalar seccionador bajo carga telecontrolado marca ICET, ColGiovanni y OEMB, en configuración bandera, definida en la norma LA5152. ALCANCE
Esta especificación técnica se aplicará en el Sistema de Distribución de Energía Eléctrica del área de operación de Enel Colombia S.A. ESP.3. CONDICIONES GENERALES.
3.1 Condiciones Ambientales.
Estos dispositivos serán utilizados en el sistema de distribución de energía del área de operación de Enel Colombia S.A. E.S.P, bajo las siguientes condiciones:| CARACTERÍSTICAS AMBIENTALES | |
| a. Altura sobre el nivel del mar | 2,700 m |
| b. Ambiente | Tropical |
| c. Humedad | Mayor al 90 % |
| d. Temperatura máxima y mínima | 45 ºC y - 5 ºC respectivamente. |
| e. Temperatura promedio | 14 ºC. |
4. SISTEMAS DE UNIDADES
En todos los documentos técnicos se deben expresar las cantidades numéricas en unidades del sistema Internacional (S.I.). Si se usan catálogos, folletos o planos, en sistemas diferentes de unidades, deben hacerse las conversiones respectivas.5. NORMAS RELACIONADAS
| NORMA | DESCRIPCIÓN | |
| NTC | 1 | Ensayo de doblamiento para productos metálicos. |
| NTC | 2 | Ensayo de tracción para materiales metálicos. Método de ensayo a temperatura ambiente. |
| NTC | 23 | Determinación gravimétrica de carbono por combustión directa, en aceros al carbono. |
| NTC | 24 | Determinación de manganeso de aceros al carbono. Método del persulfato |
| NTC | 25 | Determinación de manganeso en aceros al carbono. Método del Bismutato. |
| NTC | 26 | Determinación de silicio en aceros al carbón. Método del ácido Perclórico. |
| NTC | 28 | Determinación de silicio en aceros al carbono. Método del ácido sulfúrico. |
| NTC | 180 | Método gasométrico para determinación de carbono por combustión directa en hierros y aceros al carbono. |
| NTC | 181 | Aceros al carbono y fundiciones de hierro. Método alcalimétrico para determinación de fósforo. |
| NTC | 402 | Perfiles de acero laminados en caliente para uso general. Ángulos de alas iguales y desiguales. Tolerancias en dimensiones y en masa. |
| NTC | 422 | Perfiles livianos y barras de acero al carbono acabadas en frío. |
| NTC | 858-2 | Elementos de fijación. Requisitos mecánicos y de materiales para elementos de fijación roscados exteriormente. |
| NTC | 858-3 | Elementos de fijación. Discontinuidades superficiales en pernos, tornillos y espárragos para aplicaciones generales. |
| NTC | 858-4 | Elementos de fijación. Discontinuidades superficiales en pernos, tornillos y espárragos para aplicaciones en fatiga. |
| NTC | 1645 | Elementos de fijación. Tuercas cuadradas y hexagonales. serie inglesa. |
| NTC | 2076 | Recubrimiento de cinc por inmersión en caliente para elementos en hierro y acero. |
| NTC | 3241 | Siderurgia. Determinación del espesor más delgado del recubrimiento de cinc. (galvanizado) en artículos de hierro y acero por inmersión de sulfato de cobre (método Preece). |
| NTC | 3320 | Recubrimiento de cinc. (galvanizado por inmersión en caliente) en productos de hierro y acero. |
| NTC | 1937 | Metales no ferrosos. Aluminio, magnesio y sus aleaciones. Designación de temples. |
| NTC ISO | 2859-1 | Procedimientos de muestreo para inspección por atributos. parte 1: planes de muestreo determinados por el nivel aceptable de calidad -NAC- para inspección lote a lote. |
Las normas citadas en la presente especificación (o cualquier otra que llegare a ser aceptada por Enel Colombia S.A. ESP.) se refieren a su última revisión.
6. REQUERIMIENTOS TÉCNICOS PARTICULARES
Los herrajes de la presente Especificación deben estar construidos con materiales de la mejor calidad para ese fin, descartando el empleo de materiales alterables por la humedad, radiación solar y otras condiciones ambientales desfavorables.Estos materiales deben estar libres de grietas, cavidades, sopladuras, defectos superficiales o internos y de toda otra falla que pudiera afectar su correcto funcionamiento.
6.1 Geométricos
Los herrajes deben cumplir con la forma y dimensiones que se muestran en las figuras, para el caso del seccionador marca ICET las figuras 1.a. y 1.b., para el seccionador marca ColGiovanni la figura 2.El acero debe ser de alta calidad que cumpla con la norma NTC 422; si el herraje es estampado en frío, el acero debe ser de bajo silicio o sea menor de 0,05% (A34 - SAE1010 ó SAE1020) o en su defecto deberá ser estampado en caliente.
Los tornillos o pernos, tuercas y arandelas deberán estar de acuerdo con las normas que disponga Enel Colombia para tal fin o en su defecto con las normas NTC 858-4; deberán tener un recubrimiento para evitar la corrosión .
6.2 Químicos
Los perfiles deben cumplir con los requisitos de la tabla 1:Tabla 1
| REQUISITOS QUÍMICOS | ||
| ELEMENTO | SAE 1010 | SAE 1020 |
| % Carbono | 0,08 a 0,13 | 0,18 a 0,22 |
| % Fósforo, máx. | 0,05 | 0,05 |
| % Azufre, máx | 0,05 | 0,05 |
| % Manganeso | 0,3 a 0,6 | 0,3 a 0,6 |
| % Silicio, máx | 0,05 | 0,05 |
6.3 Doblado en caliente
Si se requiere realizar este proceso la temperatura máxima permitida es de 650 grados centígrados. El fabricante debe garantizar esta temperatura sobre el perfil; se recomienda el uso de tizas térmicas de 620 grados y de 650 grados centígrados.6.4 Requisito s Mecánicos
Los herrajes deben cumplir satisfactoriamente los requisitos de resistencia estipulados para cada tipo de soporte.6.5 Requisito s del recubrimiento
Para el recubrimiento se acepta el galvanizado por inmersión en caliente y como alternativa el recubrimiento órgano metálico por micro capas ET470 .6.5.1 Galvanizado por inmersión en caliente.
Si se usa este procedimiento, los herrajes serán totalmente galvanizados por inmersión en caliente y deberán cumplir con lo especificado en la NTC 2076, además deben estar libres de burbujas, áreas sin revestimiento, depósitos de escoria u otro tipo de imperfecciones.
La capa de material de cinc utilizado será de calidad especial según norma NTC 2076 (tabla 2).
Tabla 2
| COMPOSICIÓN QUIMICA DEL CINC ( % ) | ||||
| GRADO | Plomo máx. | Hierro máx. | Cadmio máx. | Cinc, mín. |
| Especial | 0,03 | 0,02 | 0,02 | 99,9 |
Tabla 3
| REQUISITOS DE GALVANIZADO | ||||
| ELEMENTO | PROMEDIO | MINIMO | ||
| g/m 2 | µ m | g/m 2 | µ m | |
| Platinas o Láminas | 458 | 65,4 | 381 | 54,4 |
| Elementos Roscados | 397 | 56,6 | 336 | 48 |
6.5.2. Recubrimiento Órgano Metálico
El recubrimiento órgano metálico se realiza a base de cinc y aluminio, por micro capas de acuerdo con la especificación ET470 .
6.6 REQUISITOS DEL ACABADO
Los perfiles deben ser de una sola pieza, libres de soldaduras, libres de deformaciones, fisura, aristas cortantes, y defectos de laminación. No se permiten dobleces ni rebabas en las zonas de corte, perforadas o punzadas. El recubrimiento debe estar libre de burbujas, depósitos de escorias, manchas negras u otro tipo de imperfecciones.Para el caso del seccionador marca ColGiovanni, cada uno de los perfiles debe estar soldado mínimo en tres (3) partes a la placa base, las soldaduras deben efectuarse con AWS 6010 y/o AWS 7018 hasta lograr una penetración total; con una longitud mínima de 5 cm; todas las soldaduras deben estar libres de defectos tales como escoria atrapada, poros etc. Toda la escoria de soldadura debe ser retirada.
7. CRITERIOS DE ACEPTACIÓN O RECHAZO
Para este caso se considerará que existe un lote cuando, los materiales de los herrajes y los demás elementos pertenecen a un mismo lote de producción de materia prima y un mismo lote de producción, de no ser así deberá tomarse como lotes independientes, por los diferentes aspectos de materia prima y de producción.7.1 Muestreo
A menos que se especifique otra condición, el muestreo se llevará a cabo tomando muestras para cada prueba de acuerdo a lo indicado en la tabla 5 y tabla 6, según la norma NTC ISO 2859-1.7.2 Aceptación o Rechazo
Si el número de elementos defectuosos es menor o igual al correspondiente número de defectuosos dado en la tercera columna de las Tablas 4 y 5, se deberá considerar que el lote cumple con los requisitos relacionados en el numeral 7 de esta especificación; en caso contrario el lote se rechazará.Tabla 4. PLAN DE MUESTREO PARA INSPECCIÓN VISUAL Y DIMENSIONAL
(NIVEL DE INSPECCIÓN II, NAC = 2,5%)(NORMA NTC-ISO 2859-1 TABLA1 - TABLA 2A)
| TAMAÑO DEL LOTE | TAMAÑO DE LA MUESTRA | NUMERO PERMITIDO DE DEFECTUOSOS | NUMERO DEFECTUOSOS PARA RECHAZO |
| 2 a 8 | A = 2 | 0 | 1 |
| 9 a 15 | B = 3 | 0 | 1 |
| 16 a 25 | C = 5 | 0 | 1 |
| 26 a 50 | D = 8 | 1 | 2 |
| 51 a 90 | E = 13 | 1 | 2 |
| 91 a 150 | F = 20 | 1 | 2 |
| 151 a 280 | G = 32 | 2 | 3 |
| 281 a 500 | H = 50 | 3 | 4 |
| 501 a 1200 | J = 80 | 5 | 6 |
| 1201 a 3200 | K =125 | 7 | 8 |
| 3201 a 10000 | L =200 | 10 | 11 |
Tabla 5. PLAN DE MUESTREO PARA LOS ENSAYOS MECÁNICOS
(NIVEL DE INSPECCION ESPECIAL S-3, NAC = 2,5%)(NORMA NTC-ISO 2859-1 TABLA1 - TABLA 2A)
| TAMAÑO DEL LOTE | TAMAÑO DE LA MUESTRA | NUMERO PERMITIDO DE DEFECTUOSOS | NUMERO DEFECTUOSOS PARA RECHAZO |
| 2 a 8 | A = 2 | 0 | 1 |
| 9 a 15 | A = 2 | 0 | 1 |
| 16 a 25 | B = 3 | 0 | 1 |
| 26 a 50 | B = 3 | 0 | 1 |
| 51 a 90 | C = 5 | 1 | 2 |
| 91 a 150 | C = 5 | 1 | 2 |
| 151 a 280 | D = 8 | 1 | 2 |
| 281 a 500 | D = 8 | 1 | 2 |
| 501 a 1200 | E = 13 | 1 | 2 |
| 1201 a 3200 | E = 13 | 1 | 2 |
| 3201 a 10000 | F = 20 | 1 | 2 |
Para efectuar cualquier despacho, es requisito indispensable una autorización escrita de Enel Colombia S.A., la cual será expedida con base en los resultados de las pruebas realizadas en fábrica y/o la aprobación del protocolo de pruebas realizadas por el fabricante a los bienes solicitados.
8. PRUEBAS E INFORME
8.1 Prueba Dimensional
La verificación de las dimensiones se hará con los instrumentos de medida que den la aproximación requerida (cinta metálica con divisiones de 1 mm para longitudes y calibrador para los diámetros y espesores). El tamaño de la muestra deberá estar de acuerdo con la tabla de dimensiones para cada tipo de soporte.8.2 Análisis Químico
Se efectuará el análisis químico de acuerdo a lo requerido en el numeral 7.2 y las normas NTC 23 y 180 (carbono), NTC 27 (azufre), NTC 181 (fósforo), NTC 24 o 25 (manganeso), NTC 26 o 28 (silicio) o en su defecto se aceptará un certificado de calidad de los materiales empleados, emitido por un laboratorio reconocido y aprobado por Enel Colombia S.A. ESP. El análisis químico puede ser realizado en un espectrómetro calibrado con los patrones correspondientes.8.3 Prueba Mecánica
Como se menciona anteriormente, los soportes deberán cumplir con los requisitos de resistencia a la rotura y soportar los esfuerzos mecánicos especificados para cada tipo.8.4 Prueba del recubrimiento
Para elementos galvanizados, esta prueba se hará de acuerdo a la norma NTC 2076. Para los elementos de fijación - tornillos, tuercas, arandelas se harán las pruebas de acuerdo a la NTC 3241 con los siguientes requisitos establecidos en la tabla Nº 6.Tabla 6. PRUEBA DE GALVANIZADO
| ELEMENTO | NUMERO DE INMERSIONES |
| Ángulos, Platinas | 6 |
| Tornillos, Parte no roscada | 6 |
| Parte roscada | 4 |
| Arandelas | 4 |
Si el recubrimiento es órgano metálico esta prueba debe realizarse con la especificación ET470.
La prueba de espesor de recubrimiento se efectuará mediante la utilización de un ecómetro debidamente calibrado.
8.5 Informe de Pruebas
El proveedor presentará un informe de las pruebas a Enel Colombia S.A. ESP, adicionando, si fuera el caso, sus observaciones y comentarios. En caso de requerirse las pruebas deberán hacerse con la presencia de un funcionario de Enel Colombia S.A. ESP.- Dimensiones de las muestras.
- Resultados del análisis químico o certificado de la calidad del acero.
- Resultados de la prueba de tracción.
- Resultados del espesor y la adherencia de la capa del recubrimiento.
- Resultado de las pruebas metalográficas y de dureza.
9. EMPAQUE Y ROTULADO
9.1 Empaque
Los tornillos irán con sus tuercas y arandelas instaladas, se empacarán independientemente de las platinas en cajas de madera o cartón de tal manera que no sufran durante el transporte, manipuleo y almacenamiento.La platina y la base metálica deben empacarse de tal manera que no sufran durante el transporte, manipulación y almacenamiento
9.2 Rotulado
En cada empaque se colocará un rótulo con la siguiente información.- Descripción del contenido con su referencia y cantidad.
- Nombre y razón social del proveedor.
- País de origen.
- Peso (kg).
9.3 Marcación.
Se deben marcar las piezas en letras de 6 mm o más en bajo relieve con:- Logotipo o nombre del fabricante.
- BOG-CUN.
- Año de fabricación.
10. COMPONENTES, GRÁFICOS Y DIMENSIONES:
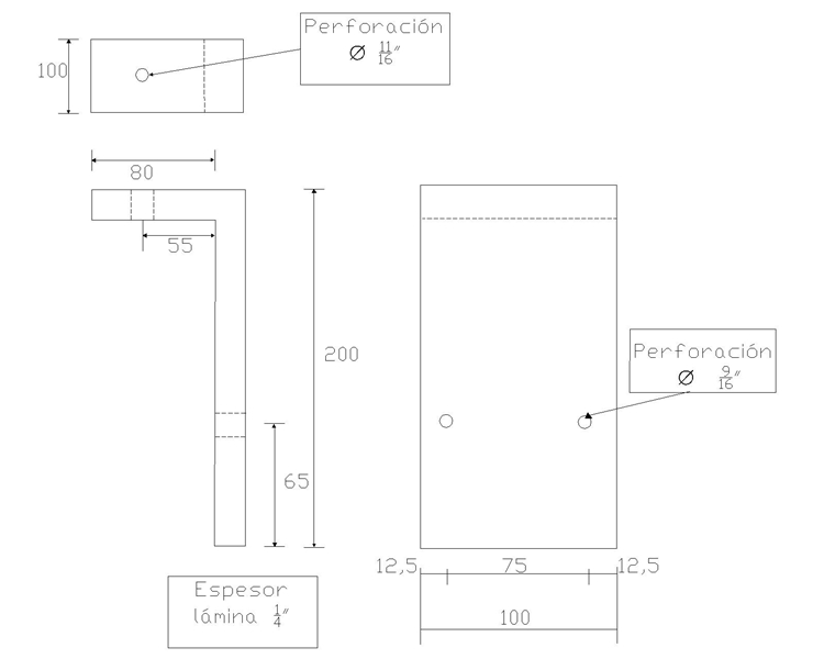
-Herrajes para RGDAT
Figura 1. Platinas para RGDAT
Nota: las dimensiones sin unidad se encuentran en mm.
Listado de materiales del kit de soporte para la RGDAT:
Tabla 7. Listado de materiales del kit de soporte para la RGDAT
| Cantidad | Descripción |
| 3 | Platina de ¼” tipo L Fig. 1 |
| 3 | Tornillos de ½” X 6”, para fijación a cruceta con arandelas redondas y de presión |
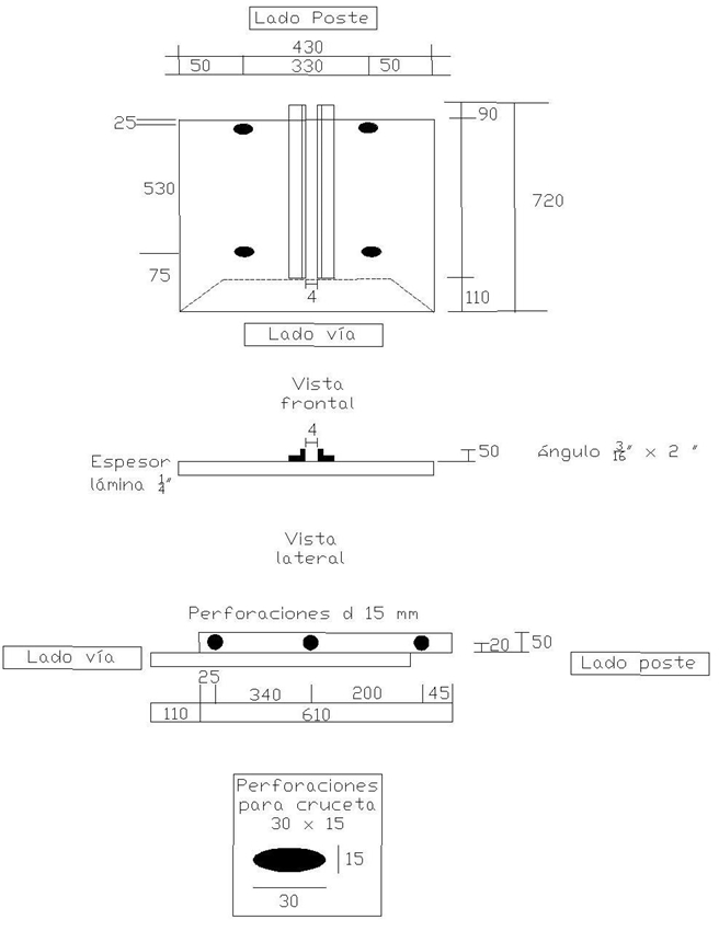
-Herrajes para Seccionador marca ICET
Figura 2. Base Seccionador bajo carga telecontrolado marca ICET para instalar en bandera.
Nota: las dimensiones sin unidad se encuentran en mm.
Listado de materiales del kit de soporte para soporte del seccionador:
Tabla 8. Listado de materiales incluidos en el kit para instalar seccionador marca Icet
| Cantidad | Descripción |
| 1 | Base metálica Fig. 2 |
| 4 | Tornillos de ½” X 6”, para fijación a cruceta con arandelas redondas y de presión |
| 4 | Tornillos de acero inoxidable M12 X 1” paso 1,75 mm, para fijación a seccionador con arandelas redondas |
-Herrajes para Seccionador marca ColGiovanni
Figura 3. Base Seccionador bajo carga telecontrolado marca ColGiovanni para instalar en bandera.
Nota: las dimensiones sin unidad se encuentran en mm.
Listado de materiales del kit de soporte para soporte del seccionador marca ColGiovanni:
Tabla 9. Listado de materiales incluidos en el kit para instalar seccionador marca ColGiovanni
| Cantidad | Descripción |
| 1 | Base metálica Fig. 3 |
| 4 | Tornillos de ½” X 6”, para fijación a cruceta con arandela redondas, arandela de presión y tuerca. |
| 2 | Tornillos de acero inoxidable ½” X 2”, para fijación base del seccionador con arandela redonda, arandela de presión y tuerca. |
| 1 | Tornillos de acero inoxidable de 3/8” X 2”, para fijación base del seccionador con arandela redonda, arandela de presión y tuerca. |
-Herrajes para Seccionador marca OEMB
Figura 4. Base Seccionador bajo carga telecontrolado marca OEMB para instalar en bandera.
Nota: las dimensiones sin unidad se encuentran en mm.
Listado de materiales del kit de soporte para soporte del seccionador marca OEMB:
Tabla 10. Listado de materiales incluidos en el kit para instalar seccionador marca OEMB
| Cantidad | Descripción |
| 1 | Base metálica Fig. 4 |
| 4 | Tornillos de ½” X 6”, para fijación a cruceta con arandela redondas, arandela de presión y tuerca. |
| 4 | Tornillos de acero inoxidable 12 X 45 paso 1,75 mm, para fijación a seccionador con arandelas redondas |
ANEXO 1. CARACTERÍSTICAS TÉCNICAS GARANTIZADAS
| N° | DESCRIPCIÓN | OFERTADO | ||
| 1 | Proponente | Fabricante | ||
| País de fabricación | ||||
| Representante del fabricante | ||||
| 2 | Normas | Fabricación y pruebas | ||
| 3 | Material de fabricación | |||
| 4 | Espesor lámina (pulgadas o mm) | |||
| 5 | Forma y Dimensiones de acuerdo a las figuras 1, 2, 3 o 4 (Si/No) | |||
| 6 | Esfuerzo mecánico mínimo soportado (kgf) | |||
| 7 | Listado de materiales incluidos, tabla 7, 8, 9 o 10 (Si/No) | |||
| 8 | Recubrimiento | Galvanizado | Tipo (Describir) | |
| Espesor (min/prom, µm) | ||||
| Órgano Metálico | Grado de corrosión (indicar alto / medio acorde con ET470) | |||
| Espesor capa ( µm) | ||||
| Horas mínimas de SST- Salt Spray Test | ||||
| Cumple con los ensayos indicados en la ET470 | ||||
| 9 | Ensayos | Prueba dimensional | ||
| Prueba química | ||||
| Prueba de recubrimiento (espesor y adherencia) | ||||
| Ensayo mecánico | ||||
| Están incluidas dentro del precio del material (Si/No) | ||||
| A realizar en fabrica (Describir) | ||||
| 10 | Cumple con la marcación solicitada (Si/No, describir) | |||
| 11 | Desviaciones presentadas | |||
| 12 | Garantía (meses) | |||
| RESULTADO DE EVALUACIÓN TÉCNICA | ||||
| 13 | Certificado Sistema de Gestión de Calidad ISO 9001 | Entidad certificadora | ||
| Número de certificado | ||||
| Fecha de aprobación (Día/Mes/Año) | ||||
| Vigencia | ||||
| Adjunta el certificado (Si/No) | ||||
| RESULTADO DE EVALUACIÓN REGULATORIA | ||||
| 14 | Observaciones | |||
DATOS ADICIONALES
Revisión #
2
Fecha de entrada en vigencia
Actividad de los usuarios
Para hacer comentarios debe iniciar sesión o registrarse aquí