ET417 Percha porta aisladores para redes de B.T. abiertas
- Contenido
1. OBJETO
Esta especificación técnica tiene por objeto establecer las características y requisitos técnicos que deben cumplir y los ensayos a los cuales deben ser sometidos las perchas porta aisladores para uso en redes de BT abiertas en estructuras de paso y retención que solicitará Enel Colombia.2. ALCANCE
Esta especificación técnica se aplicará en todas las perchas porta aisladores para redes de BT abiertas que adquiera Enel Colombia; las perchas son de 1, 2, 3, 4 y 5 puestos para instalación de redes aéreas abiertas.3. SERVICIO
Estos herrajes se usan para montar aisladores de red abierta y/o fijar otros elementos a postes y son de servicio continuo. Estas van sujetas por medio de abrazaderas ó cinta metálica, tangentes al poste.4. SISTEMA DE UNIDADES
En todos los documentos técnicos se deben expresar las cantidades numéricas en unidades del sistema Internacional (S.I.). Si se usan catálogos, folletos o planos, en sistemas diferentes de unidades, deben hacerse las conversiones respectivas.5. NORMAS RELACIONADAS
| NORMA | DESCRIPCIÓN | |
| NTC | 422 | Perfiles livianos y barras de acero al carbono acabadas en frío. |
| NTC | 858 | Pernos y Tuercas |
| NTC | 2076 | Electricidad . Galvanizado por inmersión en caliente para herrajes y perfiles estructurales de hierro y acero. |
| NTC | 2607 | ELECTROTECNIA. HERRAJES Y ACCESORIOS PARA REDES Y LÍNEAS AÉREAS DE DISTRIBUCIÓN DE ENERGÍA ELÉCTRICA. PERCHAS |
Pueden emplearse otras normas internacionalmente reconocidas equivalentes o superiores a las aquí señaladas, siempre y cuando se ajusten a lo solicitado en la presente especificación técnica .
Las normas citadas en la presente especificación (o cualquier otra que llegare a ser aceptada por Enel Colombia) se refieren a su última revisión.
6. REQUISITOS
Son elementos de características geométricas y mecánicas tales que les permiten adaptarse a las limitaciones impuestas por otros elementos y por los postes. Las perchas porta aislador para redes de BT abiertas deberán estar formadas por láminas metálicas, deben ser de alta calidad y cumplir la norma NTC – 422; si las perchas son estampada en frío, el acero debe ser de bajo silicio o sea menor de 0,05% (A34 - SAE1010 ó SAE1020) o en su defecto, deberá ser estampada en caliente.El ensamble entre el porta elemento y el cuerpo de la percha, podrá hacerse remachado con remache de aluminio, en el caso en que los dos elementos se les aplique recubrimiento para evitar la corrosión separadamente; o deben ir soldados dejando un espacio entre los dos elementos de por lo menos 2mm para que penetre el recubrimiento cuando este se aplique con la percha ya ensamblada.
Los tornillos o pernos, tuercas y arandelas deberán estar de acuerdo con las normas que disponga Enel Colombia para tal fin o en su defecto con la NTC 858 ; deberán tener un recubrimiento para evitar la corrosión .
Los pines de seguridad serán del tipo auto retención y fabricados en latón, bronce o acero inoxidable.
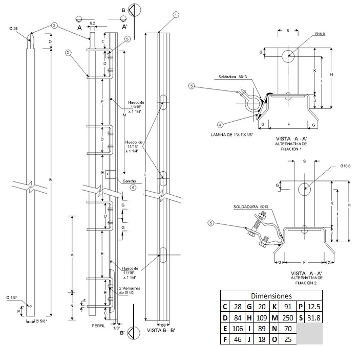
Las perchas de 2 a 5 puestos deben incluir gancho de soporte del brazo de la luminaria; la forma y dimensiones del gancho se indican en la figura 3.
6.1 GEOMÉTRICOS.
La forma y dimensiones de la perchas porta aisladores para redes de BT abiertas se muestran en la figura 1 y 2. El cuerpo de la percha debe ser en lámina de acero estampada (1/8”).6.2 QUÍMICOS.
Las platinas o láminas deben cumplir con los requisitos de la tabla 1.TABLA 1
| REQUISITOS QUÍMICOS DE LAS PLATINAS | ||
| ELEMENTO | SAE 1010 | SAE 1020 |
| % Carbono | 0,08 a 0,13 | 0,18 a 0,22 |
| % Fósforo, máx. | 0,05 | 0,05 |
| % Azufre, máx. | 0,05 | 0,05 |
| % Manganeso | 0,3 a 0,6 | 0,3 a 0,6 |
| % Silicio, máx. | 0,05 | 0,05 |
6.3 MECÁNICOS
Las platinas o láminas utilizadas para la fabricación de las perchas porta aisladores para redes de BT abiertas deben tener los siguientes requisitos mínimos:- Resistencia a la tracción 34,7 Kg/mm 2 (340 MN/m 2 ).
- Límite mínimo de fluencia 18,4 Kg/mm 2 (180 MN/m 2 ).
- Elongación 30% en 50 mm (2pulg.).
6.4 DOBLADO EN CALIENTE
La temperatura máxima permitida es de 650ºC. El fabricante debe garantizar ésta temperatura sobre la platina; se recomienda el uso de tizas térmicas de 620ºC y de 650ºC.6.5 REQUISITOS DEL RECUBRIMIENTO
Para el recubrimiento se acepta el galvanizado por inmersión en caliente y como alternativa el recubrimiento órgano metálico por micro capas. La determinación del tipo de recubrimiento lo realizará Enel Colombia en el proceso de licitación.6.5.1 Galvanizado por inmersión en caliente.
Las perchas porta aislador para redes de BT Abiertas existentes serán totalmente galvanizadas por inmersión en caliente y deberán cumplir con las especificaciones técnicas de la norma NTC 2076 y deben estar libres de burbujas, áreas sin revestimiento, depósitos de escoria, manchas negras y cualquier otro tipo de inclusiones o imperfecciones.La capa de material de cinc utilizado será de calidad especial según norma NTC 2076 (tabla 2).
TABLA 2.
| COMPOSICIÓN QUÍMICA DEL CINC ( % ) | ||||
| GRADO | Plomo máx. | Hierro máx. | Cadmio máx. | Cinc, mín. |
| Especial | 0,03 | 0,02 | 0,02 | 99,9 |
TABLA 3
| REQUISITOS DE GALVANIZADO | ||||
| ELEMENTO | PROMEDIO | MÍNIMO | ||
| g/m 2 | µ m | g/m 2 | µ m | |
| Platinas o Láminas | 458 | 65,4 | 381 | 54,4 |
| Elementos Roscados | 397 | 56,6 | 336 | 48 |
6.5.2 Recubrimiento Órgano – Metálico*
El recubrimiento órgano metálico se realiza a base de zinc y aluminio, por micro capas de acuerdo con la especificación ET 470 .6.6 REQUISITOS DEL ACABADO
Los perfiles deben ser de una sola pieza, libres de soldaduras, libres de deformaciones, fisura, aristas cortantes, y defectos de laminación. No se permiten dobleces ni rebabas en las zonas de corte, perforadas o punzadas.El recubrimiento debe estar libre de burbujas, depósitos de escorias, manchas negras, excoriaciones y/u otro tipo de inclusiones.
7. CRITERIOS DE ACEPTACIÓN O RECHAZO
Si el número de elementos defectuosos es menor o igual al correspondiente número de defectuosos definidos a continuación, se deberá considerar que el lote cumple con los requisitos técnicos exigidos por Enel Colombia, en caso contrario, el lote se rechazará.Inspección Visual y Dimensional
De acuerdo a la tabla a continuación.
| Tabla inspección visual y dimensional | |||
| Tamaño del lote | Muestra | Aceptado | Rechazado |
| 2 a 8 | 2 | 0 | 1 |
| 9 a 15 | 2 | 0 | 1 |
| 16 a 25 | 2 | 0 | 1 |
| 26 a 50 | 3 | 0 | 1 |
| 51 a 90 | 5 | 1 | 2 |
| 91 a 150 | 8 | 1 | 2 |
| 151 a 280 | 13 | 1 | 2 |
| 281 a 500 | 20 | 2 | 3 |
| 501 a 1200 | 32 | 3 | 4 |
| 1201 a 3200 | 50 | 5 | 6 |
| 3201 a 10000 | 80 | 6 | 7 |
| 10001 a 35000 | 125 | 8 | 9 |
| 35001 a 150000 | 200 | 10 | 11 |
| 150001 a 500000 | 315 | 10 | 11 |
Ensayos mecánicos
De acuerdo a la tabla a continuación.
| Tabla inspección visual y dimensional | |||
| Tamaño del lote | Muestra | Aceptado | Rechazado |
| 2 a 8 | 2 | 0 | 1 |
| 9 a 15 | 2 | 0 | 1 |
| 16 a 25 | 2 | 0 | 1 |
| 26 a 50 | 2 | 0 | 1 |
| 51 a 90 | 2 | 0 | 1 |
| 91 a 150 | 2 | 0 | 1 |
| 151 a 280 | 3 | 0 | 1 |
| 281 a 500 | 3 | 0 | 1 |
| 501 a 1200 | 5 | 1 | 2 |
| 1201 a 3200 | 6 | 1 | 2 |
| 3201 a 10000 | 8 | 1 | 2 |
| 10001 a 35000 | 8 | 1 | 2 |
| 35001 a 150000 | 13 | 1 | 2 |
| 150001 a 500000 | 13 | 1 | 2 |
8. PRUEBAS
8.1 PRUEBAS TIPO
8.1.1 Prueba dimensional
La verificación de las dimensiones se hará con los instrumentos de medida que den la aproximación requerida (cinta metálica con divisiones de 1mm para longitudes y calibrador para los diámetros y espesores). El tamaño de la muestra deberá estar de acuerdo con la tabla 4.Las tolerancias permitidas son:
- ±3 mm: Para longitudes mayores a 25 mm,
- ±1,5 mm: Para longitudes iguales o menores de 25 mm,
- +1 mm, - 0 mm: Para diámetros o dimensiones de perforaciones y
- +1 mm, - 0,3 mm: Para espesores.
8.1.2 Análisis químico
Se efectuará el análisis químico de acuerdo a lo requerido en el numeral 6.2 y las normas NTC 23 y 180 (carbono), NTC 27 (azufre), NTC 181 (fósforo), NTC 24 o 25 (manganeso), NTC 26 o 28 (silicio) o en su defecto se aceptará un certificado de calidad de los materiales empleados, emitido por un laboratorio reconocido y aprobado por Enel Colombia. El análisis químico puede ser realizado en un espectrómetro calibrado con los patrones correspondientes.8.1.3 Pruebas mecánicas
La percha se debe sujetar firmemente a un bloque de metal, la carga total debe distribuirse equitativa y simultáneamente sobre los aisladores de acuerdo a la figura 3, se deben utilizar aisladores de porcelana en todas las pruebas.La deflexión cero se debe establecer con una carga inicial de 222 N (50 lbs) aplicada a cada aislador , la carga se debe aplicar a una velocidad de 10mm/mín, la carga debe medirse cada 1.6mm (1/16”) hasta llegar a 6,4mm (1/4”), en este punto se regresa a la carga inicial de 222 N (50 lbs) por aislador y se mide la deflexión permanente.
Después de registrar este valor se carga nuevamente y se deben tomar datos cada 1,6mm (1/16”) de la flexión hasta alcanzar el valor de 9,5mm (3/8”), el valor de carga registrada para esta flexión debe ser igual o mayor que el valor correspondiente de la tabla 6. La flexión permanente en ningún caso debe exceder 4,76mm (3/16”); la flexión presentada con la carga de flexión (figura 3) no debe ser mayor de 4,76mm (3/16”).
TABLA 6.
ESPECIFICACIONES PARA PRUEBA DE RESISTENCIA
| PUESTOS | CARGA TOTAL DE TRACCIÓN | CARGA POR AISLADOR | CARGA DE FLEXIÓN | |||
| KN | Lbs | KN | Lbs | KN | Lbs | |
| P -1 | 1800 | 1800 | ||||
| P -2 | 18 | 3600 | 9 | 1800 | 18 | 3600 |
| P -3 | ||||||
| P-4 | 32 | 7200 | 6,4 | 1800 | 9,8 | 2200 |
| P-5 | 33,4 | 7500 | 11 | 2500 | 5,3 | 1200 |
8.1.4 Prueba de recubrimiento
Para elementos galvanizados, esta prueba se hará de acuerdo a la norma NTC 2076. Para los elementos de fijación - tornillos, tuercas, arandelas se harán las pruebas de acuerdo a la NTC 3241 con los siguientes requisitos establecidos en la tabla 7.TABLA 7.
PRUEBA DE GALVANIZADO
| ELEMENTO | NÚMERO DE INMERSIONES |
| Ángulos, Platinas | 6 |
| Tornillos, Parte no roscada | 6 |
| Parte roscada | 4 |
| Arandelas | 4 |
Si el recubrimiento es órgano metálico esta prueba debe realizarse con la especificación ET 470 .
La prueba de espesor de recubrimiento puede ser con un ecómetro debidamente calibrado.
8.2 PRUEBAS DE RECEPCIÓN
Las pruebas de recepción son:- Inspección visual
- Verificación dimensional
- Verificación certificados de calidad
- Verificación espesor de galvanizado
- Ensayo de Tracción
9. EMPAQUE, ROTULADO Y MARCACIÓN
9.1 EMPAQUE
Las perchas se empacarán en cajas de madera de tal manera que no sufran durante el transporte, manipuleo y almacenamiento. Los pines irán engrasados.9.2 ROTULADO
En cada caja se colocará un rótulo con la siguiente información:- Especificación del contenido con su referencia.
- Nombre y razón social del proveedor.
- País de origen.
- Cantidad de elementos.
- Peso unitario, peso total bruto y neto.
- Palabra Enel Colombia.
- Número de contrato o pedido.
- Fecha de entrega.
- Código de Almacén.
9.3 MARCACIÓN.
El material debe cumplir la siguiente marcación en bajo o en alto relieve. No se acepta pintura ni calcomanía.• Logo del fabricante
• Lote
• Enel Colombia
• Mes y año de fabricación
10. PRESENTACIÓN DE LAS OFERTAS
El Oferente obligatoriamente deberá incluir con su propuesta, la siguiente información:- Relación de los bienes cotizados.
- Información del oferente.
- Planilla de características técnicas garantizadas, la cual deberá ser diligenciada completamente en formato Excel.
- Catálogos originales, completos y actualizados del fabricante, que correspondan a los elementos cotizados en la planilla de características técnicas garantizadas.
- Relación de los ensayos realizados a la abrazadera de acuerdo con lo indicado en el apartado 8 de la presente especificación.
- El oferente adjuntará con su propuesta el certificado de conformidad de producto con noma técnica y con RETIE , expedido por una entidad autorizada por la ONAC. Además deberá presentar el certificado de calidad ISO 9001.
- Relación de clientes, evidencia de su capacidad técnica y experiencias relacionadas con los materiales y/o equipos cotizados.
- Carta de garantía de los bienes cotizados.
- En caso que se requiera se podrán exigir muestras de cada uno de los tipos ofertados sin cargo a devolución, con cada una de las características técnicas, solicitadas y mencionadas en la presente especificación.
- Se deben relacionar las excepciones de carácter exclusivamente técnico de la oferta, respecto a los bienes solicitados. Si la oferta no presenta excepción, se indicaría expresamente en el mismo “NO HAY EXCEPCIONES”
- Información adicional que considere aporta explicación a su diseño (dibujos, detalles, características de operación, dimensiones y pesos de los materiales ofertados).
Enel Colombia podrá descartar ofertas que no cumplan con las anteriores disposiciones, sin expresión de causa ni obligación de compensación.
11. GARANTÍA DE FÁBRICA
Enel Colombia requiere como mínimo, un período de garantía de fábrica de cuarenta y ocho (48) meses, a partir de la entrega de los bienes.
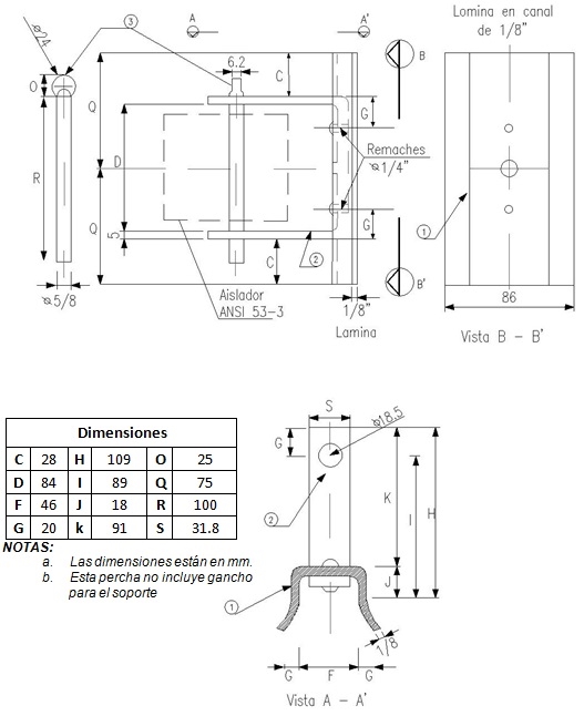
FIGURA 1. DIMENSIONES Y COMPONENTES
| ELEMENTOS QUE SE SUMINISTRAN | ||
| N° | CANTIDAD | DESCRIPCIÓN |
| 5 | 2 | Gancho soporte |
| 4 | 2 | Platina 1"x1"x1/8" soldada |
| 3 | 1 | Varilla de retención Ø 5/8" |
| 2 | Según Puestos | Porta elementos |
| 1 | 1 | Cuerpo percha |
| SÍMBOLO | CÓDIGO | Ref. | A | B | L | Puestos | Huecos |
| r 2 | 6762159 | P-2 | 200 | 300 | 350 | Dos | Tres |
| r 3 | 6762160 | P-4 | 200 | 700 | 750 | Cuatro | Siete |
| r 4 | 6762122 | P-5 | 200 | 900 | 950 | Cinco | Nueve |
| r 6 | 6162419 | P-3 | 200 | 500 | 550 | Tres | Cinco |
FIGURA 2. DIMENSIONES Y COMPONENTES PARA AISLADOR DE UN SOLO PUESTO
| ELEMENTOS - PERCHA DE UN PUESTO | ||
| N° | CANTIDAD | DESCRIPCIÓN |
| 3 | 1 | Varilla de retención Ø 5/8" |
| 2 | 1 | Porta elementos |
| 1 | 1 | Cuerpo percha |
| SÍMBOLO | CÓDIGO | DESCRIPCIÓN |
| r 5 | 6762220 | Percha de un puesto |
FIGURA 3. DETALLES PERCHAS (GANCHO Y PIN)
| Dimensiones en mm | |||||
| A | B | C | D | E | R |
| 30 | 3,175 | 25,4 | 50,8 | 4,763 | 4 |
FIGURA 4. ENSAYO DE TRACCIÓN
ANEXO 1. CARACTERÍSTICAS TÉCNICAS GARANTIZADAS
| N° | CARACTERÍSTICAS | OFERTADO | ||
| 1 | Fabricante | |||
| 2 | País de fabricación | |||
| 3 | Referencia | |||
| 4 | Normas de fabricación y ensayos | |||
| 5 | Material de fabricación | Percha | ||
| Pin | ||||
| D I M E N S I O N E S | ||||
| 6 | Percha | Espesor de la lamina | ||
| Espesor del porta elemento | ||||
| Numero de orificios en cuerpo de la percha | ||||
| Dimensiones de orificios en cuerpo de la percha XX x XX | ||||
| Diámetro de orificios en el porta elemento | ||||
| Dimensión | A | |||
| C | ||||
| D | ||||
| E | ||||
| F | ||||
| G | ||||
| H | ||||
| L | ||||
| M | ||||
| N | ||||
| O | ||||
| Q | ||||
| R | ||||
| S | ||||
| 7 | Varilla de retención | Diámetro de la varilla | ||
| Dimensión de la cabeza aplanada ø x ø | ||||
| Diámetro del orificio del pin | ||||
| Dimensión | B | |||
| P | ||||
| 8 | Gancho soporte | Alternativa utilizada | ||
| Dimensión | A | |||
| B | ||||
| C | ||||
| D | ||||
| E | ||||
| R | ||||
| Dimensión del tornillo de ajuste | ||||
| Dimensión del tornillo de fijación | ||||
| O T R O S | ||||
| 9 | Recubrimiento | Galvanizado | Tipo (Describir) | |
| Espesor (min/prom, µm) | ||||
| Órgano Metálico | Grado de corrosión (indicar alto / medio acorde con ET 470 ) | |||
| Espesor capa ( µm) | ||||
| Horas mínimas de SST- Salt Spray Test | ||||
| Cumple con los ensayos indicados en la ET 470 | ||||
| 10 | Pruebas / Ensayo | Prueba dimensional | ||
| Prueba química | ||||
| Prueba de recubrimiento (espesor y adherencia) | ||||
| Ensayo de tracción | ||||
| Ensayo de flexión | ||||
| Están incluidas dentro del precio del material (Si/No) | ||||
| A realizar en fabrica (Describir) | ||||
| 11 | Desviaciones presentadas | |||
| 12 | Garantía (meses) | |||
| RESULTADO DE EVALUACIÓN TÉCNICA | ||||
| 13 | Certificación del sistema de Calidad | Entidad acreditadora | ||
| Número de acreditación | ||||
| Fecha de aprobación (Día/Mes/Año) | ||||
| Vigencia | ||||
| Adjunta el certificado (Si/No) | ||||
| 14 | Certificación de producto con norma técnica | Entidad acreditadora | ||
| Número de acreditación | ||||
| Fecha de aprobación (Día/Mes/Año) | ||||
| Vigencia | ||||
| Norma técnica con la cual se certifica | ||||
| Adjunta el certificado (Si/No) | ||||
| 15 | Certificación de producto con RETIE | Entidad acreditadora | ||
| Número de acreditación | ||||
| Fecha de aprobación (Día/Mes/Año) | ||||
| Vigencia | ||||
| Adjunta el certificado (Si/No) | ||||
| RESULTADO DE EVALUACIÓN REGULATORIA | ||||
| 16 | Observaciones | |||
DATOS ADICIONALES
Revisión #
6
Fecha de entrada en vigencia
Actividad de los usuarios
Para hacer comentarios debe iniciar sesión o registrarse aquí