ET223 Postes en fibra de 4.5 para instalación de medidores
- Contenido
1. OBJETO
La presente especificación técnica tiene por objeto establecer las características y dimensiones que deben cumplir los postes de fibra ó fibras combinadas que se emplearán como soportes estructurales para la instalación de cajas de medidores2. ALCANCE
Los postes serán instalados, en cualquier zona del área de cobertura de Enel Colombia S.A., estos postes son usados para la fijación de las cajas de medidores donde no sea posible su instalación en la fachada de las viviendas.Los postes serán en secciones o embonados para facilitar su transporte e instalación.
3. CONDICIONES AMBIENTALES
El ambiente donde serán instalados los postes de fibra podrá tener las siguientes características dentro del área de concesión de Enel Colombia S.A. E.S.P, bajo las siguientes condiciones:| CARACTERÍSTICAS AMBIENTALES | |
| a. Altura sobre el nivel del mar | 2 640 m |
| b. Ambiente | Tropical |
| c. Humedad | 90% |
| d. Temperatura máxima y mínima | 27 ºC y - 5 ºC respectivamente. |
| e. Temperatura promedio | 14 ºC. |
4. CONDICIONES DE SERVICIO
Los postes podrán ser instalados, en cualquier zona del área de cobertura de Enel Colombia S.A.5. SISTEMAS DE UNIDADES
En todos los documentos técnicos se deben expresar las cantidades numéricas en unidades del sistema Internacional. Si se usan catálogos, folletos o planos, en sistemas diferentes de unidades, deben hacerse las conversiones respectivas.6. NORMAS RELACIONADAS
Los postes deberán cumplir con las siguientes normas de fabricación y ensayos:| FABRICACION | DESCRIPCIÓN | |
| ASTM | D 4923-01 | Standard Specification for Reinforced Thermosetting Plastic Poles, American Society for Testing and Materials. |
| ASTM | D 5778-00 | Standar d specification for Glass Fiber strands |
| IEEE | C2 2007 | National Electrical Safety Code |
| ANSI | C136.20 -2008 | ANSI C136.20-2008 American National Standard for Roadway and Area Lighting Equipment— Fiber-Reinforced Composite (FRC) Lighting Poles |
| PRUEBAS | DESCRIPCIÓN | |
| ASTM | G 154 | Standard Practice for Operating Fluorescent Light Apparatus for UV Exposure of Nonmetallic Materials |
| AAMA | 615 | American Architectural Manufacturers Association |
| ASTM | D 149 | Test Method for Dielectric Breakdow Voltage and Dielectric -Strength -Solid Electrical Insulating Materials at Cornmercial Power Frecuencies |
| ASTM | D 257 | Test Methods for D e Resistance or Conductance of Insulating Materials |
| ASTM | D 635-03 | Test Method for Rate of Buming and/or Extent and Time of Burning of Self-Supporting Plastics in a Horizontal Position |
| ASTM | E 313 | Calculating Yellowness and Whiteness Indices from Instrumentally Measured Color Coordinate |
| PRACTICAS | DESCRIPCIÓN | |
| RETIE | Reglamento Técnico de Instalaciones Eléctricas | |
| ASCE | 104 | Recommended practice for Fiber reforcerd Polymer products for overhead Utility Line Structures |
| NTC | 1329 | Postes de Concreto Armado para líneas aéreas de energía y telecomunicaciones |
| ASTM | D 883 | Terminology Relating to plastics |
Pueden emplearse otras normas internacionalmente reconocidas equivalentes o superiores a las aquí señaladas, siempre y cuando se ajusten a lo solicitado en la presente especificación técnica.
Las normas citadas en la presente especificación (o cualquier otra que llegare a ser aceptada por Enel Colombia S.A.) se refieren a su última revisión.
7. DEFINICIONES
Se establecen las siguientes definiciones para efectos de esta especificación técnica:• ENTERRAMIENTO DIRECTO
Termino usado para referirse al poste que será soportado en enterramiento directo en el piso o tierra.
• PRUEBA DE DEFLEXION BAJO CARGA
Prueba de verificación de la flexión del poste bajo la carga de trabajo, la cual no debe superar el porcentaje máximo según la Norma ASTM D 4923-1 para postes clase 2
• SUELO
Un suelo que pueda ser efectivo empotramiento para un enterramiento directo del poste en la tierra y que resista las condiciones ambientales.
• ENTRADA DE CABLE.
Una abertura en la parte inferior del nivel de enterramiento del poste (subterráneo) con su eje perpendicular al eje del poste, sirve de pasaje para la entrada del cable a la cavidad interna del poste.
8. REQUERIMIENTOS TÉCNICOS Y PARTICULARES
8.1 Características Generales
Entre otras características los postes debe tener las que se indican a continuación:- Resistir los rayos solares
- Evitar propagar la llama
- Rigidez dieléctrica elevada
- Alta dureza
- Alta resistencia a la tracción y a la flexión.
- Resistente a los químicos y ácidos.
- Debe ser libre de mantenimiento.
- No debe contener elementos que sirvan de alimento o permitan ser atacadas por microorganismos.
- Los postes deben tener en la cima una tapa que puede ser fija o removible.
- Debe incluir marcación clara para su correcto acople, también debe anexar las instrucciones de instalación.
- Vida útil de 25 años o mayor
- El acabado exterior del poste debe ser de color gris RAL serie 70, similar al RAL 7004.
8.2 Calculo y Diseño
8.2.1 Cargas Mínimas de Rotura
Se establecen la siguiente carga mínima de rotura:- 250 kg
8.2.2 Parámetros Geométricos
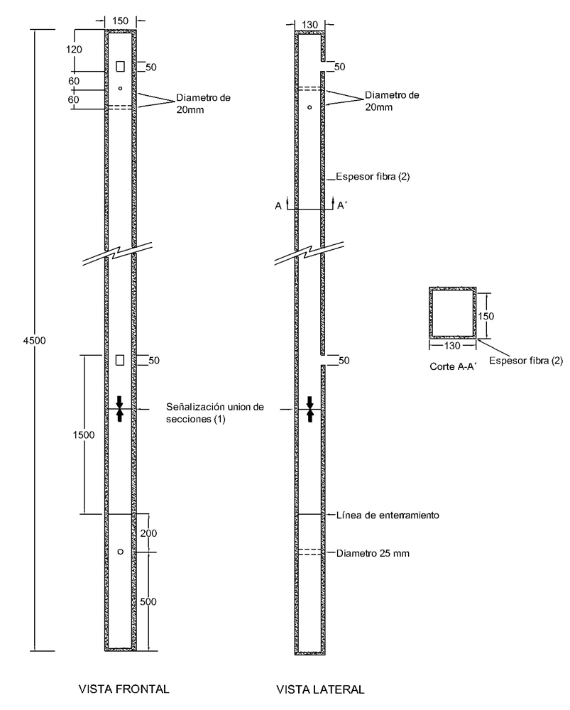
Los postes de fibra , tendrán las características geométricas establecidas en la tabla 3.| Carga de Rotura mín. (kgf) | Longitud Total (m) | Diámetros (cm) | Número de secciones embonadas | |
| Ancho frontal | Lateral | |||
| 250 | 4,5 | 15 | 13 | 2 |
8.2.3 Carga de Trabajo
La carga de trabajo es la resultante de dividir la carga mínima de rotura, por el coeficiente de seguridad de 2.5.Según lo anterior, las cargas de trabajo para cada una de las cargas mínimas de rotura se establecen en la tabla 4.
| Carga mínima de rotura | Carga de Trabajo |
| 250 kg | 100 kg |
8.3 CARGA DE ROTURA
Fuerza (kgf) aplicada horizontalmente a 30 cm de la cima del poste, bajo la cual se presenta la falla mecánica del mismo.| Tipo de poste m x kgf | Carga de trabajo kgf | Deflexión bajo carga (cm) (*) |
| 4.5x250 | 100 | 38 |
(*) Deflexión máxima para postes clase 2 de acuerdo con. ASTM D4923.- ANSI C136.20-2008.
8.4 Longitud de Enterramiento
La longitud de empotramiento será de 70 cm8.5 Características constructivas
El poste deberá tener como mínimo las siguientes capas constructivas iniciando en el exterior del poste de la siguiente manera:a. Top Coat: Capa exterior con protección contra intemperie y U.V, de acuerdo con la ASTM- G154.
b. Veil o velo: Capa rica en resina que permite uniformidad en la textura y elimina la exposición de fibras expuestas acorde con la ASCE-104 (Resin rich nonstructural suface veil).
c. Composición o fibra que determina las características mecánicas del poste de acuerdo con la carga, acorde con la ANSI C136 y RETIE.
d. Composición rica en resina que elimina la exposición de fibras y defectos del poste que puedan afectar el servicio del mismo y protege la parte interior del poste contra la intemperie.
En su cima tendrá perforaciones de 20mm para instalar pernos de retención de acometidas y en su parte inferior de 25 mm para la conexión de la puesta a tierra
La caja del medidor, se instalará de tal forma que cubra la abertura de llegada y salida de la acometida y se fijará al poste mediante una platina de 180 x 40 x 2 mm. Con cinta metálica inoxidable
9. ENSAYO DE LABORATORIO Y PRUEBAS DE CARGA
El fabricante deberá realizar los siguientes ensayos a los postes en laboratorios certificados y/o reconocidos, de acuerdo con lo planteado por la norma ASTM D4923 y por los documentos de referencia presentados en esta especificación, según aplique:• Prueba de flexión bajo carga: RETIE, NTC1329, ASTM D4923, ANSI C136.20-2008.
• Prueba de carga de rotura: RETIE, NTC1329
• Rata de combustión - ensayo de auto extinción: ASTM D635
• Resistencia a la degradación por abrasión: AAMA-615
• Rigidez Dieléctrica: ASTM D149
• Absorción de humedad: AAMA-615
• Amarillamiento: ASTM E313
• Resistencia a rayos solares U.V: ASTM G154
• Adhesión exterior en seco y en húmedo: AAMA-615
9.1 Verificaciones de proceso
Se refiere a las verificaciones que deben realizarse a los postes durante el proceso de fabricación. Constituyen una validación en el cumplimiento de parámetros dimensionales y físicos propios del diseño. Esta evaluación debe hacerse a todo el lote de producción que se está fabricando.9.2 Resistencia química
Se debe verificar la resistencia a la abrasión y la composición química de la fibra, realizando pruebas de álcalis, ácidos, aceites, detergentes, combustibles y agua salubre.9.3 Resistencia a los Rayos UV
La resistencia ante los efectos de los rayos ultravioletas de los postes fabricados en plásticos o polímeros9.4 Prueba de Carga a Rotura
Prueba de verificación de resistencia del poste hasta la carga de rotura. Si el poste no reventó a la carga especificada se puede tomar la determinación de detener la prueba, pero este poste se debe descartar para uso en redes de distribución.9.5 Prueba de Combustión
Prueba para determinar la rata de combustión del material del poste.9.6 Prueba de Rigidez Dieléctrica
Prueba para verificar la rigidez dieléctrica del material del poste.9.7 Contenidos de Vacío y Relación Fibra- Resina
El contenido de vacíos y la relación fibra-resina de los postes se evalúan según las normas ASTM D2734 y ASTM D258410 SUMINISTRO Y RECEPCIÓN DE POSTERÍA
10.1 Tolerancias Aceptadas
10.1.1 Longitud del Poste.
Se acepta una tolerancia en la longitud del poste de ± 20mm.10.1.2 Desviación del Eje Longitudinal.
Se acepta una desviación del eje longitudinal del poste de 20mm.10.1.3 Separación de las Perforaciones.
Se acepta una tolerancia de ±3mm en la posición de las perforaciones, con respecto a la ubicación teórica que se indica en los planos.10.2 Marcas y Señalizaciones
10.2.1 Marcas.
Todos los postes deberán llevar, en forma clara y a una altura de 2m sobre la sección de empotramiento, una leyenda en bajo relieve o placa embebida en el plástico, que indique:- Palabra BOG-CUN (en bajo relieve)
- Nombre o razón social del fabricante.
- Longitud del poste en metros por carga mínima de rotura en kgf ó N (debe aparecer la unidad).
- Fecha de fabricación, día mes año.
- Peso del poste.
10.2.2 Señalizaciones.
Los postes deben llevar las siguientes señalizaciones:- Profundidad de empotramiento. Todos los postes deben llevar pintada, una franja de color verde, de 30mm de ancho en la parte frontal del poste que indique hasta donde se debe enterrar el poste.
- Zona de ensamble de postes embonados. Para señalizar esta zona debe incluirse una franja pintadas de color negro, de 30mm de ancho en la parte frontal del poste. También se permite identificar con flechas del mismo color el punto hasta donde deben llegar las uniones como se indica en al figura 1. Con esta marcación se busca que se garantice el correcto acople de las secciones cuando los postes sean embonados.
10.3 Recepción de postería
La recepción de los postes, deberá hacerla el interventor o un representante de Enel Colombia S.A. E.S.P, quienes inspeccionarán los lotes en forma detallada, para determinar si cumplen las especificaciones establecidas.Durante el proceso de recepción, se debe cumplir lo establecido en los numerales del 10.3.1 al 10.3.5.
10.3.1 Inspección del Sitio de Prueba y sus Instalaciones.
El interventor inspeccionará el sitio de prueba y las instalaciones para la fijación y anclaje del poste y los patines de apoyo.10.3.2 Revisión de los Equipos de Aplicación y de Medida de Cargas.
Se deberá verificar que los equipos de aplicación de cargas sean los adecuados; que su anclaje no represente peligro y que la carga pueda aplicarse en forma suave y progresiva.Se deberá verificar que el dinamómetro esté calibrado y que las lecturas de carga se puedan hacer con una aproximación de ± 10kg.
10.3.3 Plan de Muestreo.
Para llevar a cabo las labores de inspección y recepción de postería, se establece el siguiente plan de muestreo, en el que se determina, de acuerdo con el tamaño del lote, el número de postes a los cuales se les debe practicar la inspección visual para la aceptación o rechazo del mismo:| Tamaño del lote | Tamaño de muestra | Aceptación | Rechazos |
| 2 - 25 | 3 | 0 | 1 |
| 26 - 90 | 13 | 1 | 2 |
| 91 –150 | 20 | 2 | 3 |
| 151-280 | 32 | 3 | 4 |
| 281-500 | 50 | 5 | 6 |
| 501-1200 | 80 | 7 | 8 |
Nivel de Inspección general II, NCA = 4%
Nota. Si el tamaño de la muestra es mayor o igual al lote, se hará inspección 100%
10.3.4 Motivos de Rechazo.
Se rechazarán los postes por las siguientes causas:10.3.4.1 Defectos críticos.
- Grietas transversales o longitudinales.
- Ranuras longitudinales muy amplias y profundas
- El incumplimiento de las tolerancias especificadas, se consideran como defectos críticos.
10.3.4.2 Defectos mayores.
- Perforaciones con el eje desviado respecto a su posición, taponadas o de diámetro inferior al especifica¬do.
- Superficie del poste con rugosidades pronunciadas, burbujas en cantidad exagerada o manchas por utilización inadecuada de compuestos.
10.3.4.3 Defectos menores.
- No colocación de la leyenda mencionada el numeral 10.2.1.
- Falta de marcado de la profundidad de empotramiento y zona de ensamble de postes embonados.
10.3.5 Plan de Muestreo para las Pruebas de Carga de Flexión y Rotura.
Para las pruebas de flexión, se regirán por el siguiente plan de muestreo:| Tamaño del lote | Tamaño de muestra | Aceptación | Rechazos |
| 2 – 150 | 3 | 0 | 1 |
| 151-500 | 13 | 1 | 2 |
Nivel de Inspección especial S 3, NCA = 4%
Nota. Si el tamaño de la muestra es mayor o igual al lote, se hará inspección 100%
Para las pruebas de rotura, se regirán por el siguiente plan de muestreo:
| Tamaño del lote | Tamaño de muestra | Aceptación | Rechazos |
| 50-150 | 3 | 0 | 1 |
Nivel de Inspección especial S 1, NCA = 4%
10.3.6 Límites para Aceptación o Rechazo.
Si el número de unidades defectuosas en la muestra es igual o mayor que el número de rechazos, no se aceptará el lote.11 REQUISITOS DE LAS OFERTAS
La oferta técnica deberá entregarse en medio magnético. El oferente deberá incluir con su propuesta la siguiente información:• Planilla de características técnicas garantizadas indicada en el anexo1, la cual deberá ser diligenciada completamente, firmada y sellada por el oferente. Esta planilla debe entregarse en formato Excel.
• Catálogos originales, completos y actualizados, que contengan características técnicas principales correspondientes a los bienes cotizados en la planilla de características técnicas garantizadas.
• Protocolos de pruebas de acuerdo con las normas indicadas en el numeral 6 y cada uno de los ensayos indicados en el numeral 9 de la presente especificación, en laboratorios certificados y/o reconocidos. En tales protocolos se deberán anotar las fechas de fabricación y de realización de las pruebas, para permitir la verificación de las características técnicas garantizadas. Así mismo las fotocopias de los certificados de laboratorios internacionales cuando las pruebas deban ser hechas fuera del país.
• El oferente adjuntará con su propuesta el certificado de conformidad de producto con noma técnica y con RETIE, expedido por una entidad autorizada por la ONAC. Además deberá presentar el certificado del sistema de calidad (ISO 9001).
• Los oferentes deberán ofrecer una garantía absoluta de sus productos de por lo menos dos (2) años.
• Una ampliación microscópica a 1000X para determinar cada una de las capas de fabricación del poste indicada en la norma
• Una muestra física de mínimo 5 cm x 5 cm del poste
• Información adicional que considere aporta explicación a su diseño (dibujos, detalles, características de operación, dimensiones y pesos de los materiales ofertados).
Enel Colombia S.A. podrá descartar ofertas que no cumplan con las anteriores disposiciones, sin expresión de causa ni obligación de compensación.
ANEXO 1. CARACTERÍSTICAS TÉCNICAS
| CARACTERÍSTICAS TÉCNICAS | ||||
| ITEM | DESCRIPCION | OFERTADO | ||
| 1 | Proveedor | |||
| 2 | Fabricante | |||
| 3 | País del fabricante | |||
| 4 | Normas técnicas de diseño y pruebas | |||
| 5 | Longitud total (m) | |||
| 6 | Longitud Frontal (cm) | |||
| 7 | Longitud Lateral (cm) | |||
| 8 | Peso total (kg) | |||
| 9 | Número de secciones | |||
| 10 | Longitud de cada sección(m) | |||
| 11 | Peso de cada sección (kg) | |||
| 12 | Describir sistema de acoplamiento | |||
| 13 | Carga mínima de rotura (kgf) | |||
| 14 | Carga de trabajo (kgf) | |||
| 15 | Deflexión bajo carga máxima (mm) | |||
| 16 | Color (referencia RAL) | |||
| 17 | Cumple con la dimensión y la distribución de las perforaciones indicadas en la figura 1 (Si/No) | |||
| 18 | Espesor de las capas (numeral 8.5 ) | Capa a. Top coat exterior | ||
| Capa b. Veil ó Velo | ||||
| Capa c. Fibra | ||||
| Capa d. Composición Resina | ||||
| 19 | Incluye tapa en la cima? (Si/No y describir) | |||
| 20 | Incluye marcación según numeral 10.2.1? (Si/No y describir) | |||
| 21 | Incluye señalización según numeral 10.2.2? (Si/No y describir) | |||
| 22 | Presentan protocolo de pruebas de los siguientes ensayos: (Indicar Si/No y el laboratorio) | |||
| Prueba de flexión bajo carga (RETIE, NTC1329) | ||||
| Prueba de carga de rotura (RETIE, NTC1329) | ||||
| Rata de combustión - ensayo de auto extinción (ASTM D635) | ||||
| Resistencia a la degradación por abrasión (AAMA-615) | ||||
| Rigidez Dieléctrica (ASTM D149) | ||||
| Absorción de humedad (AAMA-615) | ||||
| Amarillamiento (ASTM E313) | ||||
| Resistencia a rayos solares U.V. (ASTM G154) | ||||
| Adhesión exterior en seco y en húmedo (AAMA-615) | ||||
| 23 | Vida útil (años) | |||
| 24 | Garantía (años) | |||
| RESULTADO DE EVALUACIÓN TÉCNICA | ||||
| 25 | Certificación de sistema de calidad | Entidad acreditadora | ||
| Número de acreditación | ||||
| Fecha de aprobación (día/mes/año) | ||||
| Vigencia | ||||
| Adjunta el certificado (Si/No) | ||||
| 26 | Certificación con normas técnicas | Entidad acreditadora | ||
| Número de acreditación | ||||
| Fecha de aprobación (Día/Mes/Año) | ||||
| Vigencia | ||||
| Norma técnica con la cual se certifica | ||||
| Adjunta el certificado (Si/No) | ||||
| 27 | Certificación con RETIE | Entidad acreditadora | ||
| Número de acreditación | ||||
| Fecha de aprobación (día/mes/año) | ||||
| Vigencia | ||||
| Adjunta el certificado (Si/No) | ||||
| RESULTADO DE EVALUACIÓN REGULATORIA | ||||
| 28 | Observaciones | |||
FIGURA 1. ESQUEMA POSTE EN FIBRA
NOTAS:
1. Altura acorde al fabricante.
2. Espesor de la fibra acorde al fabricante.
3. Ver norma AE 223
4. Dimensiones en mm.
DATOS ADICIONALES
Revisión #
0
Fecha de entrada en vigencia
Actividad de los usuarios
Para hacer comentarios debe iniciar sesión o registrarse aquí