ET213 Postes de concreto para AP con brazos metálicos

  • Contenido

1. OBJETO

La presente especificación técnica tiene por objeto establecer las características y dimensiones que deben cumplir los postes de concreto para alumbrado público de longitud efectiva 9, 10, 12 y 14 m con brazos metálicos.

2. ALCANCE

La presente especificación se aplicará a todos los postes de concreto para alumbrado público que adquiera Enel Colombia S.A., teniendo en cuenta que este tipo de elementos, no deben ser utilizados para sostener ningún tipo de red área.

Los suelos donde son instalados podrán ser terrenos de relleno, arenosos, rocosos, arcillosos semiduros, con una capa de profundidad variable de humus, incluyendo químicamente suelos desde ácidos a alcalinos y desde oxidantes a reductores con gran variedad en la cantidad y tipo de sales solubles.

3. CONDICIONES AMBIENTALES

El ambiente donde serán instalados los postes de concreto podrá tener las siguientes características dentro del área de concesión de Enel Colombia S.A. E.S.P, bajo las siguientes condiciones:

CARACTERÍSTICAS AMBIENTALES
a. Altura sobre el nivel del mar 1000 a 2 640 m
b. Ambiente Tropical
c. Humedad Mayor al 90 %
d. Temperatura máxima y mínima 45 ºC y - 5 ºC respectivamente.
e. Temperatura promedio 30 a 14 ºC.

4. CONDICIONES DE SERVICIO Y LUGAR DE INSTALACIÓN

Los postes serán instalados, en cualquier zona del área de cobertura de Enel Colombia S.A.

Los postes serán usados exclusivamente para alumbrado público donde no existan redes áreas.

Los suelos donde son instalados podrán ser terrenos de relleno, arenosos, rocosos, arcillosos semiduros, con una capa de profundidad variable de humus, abarcando químicamente suelos desde ácidos a alcalinos y desde oxidantes a reductores con gran variedad en la cantidad y tipo de sales solubles.

5. SISTEMAS DE UNIDADES

En todos los documentos técnicos se deben expresar las cantidades numéricas en unidades del sistema Internacional. Si se usan catálogos, folletos o planos, en sistemas diferentes de unidades, deben hacerse las conversiones respectivas.

6. NORMAS RELACIONADAS

Los postes deberán cumplir con las siguientes normas de fabricación y ensayos:
NORMA DESCRIPCIÓN
ICONTEC 1 Ensayo de doblamiento para productos metálicos
ICONTEC 2 Ensayo de tracción para productos de acero.
ICONTEC 23 Determinación gravimétrica de carbono por combustión directa en aceros al carbono.
ICONTEC 24 Determinación del manganeso en aceros al carbono.
ICONTEC 25 Determinación del manganeso en aceros al carbono. Método del Bismutato
ICONTEC 26 Determinación del silicio en aceros al carbón.
ICONTEC 27 Determinación de azufre en aceros al carbono. Método de evolución.
ICONTEC 28 Determinación del silicio en aceros al carbono. Método del ácido sulfúrico.
ICONTEC 30 Cemento Portland. Clasificación.
ICONTEC 116 Alambre duro de acero para refuerzo de concreto.
ICONTEC 121 Cemento Pórtland. Especificaciones físicas y mecánicas
ICONTEC 159 Alambres de acero sin recubrimiento liberados de esfuerzo para concreto pretensado.
ICONTEC 161 Barras lisas de acero al carbono para hormigón armado.
ICONTEC 174 Especificaciones de los agregados para concreto
ICONTEC 180 Método gasométrico para determinación de carbono por combustión directa en hierros y aceros al Carbono.
ICONTEC 181 Aceros al carbono y fundiciones de hierro, método alcalimétrico para determinación de fósforo.
ICONTEC 248 Barras y rollos corrugados de acero al carbono para hormigón armado.
ICONTEC 321 Cemento Pórtland. Especificaciones químicas.
ICONTEC 422 Perfiles livianos y barras de acero al carbono acabadas en frío.
ICONTEC 673 Ensayo de resistencia a la compresión, de cilindros normales de hormigón.
ICONTEC 858 Pernos y Tuercas
ICONTEC 1097 Control estadístico de calidad . Inspección por atributos. Planes de muestra única, doble y múltiple con rechazo.
ICONTEC 1299 Aditivos químicos para hormigón.
ICONTEC 1645 Pernos y tuercas
ICONTEC 2010 Torones de acero de siete alambres sin recubrimiento para concreto pretensado.
NSR-98 Código Colombiano de Construcciones Sismo Resistentes. Decreto 33 de 1998.
ICONTEC 2076 Electricidad. Galvanizado por inmersión en caliente para herrajes y perfiles estructurales de hierro y acero.
A.W.S D 12.1 (A.C.I 318) - Prácticas recomendables para soldar acero de refuerzo, insertos metálicos y conexiones, en construcciones de concreto reforzado.
ANSI/ASME B1.1 –1982 Unified Inch Screw Threads
ASTM A500 Standard Specification for Cold-Formed Welded and Seamless Carbon Steel Structural Tubing in Rounds and Shapes.
NTC 1329 Prefabricados en concreto
RETILAP Reglamento Técnico de Iluminación y Alumbrado público

Pueden emplearse otras normas internacionalmente reconocidas equivalentes o superiores a las aquí señaladas, siempre y cuando se ajusten a lo solicitado en la presente Especificación Técnica .
Las normas citadas en la presente especificación (o cualquier otra que llegare a ser aceptada por Enel Colombia S.A.) se refieren a su última revisión.

7. DEFINICIONES

Se establecen las siguientes definiciones para efectos de esta especificación técnica :
  • ADITIVO
Material diferente del cemento, agregados o agua que se añade al concreto, antes o durante la mezcla, para modificar una o varias de sus propiedades sin perjudicar su durabilidad, ni su capacidad para resistir esfuerzos. (NRS-98 – C.2.1)
  • AGREGADOS
Conjunto de partículas inertes, naturales o artificiales, tales como areana, grava, triturado, etc., que al mezclarse con el material cementante hidráulico y el agua, producen el concreto. (NRS-98 – C.2.1)
  • AROS DE ARMADO
Elementos circulares, en varilla lisa de diámetro variable, espacia¬dos adecuadamente a lo largo del eje del poste, que permiten el amarre de las varillas longitudinales y que además contrarrestan el esfuerzo cortante.
  • BASE
Plano o sección transversal extrema en la parte inferior del poste.
  • CANASTA
Conjunto de varillas longitudinales, cables o alambres unidos a aros transversales o espirales, destinadas a contrarrestar los esfuerzos de flexión, tracción, cortadura y tensión diagonal, producidos por la carga aplicada al poste.
  • CARGA DE DISEÑO
La carga aplicada a 20 cm de la cima, para la cual se calculó y diseñó el poste.

  • CARGA DE ROTURA
Es aquella que aplicada a 20 cm de la cima, produce el colapso estructural del poste por fluencia del acero, por aplastamiento del concreto o por ambas causas en forma simultánea.
  • CARGA DE TRABAJO
Carga máxima real que se podrá aplicar al poste, en sentido normal a la línea y a 20 cm de la cima, sin que se presente deformación permanente mayor que el 5% de la deflexión máxima permitida, cuando se aplica el 40% de la carga mínima de rotura especificada.
  • CENTRIFUGADO
Acción de someter a la fuerza centrífuga el poste recién vaciado, con el fin de producir una compactación alta en el concreto y gran resistencia a la humedad y a los agentes atmosféricos.
  • CIMA
Plano o sección transversal extrema, en la parte superior del poste.
Relación entre la carga de rotura mínima y la carga de trabajo especificadas, que para esta norma se establece en 2,0 específicamente toda vez que su uso es para uso exclusivo de A.P y el poste no será sometido a esfuerzos adicionales de redes y/o telemáticos.
  • COLAPSO
Condición que se presenta cuando el poste, bajo la acción de la carga aplicada, experimenta grandes deformaciones, causadas por la fluencia del acero y que ocasionan el aplastamiento del concreto, en la zona del poste sometida a compresión.

El colapso se inicia cuando se presentan desprendimientos del concreto, grietas grandes y deformaciones pronunciadas, sin incrementos de carga.
  • CONCRETO
Mezcla homogénea de material cementante, agregados inertes y agua, con o sin aditivos. (NRS-98 – C.2.1)
  • CONCRETO PREESFORZADO
Concreto que previamente a su utilización se somete a tratamiento mecánicos destinados a crear esfuerzos de compresión en zonas que posteriormente reciben esfuerzos de tracción debido a la aplicación de las cargas. Según el procedimiento de aplicación de los esfuerzos en el acero de tensionamiento con respecto al vaciado del concreto se divide en concreto pretensado y concreto postensado. (NRS-98 – C.2.1)
  • CONCRETO REFORZADO
Material constituido por concreto que tiene un refuerzo consistente en barras de acero corrugado, estribos transversales o mallas electro soldadas, colocadas principalmente en las zonas de tracción, en cuantías superiores a las mínimas especificadas en los Capítulos C.1 a C.21, (NRS-98)bajo la hipótesis de compatibilidad de deformaciones entre los materiales. (NRS-98 – C.2.1)
  • CONICIDAD
Relación entre la diferencia de los diámetros de cima y base y la longitud del poste.
  • CURADO DEL CONCRETO
Tratamiento que se le da al concreto, una vez vaciado, para impedir la rápida evaporación del agua de amasado, suavizando la retracción y evitando el agrietamiento de la superficie del poste.
  • DEFORMACIÓN PERMANENTE
Flecha permanente, registrada una vez ha dejado de actuar la carga de trabajo sobre el poste.
  • EMPALMES
Unión de dos tramos de barras del refuerzo principal, soldadas o amarradas con alambre.
  • EMPALME CON BASTONES
Unión de dos tramos de varillas a tope, y ligadas entre sí, mediante un tramo de varilla corta, a la que van unidas con puntos de soldadura los extremos de las dos varillas, en una longitud especificada.
  • FLECHA
Desplazamiento que sufre la cima del poste, en dirección normal a su eje, bajo la acción de una carga aplicada.
  • FORMALETAS
Moldes metálicos, de la forma y dimensiones del poste, en las cuales se coloca la canasta y se vierte el concreto fresco para moldear el poste.
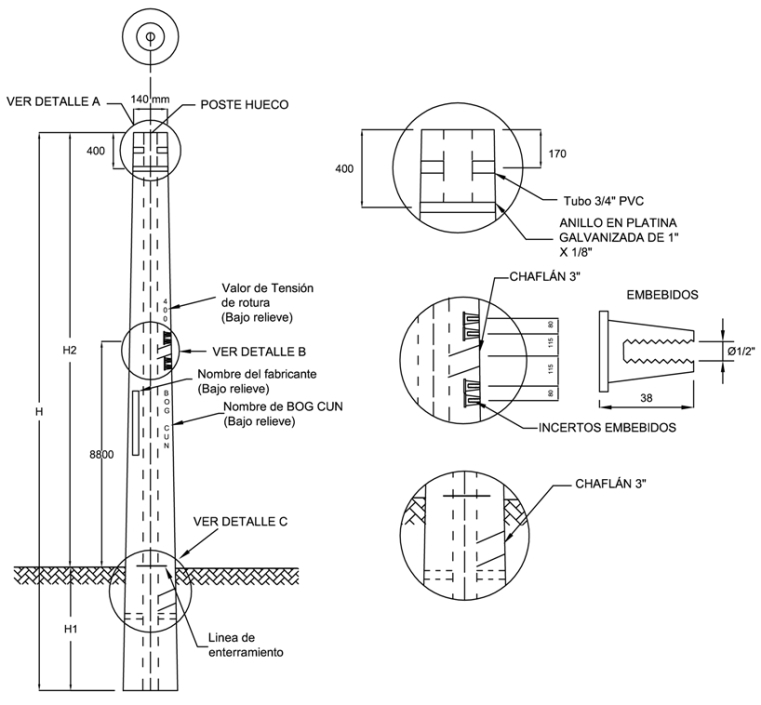
  • LONGITUD DE EMPOTRAMIENTO (H 1 )
Distancia entre la sección de empotramiento y la base del poste.
  • LONGITUD TOTAL (H )
Distancia entre la cima y la base del poste.
  • LONGITUD ÚTIL (H 2 )
Distancia entre la cima y la sección de empotramiento del poste.
  • PERFORACIONES
Agujeros cilíndricos, a través del eje central de la sección del poste, utilizados para la fijación de elementos de la red.
  • PLANO DE APLICACIÓN DE ESFUERZOS
Plano o sección transversal del poste en donde se aplican las cargas horizontales.
  • PLANO TRANSVERSAL
Plano o sección perpendicular al eje longitudinal del poste.
  • RECUBRIMIENTO DE LA ARMADURA
Distancia mínima especificada, que debe existir entre el borde o superficie de cualquier elemento metálico de la armadura y la superficie interior y exterior del poste.
  • REFUERZO
Acero en una de las tres formas siguientes, colocado para absorber esfuerzos de tracción, compresión, de corte o de torsión en conjunto con el concreto:
(a) Grupo de barras corrugado que cumple las normas NTC 2289 (ASTM A706) ó NTC 248 (ASTM A615). O barras lisas que cumplen la norma NTC 161 (ASTM A615), de forma recta, dobladas, con o sin ganchos, o en forma de estribos.
(b) Mallas electrosoldadas.
(c) Alambres o cables de alta resistencia destinados principalmente al concreto preesforzado. (NRS-98 – C.2.1)
  • REFUERZO EN ESPIRAL
Refuerzo transversal consistente en una hélice continua de barra de acero liso o corrugado, que cumple con ciertas limitaciones de cuantía volumétrica. (NRS-98 – C.2.1)
  • SECCIÓN DE EMPOTRAMIENTO
Plano o sección transversal del poste, a nivel de piso, donde se produce el máximo momento flector, por efecto de las cargas de trabajo.
  • SEPARADORES
Elementos no metálicos, ni biodegradables de resistencia tal que garantice la separación entre la canasta y la cara interior de la formaleta durante el proceso de vaciado del concreto y que permite asegurar el recubrimiento especificado de la armadura.
  • TRASLAPO
Tipo de empalme en que las barras se unen al montar un extremo de una sobre el extremo de la otra, en una longitud especificada y unidas entre sí mediante puntos de soldadura o amarre con alambre.
  • VARILLA CORRUGADA
Varilla de acero con el núcleo de sección circular, en cuya superficie lleva unos resaltes, que tienen por objeto aumentar la adherencia entre el concreto y el acero.
  • VARILLA LISA
Varilla de acero de sección transversal circular, sin resaltes o nervaduras.
  • VARILLA TORSIONADA
Varilla lisa o corrugada que el fabricante de postes somete a un proceso de torsión y alargamiento, con el fin de mejorar sus condiciones físicas y mecánicas.
  • VIBRADO
sistema de compactación del concreto mediante aparatos vibratorios de alta frecuencia que tiene por objeto disminuir la porosidad del concreto, distribuir uniformemente los áridos y obligar a que la mezcla cubra toda la superficie interior de la formaleta.

8. REQUERIMIENTOS TÉCNICOS PARTICULARES

8.1. Calculo y Diseño

8.1.1. Cargas Mínimas de Rotura

Se establece que las cargas mínimas de rotura para todos los postes de concreto es de 9, 10, 12, 14 y 16 m de longitud efectiva incluidos en esta norma son las indicadas en la tabla No. 2, Cargas de Rotura.

8.1.2. Parámetros Geométricos

Los postes de concreto reforzado o de concreto preesforzado, tendrán las características geométricas establecidas en la tabla 1.

TABLA 1. PARÁMETROS GEOMÉTRICOS
Altura Libre m. H 2 Altura Total m H Empotramiento m. H 1 Diámetro Ext. Cima cm Diámetro Ext. Base cm Conicidad
9,0 (*) 10,7 1,7 10 26,05 1.5
10,0(*) 11,8 1,8 10 27,7 1.5
12 14 2 12 33 1.5
14 16,2 2,2 14 38,3 1.5
16,0 (*) 18,4 2,4 16 43,6 1.5

(*) Estos postes no tendrá el sistema de insertos para doble propósito

8.1.3 Conicidad

La conicidad debe ser entre 1,5 y 2 cm/m de longitud, para todos los tipos de postes de sección circular llena, anular, ya sean centrifugados, vibrados o preesforzados, de acuerdo a lo indicado en el numeral 17.15 del RETIE y el RETILAP.

8.1.4 Carga de Trabajo

La carga de trabajo es la resultante de dividir la carga mínima de rotura, por el coeficiente de seguridad de 2.0. específicamente toda vez que su uso es para uso exclusivo de A.P y el poste no será sometido a esfuerzos adicionales de redes y/o telemáticos.

TABLA 2. CARGAS DE TRABAJO Y ROTURA
Altura libre m Altura Total m Carga de Trabajo kgf Carga de Rotura kgf
9 10,7 150 300
10 11,8 150 300
12 14 200 400
14 16,2 300 600
16 18,4 425 850

8.2 Recubrimiento de la Armadura

El recubrimiento mínimo de la armadura debe ser de 20 mm, ya que serán utilizados en ambientes no salinos, medidos desde la superficie de la armadura, hasta la cara o superficie interior y exterior del poste.

8.3 Resistencia a la Compresión del Concreto

La resistencia mínima a la compresión para el concreto, debe ser de 350 kg/cm² (5 000 psi) (3,4332 X 10 7 Pa) para los de concreto preesforzado. Esta resistencia se debe verificar mediante ensayos de laboratorio de los cilindros tomados de varias bachadas, de acuerdo con la norma ICONTEC 673.

En cuanto a la calidad del concreto, se deben seguir los procedimientos establecidos en el capítulo C.4 del Código Colombiano de Construcciones Sismo Resistentes. Decreto 33 de 1998.

Se podrá solicitar al fabricante la utilización de un concreto de mayor resistencia, si así lo exigen las circunstancias de transporte, manipulación en obra, deformaciones bajo carga de trabajo.

Con la debida anticipación, el fabricante debe presentar a consideración de Enel Colombia S.A. ESP, el diseño de la mezcla que va a utilizar. Enel Colombia S.A. ESP podrá exigir ensayos de prueba de la mezcla utilizada.

Para concretos que utilicen aditivos plastificantes, las mezclas se deberán diseñar utilizando el aditivo y de acuerdo con los ensayos de laboratorio que se deben realizar.

Las pruebas de asentamiento se realizarán cuando Enel Colombia S.A. ESP así lo exija. Los asentamientos resultantes deben coincidir con los especificados en el diseño de la mezcla.

Se realizarán ensayos de cilindros, con edades de 7, 14 y 28 días, calculando por proyección para las 2 primeras, la resistencia que tendrá el concreto a los 28 días.

La resistencia promedio de los ensayos de los cilindros debe ser superior o por lo menos igual a la especificada en el diseño más 85kg/cm 2 ( 8’335.653 Pa)

El costo de todos los ensayos de laboratorio, ordenados por Enel Colombia S.A. ESP, para el control de calidad del concreto, correrá por cuenta del fabricante.

8.4 Acero de Refuerzo Principal

El acero de refuerzo utilizado en la fabricación de los postes, debe cumplir con las normas ICONTEC 116, 161 ó 248. Para los postes preesforzados el refuerzo debe cumplir con lo especificado en la norma ICONTEC 2010 ó 159.

Las varillas de acero estructural deben tener esfuerzo nominal de fluencia mínimo de 60000 psi (4,36854 X 10 8 Pa).

Bajo responsabilidad del fabricante se aceptará el torsionamiento del acero.

8.5 Deformaciones o Flechas Bajo Carga

El poste, bajo la acción de una carga aplicada a 20 cm de la cima, con una intensidad igual al 40% respectivamente de la carga mínima de rotura (500 kg) (4903,325 Newtons), no debe producir una flecha superior al 3% de la longitud libre del poste y al cesar la acción de esa carga, la deformación permanente no debe ser superior al 5% de la deflexión máxima especificada para el tipo de poste correspondiente.

De acuerdo con lo anterior, en la tabla 2 se establecen límites para deflexión bajo carga y deformación permanente.

8.6 Factor de seguridad

Relación entre la carga de rotura mínima y la carga de trabajo especificadas, que para esta norma se establece en 2.0, específicamente toda vez que su uso es para uso exclusivo de A.P y el poste no será sometido a esfuerzos adicionales de redes y/o telemáticos.

TABLA 3. DEFORMACIÓN BAJO CARGA

Altura libre m Altura Total m Carga de Trabajo kgf Carga de Rotura kgf Deflexión Permitida bajo Carga cm Deflexión Permanente Max. Mm
9 10,7 150 300 27 14
10 11,8 150 300 30 15
12 14 200 400 36 18
14 16,2 300 600 42 21
16 18,4 425 850 48 24

8.7 Longitud de enterramiento

Para definir la longitud de enterramiento, se debe aplicar la siguiente fórmula:
H 1 = 0, 1 H + 0, 60 (m)

H 1 = Longitud de enterramiento (m).
H = Longitud total del poste (m).

9. FABRICACIÓN DE LOS POSTES

Los postes se deben fabricar con el uso exclusivo de formaletas metálicas, que aseguren uniformidad en su forma y exactitud en sus dimensiones.

Se pueden fabricar con el uso de uno de los sistemas existentes, siempre y cuando se cumpla con las especificaciones que se establecen en esta norma.

En ningún caso se aceptarán los postes amasados y compactados a mano.

9.1 Tipo de Poste Según su Forma Geométrica.

Los postes de concreto deben ser de sección circular ahuecada o anular.

9.2 Armado de la Canasta

Las varillas longitudinales del refuerzo principal, deben ir aseguradas mediante amarres con alambre o puntos de soldadura alternados, sobre los aros de armado o la espiral en varilla, según sea el caso.

La canasta debe llevar como mínimo, seis varillas del refuerzo principal, a todo lo largo del poste, fuera de las demás varillas cortas que completan el refuerzo. En las cuatro varillas largas, se colocarán en forma alternada cada metro y cubriendo un ángulo de 180?, separadores que aseguren el recubrimiento mínimo especificado. Las varillas largas irán distribuidas simétricamente y entre éstas, se distribuirán equilibradamente, las varillas cortas que completan el refuerzo.

La soldadura utilizada en el armado de la canasta, debe ser del tipo de baja penetración, y según lo descrito en la norma A.W.S. D 12.1 “Prácticas recomendables para soldar acero de refuerzo, insertos metálicos y conexiones en construcciones de concreto reforzado” emitida por la American Welding Society, la cual está incluida dentro del código A.C.I 318.

9.2.1 Aros de Acero.

En caso de que se utilicen aros, estos se fabricarán en varilla lisa o corrugada de 6,4 mm de diámetro mínimo.

Los aros, además de servir de apoyo a las varillas de refuerzo principal, forman parte del refuerzo del concreto contra el corte, de tal forma que su colocación, especialmente en las zonas del poste en donde se requiere éste refuerzo, se debe calcular, con base en la carga mínima de rotura especificada.

En las zonas del poste que no requieran de refuerzo al corte y en donde los aros se utilicen como simple apoyo del refuerzo principal, estos se colocarán a una distancia máxima de un metro de separación entre ellos.

El diámetro de los aros se debe calcular cuidadosamente, teniendo en cuenta la conicidad del poste y la distancia de recubrimiento de las varillas longitudinales.

9.2.2 Espiral de varilla lisa.

En caso de no usar los aros de armado y utilizar la espiral, ésta se fabricará en varilla lisa de 6,4 mm de diámetro, con un paso máximo de 150 mm y se deberá calcular de manera que contrarreste el esfuerzo cortante.

Como en el caso de los aros de armado, las varillas de refuerzo longitudinal deberán estar amarradas con alambre o unidas con puntos de soldadura alternados, de tal forma que cumpla con el recubrimiento establecido en el numeral 7.2.

9.2.3 Espirales en alambre.

En el caso de usar aros de armado, una vez colocadas las varillas de refuerzo principal, se procederá a rodear la canasta con dos espirales en alambre No. 14, como mínimo, arrolladas de tal manera que se crucen en X, con un paso máximo de 150 mm.

Las espirales en alambre, además de proporcionar una adecuada resistencia a los esfuerzos de torsión, sirven para contrarrestar la tensión diagonal, que es la que causa los agrietamientos transversales, en la superficie del poste.

Nota. En postes pre esforzados se acepta alambre de bajo carbono de resistencia mínima de 54 Kg/cm 2 (5’295.591 Pascales), como calibre mínimo 14.

9.2.4 Empalmes por traslapo.

Aunque los empalmes de varilla se deben tratar de evitar, muchas veces es imposible lograrlo, por la longitud comercial y por economía.

En una sección transversal determinada, no se permitirá más de un empalme por cada cinco varillas.

En la zona de empotramiento (± 300 mm de la sección de empotramiento) no se permitirán empalmes por traslapo.

Las secciones del poste con empalmes, deben estar separadas entre sí 500 mm, como mínimo. Sólo se permitirá un empalme por varilla.

Las longitudes mínimas de los traslapos para los diámetros más usados de las varillas en la fabricación de postes, son las siguientes:

TABLA 3. LONGITUDES MÍNIMAS DE TRASLAPO
Varilla de Diámetro Longitud Mínima de Traslapo
(pulg) (mm) (mm)
3/8 9.5 340
½ 12.7 450
5/8 15.9 560
3/4 19.1 690

9.2.5 Empalme con bastón .

En el caso de los empalmes con bastón, la longitud de este será igual a la establecida para el empalme por traslapo. El bastón debe tener el mismo diámetro de las varillas que se van a unir.

Cada varilla se fijará a la mitad del bastón, mediante puntos de soldadura, y en el espacio entre los dos extremos de las varillas se colocará otro punto de soldadura que las ligue al bastón.

9.3 Preparación de la Formaleta para la Operación de Vaciado

Antes de proceder al vaciado del concreto, la formaleta deberá estar limpia y libre de residuos de concreto u otros elementos.

Tanto la base como la tapa de la formaleta, se aceitarán en la superficie interior, con el fin de evitar que el concreto se adhiera a sus paredes y dificulte la operación de desmolde.

La formaleta debe garantizar un cierre adecuado en toda su longitud, de tal forma que evite el escape de mortero y la formación de grietas y ranuras a lo largo de la unión.

9.4 Perforaciones

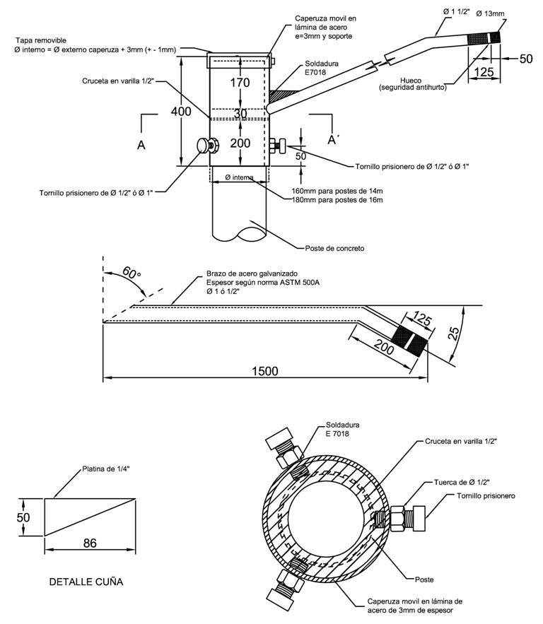
Todos los postes de concreto para alumbrado publico de avenidas con brazos metálicos deberán llevar, un número de perforaciones cuyas distancias entre ellas y sus características se especifican en la Figura 1.

Ninguna de las partes de la armadura de refuerzo del poste, deberá ser visible por esas perforaciones.

Ninguna perforación podrá tener una desviación mayor a 5 mm, con respecto al plano diametral del poste que contiene su eje longitudinal.

9.5 Vaciado del Concreto

Una vez colocada la canasta de refuerzo sobre la formaleta, con los respectivos separadores, y sean instalados los pasadores utilizados para las perforaciones, se iniciará el vaciado a lo largo de la formaleta.

El anillo de acero galvanizado de 1 ½” (38,1 mm) X 1/8” (3,17 mm) y los insertos roscados deben ser instalados en la formaleta antes de fundir el concreto y de tal manera que se asegure que estos elementos no se moverán dentro del proceso de vibrado ó centrifugado.

Al vaciar el concreto sobre la formaleta, se debe hacer lo más cerca a ésta, con el fin de evitar la disgregación de los materiales.

El concreto se debe vaciar inmediatamente después de su amasado.

No se permitirá utilizar el sistema de colgar la canasta para fijar la distancia de recubrimiento, dado que no garantiza ni la uniformidad, ni la exactitud de la distancia de recubrimiento.

9.5.1 Poste vibrado .

El vaciado del concreto se hará simultáneamente con la operación de vibrado, vertiendo el concreto a todo lo largo de la formaleta, en capas sucesivas, sin suspender la vibración.

El poste de concreto vibrado, tendrá las mismas características geométricas y estructurales de los postes fabricados mediante otros sistemas.

La vibración del concreto tiene por objeto, obtener una masa lo más compacta y homogénea posible, utilizando la mínima relación agua / cemento. De esta manera se logra un asentamiento bajo.

El fabricante debe acreditar mediante certificación de laboratorio idóneo y responsable, las características físicas y estructurales de la mezcla o dosificación del concreto utilizado.

La vibración se deberá efectuar mediante vibradores de contacto, sobre la formaleta o a través de mecanismos que le transmitan vibración. El molde o formaleta deberá estar apoyado sobre una base flexible, con el objeto de que la acción de vibrado se transmita en toda su magnitud a la formaleta.

El vibrador debe tener la potencia suficiente y la frecuencia adecuada para desarrollar la acción de compactación de la masa de concreto, distribuirlo uniformemente y evitar la formación de hormigueros y burbujas.

Los postes de concreto vibrado, de sección circular, se pueden fundir a sección plena o a sección anular, en este caso, mediante el uso de un vástago o formaleta central cónica, que genere una perforación a todo lo largo del eje.

En los postes de sección circular plena, el vibrado debe ser de más intensidad que en los postes de sección anular, debido a que la masa de concreto que se debe vibrar, es mucho mayor.

Una vez terminado el vaciado del concreto y vibrado del poste, se le dará un buen acabado a la zona o ventana por donde se hizo el vaciado del concreto, utilizando para esta operación una herramienta adecuada, que le dé un aspecto similar al del resto de la superficie del poste.

Los pasadores se deben extraer después de desformaletear el poste, con el fin de no producir deterioro en las perforaciones.

9.5.2 Poste centrifugado .

En el poste centrifugado, el vaciado de concreto se deberá hacer dosificando progresivamente la cantidad de mezcla, con el fin de que la perforación longitudinal central producida por la fuerza centrífuga sea de espesor uniforme y cubra por completo la canasta, conservando a todo lo largo del poste el mínimo recubrimiento especificado.

Como el poste vibrado, el poste centrifugado tendrá las mismas características geométricas y estructurales de los fabricados por otros sistemas.

El concreto vaciado en la formaleta, es sometido a rotación sobre su eje, originándose una fuerza centrífuga que presiona la mezcla de concreto contra la pared interior de la formaleta, produciendo la compactación centrífuga.

Los agregados más pesados se mueven hacia la periferia, mientras que los livianos son impulsados hacia el interior. El agua por ser el elemento más liviano, es separada de la mezcla y drenada hacia la perforación central.

El proceso de centrifugación del poste, depende del número de revoluciones por minuto de la máquina centrifugadora y de un tiempo de centrifugado tal, que garantice el cumplimiento de las condiciones especificadas en este numeral y no se presente disgregación de materiales, hormigueros ni burbujas.

El concreto utilizado para este tipo de postes, deberá tener una relación agua / cemento y un asentamiento bajos. El fabricante debe certificar las características y calidad de la mezcla utilizada.

9.5.3 Poste preesforzado .

Con excepción del sistema de armadura o canasta, el poste preesforzado sigue el mismo proceso de fabricación del poste vibrado o centrifugado, que se ha descrito con anterioridad.

El refuerzo de preesforzamiento, debe cumplir con las normas ICONTEC 159 ó 2010, preesforzamiento, el inicial no deberá transferirse al concreto hasta que éste no tenga una resistencia de 245 kg/cm² (3485 PSI) (2,402629 X 107 Pascales), o una resistencia equivalente a 167 veces el esfuerzo máximo esperado en el momento de transferencia, y antes de que ocurran las pérdidas de tensionamiento.

9.6 Curado

El curado de los postes, una vez fundidos, se puede efectuar a través de los siguientes sistemas:

9.6.1 Curado con Sellantes .

Este sistema consiste en cubrir toda la superficie exterior del poste con un compuesto plástico, que impide la evaporación rápida del agua de fraguado.

9.6.2 Curado en piscina.

En este sistema , el poste una vez desformaleteado, es sumergido en una piscina, con agua apta para concreto (de acuerdo con el capítulo C3.4 del Código Colombiano de Construcciones Sismo Resistentes, Decreto 33 de 1998) de manera que lo cubra totalmente y permanece en ella el tiempo necesario para que se produzca su fraguado sin retracciones o agrietamientos.

9.6.3 Curado por Vapor.

En este sistema , el poste dentro de la formaleta, y después de haber extraído el vástago en los postes vibrados, es sometido a la acción de vapor saturado a baja presión, el cual, en el caso de los postes centrifugados y vibrados de sección anular, se hace circular a lo largo de la perforación longitudinal central, durante el tiempo necesario para que se produzca el fraguado, sin retracciones o agrietamientos.

En el caso de los postes de sección circular llena, el poste desformaleteado es sometido a la acción del vapor saturado, dentro de una cámara de curado.

9.6.4 Curado por Aspersión .

Una vez desformaleteado el poste, debe mantenerse húmedo mediante el riego de agua apta para elaboración de concreto y durante el tiempo necesario para que se produzca el fraguado sin retracciones o agrietamientos.

9.7 Fraguado con Acelerante

Para los postes tratados en esta norma, se pueden usar acelerantes de fraguado, siempre y cuando sean aprobados por el comprador. No se podrán usar acelerantes que contengan ión cloruro.

Los aditivos, deben cumplir con la norma ICONTEC 1299.

9.8 Desmolde de los Postes

La operación de desmolde se deben efectuar una vez que el poste haya fraguado lo suficiente, para no ocasionarle desperfectos.

El poste una vez desformaleteado, debe presentar una superficie lisa, sin hormigueros ni desprendimientos de concreto. La cima y la base deben mostrar su superficie, en perfecto estado.

No se admiten resanes por defectos en el proceso de vaciado y fundida del poste.

Sin importar a los cuantos días se desmoldé el poste este debe permanecer en reposo hasta su curado final de 28 días, si por algún motivo se moviere antes el fabricante será el responsable de los daños del poste y los que este pueda causar; de todas maneras por ningún motivo se movilizara antes de los 14 días.

9.9 Recubrimiento protector (pinturas)

El esquema de pintura de los postes de concreto debe considerar:
  • Un recubrimiento en toda la longitud con pintura de por lo menos 60 micras; el cual debe ser medido con un micrómetro de profundidad (con capacidad de medida de 0,001 mm) que debe proveer el fabricante.
  • Una adherencia mínima de 400 psi (28 Kg/cm 2 ) (2757903 Pascales).
  • El acabado exterior del poste debe ser liso de color gris RAL 7004 .

10. BRAZOS PARA LUMINARIAS

Los requerimientos técnicos particulares de los brazos de luminarias y de todos los elementos metálico son las siguientes:

10.1 Galvanizado

Todos estos elementos deben ser galvanizados en caliente de acuerdo con la norma NTC 2076 ultima versión.

El espesor de recubrimiento (galvanizado) debe ser como mínimo de 75 micras con acabado liso y uniforme.

10.2 Recubrimiento protector (pinturas)

El esquema de pintura de todos los elementos metálicos de los postes y del concreto debe considerar:

- Un recubrimiento en toda la longitud de los elementos metálicos con pintura e imprímante de por lo menos 60 micras.
- Una adherencia mínima de 400 psi (28 Kg/cm 2 ) (2757903 Pascales)..
- El acabado exterior del poste debe ser de color gris RAL 7004.

10.3 Soldaduras

En las uniones soldadas deben realizarse pases de soldadura E-6010 con suficiente amperaje para obtener máxima penetración entre las piezas; también deben realizarse pases sucesivos de soldadura E-7018 para alcanzar una altura mínima de refuerzo de ¼” (6,35 mm).

Todas las soldaduras deben ser libres de defectos tales como escorias, inclusiones, poros, etc., y de la misma forma deben cumplir el código ASME capitulo IX.

10.4 Características químicas

Las platinas y partes metálicas deben cumplir con las siguientes características:
CARACTERÍSTICAS QUÍMICAS
DE LÁMINAS Y PLATINAS
ELEMENTO SAE 1010 SAE 1020
% Carbono 0,08 a 0,13 0,18 a 0,22
% Fósforo, máx. 0,05 0,05
% Azufre, máx. 0,05 0,05
% Manganeso 0,3 a 0,6 0,3 a 0,6
% Silicio, máx. 0,05 0,05

Nota: Se pueden usar aceros equivalentes como ASTM A36, y otros con la previa autorización de Enel Colombia S.A. ESP
La tubería utilizada para la fabricación de los soportes o brazos, deberá ser del tipo estructural ASTM A 500 grado C y el acero según norma ASTM A 1011 ó ASTM A 570 grado 33 , cumpliendo con los siguientes requisitos:
REQUISITOS QUÍMICOS DEL SOPORTE
ELEMENTO COMPOSICIÓN MÁXIMA
Carbono 0,25%
Manganeso 0,90%
Fósforo 0,05%
Azufre 0,05%

Para el recubrimiento de los anteriores elementos, se deberán tener en cuenta las siguientes características del cinc:
CARACTERÍSTICAS QUÍMICAS DEL CINC ( % )
GRADO Plomo Máximo Hierro Máximo Cadmio máximo Cinc Mínimo
Especial 0,03 0,02 0,02 99,9

Las láminas, tubos y platinas utilizadas para la fabricación de los soportes de postes de concreto deberán poseer las siguientes características mecánicas mínimas:
CARACTERÍSTICAS MECÁNICAS
ITEM VALOR
Límite mínimo de fluencia del acero 18,4 Kg/mm 2 (180 MN/m 2 )
Resistencia a la tracción 34,7 Kg/mm 2 (340 MN/m 2 )
Elongación 30% en 50 mm (2 pulgadas)

Los tornillos de acero galvanizado deberán ser fabricados según las especificaciones de las normas NTC 858 y ANSI/ASME B1.1 –1982 (diámetros finales en dimensiones Standart), deberán ser galvanizadas según norma NTC 2076.

10.6 Características del recubrimiento

Los elementos metálicos para los postes alumbrado público serán totalmente galvanizados por inmersión en caliente y deberán cumplir con las especificaciones técnicas de la norma NTC 2076, teniendo en cuenta que su superficie deberá estar libre de burbujas, con un completo revestimiento, sin depósitos de escoria, sin manchas negras o cualquier otro tipo de inclusiones o imperfecciones.

Las láminas, platinas y elementos roscados se galvanizan con clase B-2 y los elementos roscados con clase C según Norma NTC 2076 (ver la siguiente tabla).
REQUISITOS DE GALVANIZADO PARA LÁMINAS, PLATINAS Y ELEMENTOS ROSCADOS
ELEMENTO PROMEDIO MÍNIMO
gr/m 2 µ mm gr/m 2 µ mm
Platinas y láminas 458 65,4 381 54,4
Elementos Roscados 397 56,6 336 48

10.7 Acabado

Las platinas y los tubos deben ser de una sola pieza, libres de soldaduras intermedias, libres de deformaciones, fisura, aristas cortantes, y defectos de laminación. No se permiten dobleces ni rebabas en las zonas de corte, perforadas o punzadas. El galvanizado debe estar libre de burbujas, depósitos de escorias, manchas negras, excoriaciones u otro tipo de inclusiones.

Nota: No se permite reparaciones del galvanizado con base de pinturas u otro procedimiento en caso de defectos la única reparación admisible es el regalvanizado

11. ENSAYOS DE LABORATORIO Y PRUEBAS DE CARGA

11.1 Ensayos de Laboratorio

El registro completo de los ensayos de los materiales y del concreto, debe estar disponible para el comprador, durante el tiempo que dure la fabricación y por los dos años siguientes a su terminación.

11.1.1 Ensayos de Materiales del Concreto.

Todos los ensayos de los materiales y del concreto en sí, se deben realizar de acuerdo con la norma ICONTEC correspondiente.

El cemento debe cumplir con las normas ICONTEC 121 y 321.

El cemento analizado debe corresponder a aquel sobre el cual se base la dosificación del concreto, que se va a utilizar en la fabricación del poste.

Los agregados para el concreto deben cumplir con la norma ICONTEC 174 (ASTM C33).

El agregado grueso o grava, tendrá un tamaño máximo de 19 mm y mínimo de 10 mm.

El agregado fino o arena se debe lavar, y quedar libre de sustancias químicas, orgánicas o de cualquier naturaleza, que puedan perjudicar las características físicas de la mezcla.

El agua utilizada en la mezcla del concreto, debe estar limpia y libre de cantidades perjudiciales de aceites, ácidos, álcalis, sales, materias orgánicas u otras sustancias perjudiciales para el concreto o el acero de refuerzo y ajustarse a lo especificado en el capítulo C.3.4 del Código Colombiano de Construcciones Sismo Resistentes. Decreto 33 de 1998.

Para el Ensayo de la resistencia del concreto a la compresión, el fabricante o proveedor debe preparar cuatro cilindros diarios, de acuerdo con la norma ICONTEC 673 (ASTM C39) “ Ensayo de resistencia a la compresión de cilindros normales de hormigón”. De estos cilindros diarios, se enviarán dos al laboratorio y se ensayarán a edades de 7 y 14 días. En caso que la resistencia de los 7 y 14 días, proyectada a los 28 días sea menor que f'cmin + 85 kg/cm² (1209 PSI) (8335653 Pascales), se deberán ensayar los otros dos cilindros a los 28 días. Se halla la resistencia promedio de los cuatro cilindros y se verifica si cumple el requisito anterior. Si no cumple, se rechazará la producción del día en que fueron tomadas las cuatro muestras. (Ver Formulario 1). Los resultados de los ensayos de estos cilindros se deberán suministrar al comprador para su conocimiento y control, y deben realizarse por un laboratorio aprobado por el comprador.

Nota. Para verificar si los materiales utilizados en la elaboración de la mezcla del concreto son de la calidad especificada, se deben realizar los ensayos de laboratorio correspondientes sobre muestras representativas de tales materiales.

11.1.2 Varillas de Refuerzo.

El fabricante deberá realizar los análisis de laboratorio de las probetas seleccionadas del lote de acero que se va a utilizar en el armado de los postes.

En los ensayos de laboratorio de estas probetas, se deben suministrar los siguientes resultados:
  • Carga máxima a la tracción.
  • Límite de fluencia al 0,2%.
  • Porcentaje de alargamiento en probeta de 200 mm (8").

Las varillas de refuerzo, ya sean corrugadas o lisas, deben cumplir con las normas ICONTEC 116, 161 ó 248.

El refuerzo para concreto pre esforzado, debe cumplir además con la norma ICONTEC 2010 ó 159.

11.2 Prueba de Carga

Para las pruebas de flexión o de rotura de un poste en posición horizontal, se debe contar con las instalaciones indicadas en la figura 1.

11.2.1 Patio de Pruebas.

El patio de pruebas debe tener dimensiones apropiadas para la prueba, ser plano y el piso bien afinado.

10.2.1.1 Dispositivo de anclaje. Se debe disponer de un sistema adecuado para anclar el poste, que permita reproducir con la mayor aproximación posible, las condiciones de restricción que va a tener en la realidad.

10.2.1.2 Toma de fuerza. Se debe disponer de un anclaje o toma de fuerza para asegurar el dispositivo de aplicación de cargas.

10.2.1.3 Accesorios y aparatos. Para el poste de prueba en posición horizontal, se requerirán los siguientes accesorios y aparatos:

Apoyos deslizantes. La longitud en voladizo del poste, deberá contar con dos apoyos deslizantes (sobre ruedas) que ofrezcan la menor resistencia posible al rozamiento y que irán colocados, uno a 30 cm de la cima, y el otro en el centro de gravedad del poste.

-Los apoyos deslizantes se deben diseñar cuidadosamente de manera que no se presente inflexión en el diagrama de momentos, ni valores de cortante máximo en los sitios en que se encuentran localizados.

-Superficie deslizante. Los apoyos deslizantes se deberán desplazar sobre una superficie lisa, con el fin de disminuir al máximo el rozamiento.

-Dispositivo para aplicar cargas. El dispositivo usado, debe permitir la aplicación de las cargas en forma progresiva y sin golpes.

-Dinamómetro. Para la medición de las cargas, se debe contar con un dinamómetro con un margen de error inferior al 5% y que tenga dos agujas indicadoras, para que una de ellas permanezca indicando la carga que produjo el colapso del poste. El dinamómetro se debe calibrar por lo menos una vez al año.

-Comparadores de carátula con base magnética. Para la medición del error en la rigidez del dispositivo de anclaje estos comparadores de carátulas deben tener un mínimo por unidad de medición 0.01 mm

- Cable de carga. El Cable que se va a utilizar en las pruebas, deberá ser flexible y de alta resistencia, con un factor de seguridad mínimo de 3, sobre la carga de rotura del poste.

11.2.2 Prueba de Carga para Flexión.

11.2.2.1 Edad del poste . El poste que se vaya a someter al Ensayo de carga por flexión, debe haber tenido un período de fraguado mínimo de 28 días, a menos que se acuerde con el comprador probar un poste con menos período de fraguado, de todas maneras los datos se tomaran como de 28 días y no se asumirá corrección alguna.

11.2.2.2 Empotramiento . El empotramiento del poste en el dispositivo empleado, debe reproducir, con la mayor exactitud posible, las condiciones reales de restricción a que estará sometido en la práctica.

La longitud del empotramiento para el Ensayo , será la establecida en el numeral 6.1.2 de esta norma.

11.2.2.3 Procedimiento. El poste se somete a incrementos progresivos de carga, hasta llegar a su carga de trabajo en dos etapas así:

Se carga inicialmente el poste con el 50% de la carga de trabajo y se descarga hasta cero. Se ajusta el mecanismo de anclaje, en caso de ser necesario, y se establece el cero de referencia para control de deformaciones.

Luego, se carga el poste con incrementos indicados en el formulario 2 hasta la carga de trabajo establecida, y se verifica si se han presentado fisuras anchas y profundas que indiquen falla estructural.

Se mide la flecha producida por la aplicación de la carga de trabajo, se descarga, luego se determina si hubo deformación permanente y se establece su magnitud (éstos valores no deberán exceder los establecidos en el numeral 6.5 tabla 3). La deformación permanente bajo la acción de la carga de trabajo, no debe ser superior al 5% de la producida por efecto de dicha carga.

Para el poste en posición horizontal, se fijará un hito firme en la cima del poste. Todas las lecturas se tomarán a partir de este.


11.2.3 Prueba de Carga para Flexión por carga de luminaria .

11.2.3.1 Edad del poste. El poste que se vaya a someter al Ensayo de carga por flexión por carga de la luminaria , debe haber tenido un período de fraguado mínimo de 28 días, a menos que se acuerde con el comprador probar un poste con menos período de fraguado, de todas maneras los datos se tomaran como de 28 días y no se asumirá corrección alguna.

11.2.3.2 Empotramiento . El empotramiento del poste en el dispositivo empleado, debe reproducir, con la mayor exactitud posible, las condiciones reales de restricción a que estará sometido en la práctica.

La longitud del empotramiento para el Ensayo , será la establecida en el numeral 6.1.2 de esta norma.

11.2.3. 3 Procedimiento. El poste se somete a incrementos progresivos de carga, hasta llegar a su carga de 200 kg. (1961,33 Newtons) en dos etapas así:

Se carga inicialmente el poste con el 100 kg. (980,665 Newtons) de la carga y se descarga hasta cero. Se ajusta el mecanismo de anclaje, en caso de ser necesario, y se establece el cero de referencia para control de deformaciones.

Luego, se carga el poste con incrementos indicados en el formulario 2 hasta la carga de 200 Kg (1961,33 Newtons), y se verifica si se han presentado fisuras anchas y profundas que indiquen falla estructural.

Este Procedimiento se realizara en el brazo de la parte superior y del brazo ubicado a 9 metros (Este soporte es para vías peatonales y ciclovías) los valores de la prueba deben superar los mínimos establecidos.

11.2.4 Prueba de Carga para Rotura.

11.2.4.1 Edad del poste . Tal como se estableció para la prueba de carga para flexión, el poste se debe someter a un período mínimo de fraguado de 28 días, a menos que se acuerde otra edad con el comprador.

11.2.4.2 Empotramiento . El empotramiento del poste en el dispositivo empleado, debe reproducir con la mayor exactitud posible las condiciones reales de restricción a que estará sometido en la práctica.

El poste para la prueba se debe anclar de acuerdo con lo ilustrado en la figura 2.

11.2.4.3 Procedimiento . Hechas las instalaciones para el Ensayo , tal como se indica en la figura 1 y se debe iniciar la aplicación progresiva de cargas, aplicadas a 20 cm de la cima.

El proceso continúa, con el incremento progresivo de la carga aplicada, hasta que se produzca el colapso del poste, por fluencia del acero o aplastamiento del concreto.

Se deben anotar las anomalías que vayan presentándose en el poste durante el transcurso de la prueba, tales como grietas pronunciadas, fallas en el empotramiento, desprendimiento del concreto, entre otros.

Una vez se produzca el colapso del poste con una carga aplicada igual o superior a la carga mínima de rotura, el poste debe romperse.

11.3 Pruebas para elementos metálicos

Las pruebas y ensayos para la recepción de los materiales serán efectuados en presencia de los representantes de Enel Colombia S.A.; así mismo se realizarán en las instalaciones del proveedor quien deberá asumir su costo y proporcionar el material , equipos y personal necesario para tal fin.

Si los resultados de las pruebas o los equipos de prueba no son confiables, éstas igualmente podrán ser realizadas o repetidas a costa del proveedor en laboratorios acreditados ante la Superintendencia de Industria y Comercio SIC, o un organismo internacional reconocido para la elaboración de pruebas.

Enel Colombia S.A. se reserva el derecho de realizar una inspección durante el proceso de fabricación; para tal efecto el proveedor suministrará los medios necesarios para facilitar la misma.

11.3.1 Prueba Dimensional

La verificación de las dimensiones se hará con los instrumentos de medida que den la aproximación requerida (cinta metálica con divisiones de 1 mm para longitudes y calibrador para los diámetros y espesores). El tamaño de la muestra deberá estar de acuerdo NTC 2859-1.

Para probar la circularidad de los soportes superiores de luminaria dobles y sencillos se construirán dos dispositivos de prueba uno con un diámetro de exterior de 140 mm menos 1,5 mm maquinado y de altura 220 mm, en toreado para probar el diámetro interior del soporte y otro con los mismos 220 mm de longitud con un diámetro interior de 140 mm más 1,5 mm y mas el espesor de pared de material para probar el diámetro exterior del soporte.

Los soporte deben entrar en los dos dispositivos sin golpes; de no entrar se considera una no conformidad que descalifica los brazos.

11.3.2 Análisis Químico

Se efectuará el análisis químico de acuerdo a lo requerido en el numeral 8.4 de la presente especificación y las normas NTC 23 y 180 (carbono), NTC 27 (azufre), NTC 181 (fósforo), NTC 24 o 25 (manganeso), NTC 26 o 28 (silicio) o en su defecto se aceptará un certificado de calidad de los materiales empleados, emitido por un laboratorio reconocido y aprobado por Enel Colombia S.A. El análisis químico puede ser realizado en un espectrómetro calibrado con los patrones correspondientes.

11.3.3 Prueba del Galvanizado

Esta prueba se hará de acuerdo con la norma NTC 2076.

La prueba de espesor de galvanizado puede realizarse con un ecómetro debidamente calibrado.

11.4 Obligación de Ejecución de los Ensayos y Pruebas

Es obligación del fabricante realizar las siguientes pruebas de postes y ensayos de materiales:

1. Ensayo de flexión.
2. Ensayo de flexión por carga de luminaria
3. Ensayo de rotura.
4. Diseño de la mezcla incluyendo el análisis fisicoquímico del agua.
5. Ensayo de tracción del acero.
6. Ensayo de resistencia a la compresión de los cilindros de concreto.
7. Ensayo de pruebas dimensional
8. Inspección visual

Las pruebas correspondientes a los puntos 4, 5 y 6 se deberán realizar por un laboratorio especializado y aceptado previamente por Enel Colombia S.A. ESP.

Es obligación del fabricante realizar las siguientes pruebas en los brazos y ensayos de materiales:

1. Ensayo de composición química.
2. Ensayo de espesor de galvanizado
3. Ensayo de espesor de pintura.
4. Ensayo de pruebas dimensional
5. Inspección visual

12. SUMINISTRO Y RECEPCIÓN DE POSTERÍA

12.1 Tolerancias Aceptadas

12.1.1 Longitud del Poste .

Se acepta una tolerancia en la longitud del poste de ± 50 milímetros.

12.1.2 Desviación del Eje Longitudinal.

Se acepta una desviación del eje longitudinal del poste de 20 mm.

12.1.3 Dimensión de la Sección Transversal.

En la dimensión del diámetro externo, se acepta una tolerancia de + 3 mm y 2 mm.

12.1.4 Dimensiones de las platinas

En la dimensión del longitudinal y transversal, se acepta una tolerancia de + 3 mm y 2 mm.

En el espesor de la platina , se acepta una tolerancia +0,2 mm y –0,1 mm

12.1.5 Dimensiones de los tubos metálicos

En la dimensión del longitudinal, se acepta una tolerancia de + 5 mm y 2 mm.

En cuanto a diámetros y espesor del tubo se regirán por la norma de tubo tipo estructural ASTM A 500 grado C

12.1.6 Dimensiones entre centros de agujeros

En la dimensión entre centros de agujeros, se acepta una tolerancia de + 0,5 mm y – 0,5 mm.

12.1.7 Dimensiones en diámetros de agujeros

En la dimensión entre centros de agujeros, se acepta una tolerancia de + 0,7 mm y – 0,1 mm.

12.2 Marcas y Señalizaciones

12.2.1 Marcas.

Todos los postes deberán llevar, en forma clara y a una altura de 2 m sobre la sección de empotramiento, una leyenda en bajo relieve o placa embebida en el concreto, que indique:

- Nombre de BOG-CUN (en bajo relieve)
- Nombre o razón social del fabricante.
- Longitud del poste en metros por carga mínima de rotura en kg.
- Fecha de fabricación, día mes año.
- Peso del poste.

Todos los brazos de los postes deben tener por lo menos la siguiente marcación

- Nombre de BOG-CUN( en bajo relieve)
- Nombre o razón social del fabricante.

12.2.2 Señalizaciones.

Todos los postes deben llevar las siguientes señalizaciones:

Centro de gravedad. Debe llevar una franja, pintada de color rojo, de 30 mm de ancho y que cubra el semiperímetro de la sección, en el sitio que corresponde al centro de gravedad.

Profundidad de empotramiento. Todos los postes deben llevar pintada, una franja de color verde, de 30 mm de ancho y que cubra el semiperímetro de la sección que indique hasta donde se debe enterrar el poste.

Dirección de la luminaria peatonal ó ciclovías. Debe llevar una franja, pintada de color rojo, de 30 mm de ancho y 300 mm de largo, en dirección longitudinal del poste partiendo de la línea de empotramiento y en la dirección del centro de los insertos.

12.3 Recepción de Postería

La recepción de los postes, deberá hacerla el gestor técnico o un representante de Enel Colombia S.A. E.S.P, quienes inspeccionarán los lotes en forma detallada, para determinar si cumplen las especificaciones establecidas.

Durante el proceso de recepción, se deberá cumplir lo establecido en los numerales 11.3.1, 11.3.2, 11.3.3, 11.3.4 y 11.3.5.

De la misma manera debe cumplirse con los procedimientos de inspección que determine Enel Colombia S.A. ESP y el nivel de inspección general es II y el NCA = 4% ó el que determine la empresa siguiendo procedimiento antes mencionado.


12.3.1 Motivos de rechazo.

Se rechazarán los postes por las siguientes causas:

12.3.1.1 Defectos críticos.

- La resistencia a la compresión del concreto no cumple con los requisitos mínimos especificados.
- Recubrimiento menor que el especificado.
- Postes con resanes, cuando la profundidad de estos haya llegado hasta el refuerzo principal.
- Los resanes superficiales hechos con mortero sin el aditivo apropiado para adherencia a concreto viejo o en forma inadecuada.
- Estructura metálica a la vista, ya sean varillas o alambres.
- Grietas transversales o longitudinales.
- Ranuras longitudinales muy amplias y profundas, causadas por mal cierre de la formaleta.
- Destrucción parcial o total de las secciones de cima o base, por descuido en la desformaleteada.
- El incumplimiento de las tolerancias especificadas, se consideran como defectos críticos.

12.3.1.2 Defectos mayores.

Perforaciones con el eje desviado respecto a su posición teórica, taponadas o de diámetro inferior al especifica¬do.

- Superficie del poste con rugosidades pronunciadas, burbujas en cantidad exagerada o manchas por utilización inadecuada de sellantes o compuestos desformaleteantes.

- No colocación de la leyenda mencionada en el numeral 10.2.1.

12.3.1.3 Defectos menores.

- Falta de marcado del centro de gravedad y de la longitud de empotramiento.

12.3.2 Plan de muestreo para las pruebas de carga de flexión y rotura.

Para las pruebas de flexión, se regirán por el siguiente plan de muestreo:

PRUEBA DE CARGA DE FLEXIÓN
Nivel de Inspección especial S 3, NCA = 4%
Tamaño del lote Tamaño de muestra Aceptación Rechazos
2 -150 3 0 1
151-500 13 1 2

Nota. Si el tamaño de la muestra es mayor o igual al lote , se hará inspección 100%

Para las pruebas de rotura, se regirán por el siguiente plan de muestreo:

PRUEBA DE ROTURA
Nivel de Inspección especial S 1, NCA = 4%
Tamaño del lote Tamaño de muestra Aceptación Rechazos
50-150 3 0 1

12.3.3 Límites para aceptación o rechazo.

- Si el número de unidades defectuosas en la muestra es igual o mayor que el número de rechazos, no se aceptará el lote .

13. REQUISITOS DE LAS OFERTAS

El Oferente obligatoriamente deberá incluir con su propuesta, la siguiente información:
  • Planilla de características técnicas garantizadas, la cual deberá ser diligenciada completamente, firmada y sellada por el oferente.
  • Catálogos originales completos y actualizados del fabricante, que correspondan a los dispositivos cotizados, en la planilla de características técnicas garantizadas.
  • Protocolos de pruebas de acuerdo con las normas indicadas en el numeral 4 de la presente especificación. En tales protocolos se deberán anotar las fechas de fabricación y pruebas del equipo , para permitir la verificación de las características técnicas garantizadas.
  • Información adicional que considere aporta explicación a su diseño (dibujos, detalles, características de operación, dimensiones y pesos de los materiales ofertados).
Enel Colombia S.A. podrá descartar ofertas que no cumplan con las anteriores disposiciones, sin expresión de causa ni obligación de compensación.

14. GARANTÍA DE FABRICA

Enel Colombia S.A. E.S.P requiere como mínimo, un período de garantía de fábrica de cuarenta y ocho (48) meses, a partir de la entrega de los bienes.

15. INSPECCIÓN EN FABRICA

El suministrador enviará con no menos de quince (15) días calendario de anticipación, a la fecha programada para la realización de las pruebas en fábrica, el formato de protocolos de pruebas

El PROVEEDOR debe brindar plena colaboración al RESPONSABLE en el cumplimiento de sus funciones.

El valor de las pruebas y ensayos debe incluirse en los precios cotizados en la propuesta. Enel Colombia se reserva el derecho de descartar las propuestas que no ofrezcan pruebas, o si las ofrecidas son consideradas insuficientes para garantizar la calidad de los dispositivos.

16. CERTIFICADOS DE CONFORMIDAD

El oferente adjuntará con su propuesta el “Certificado de conformidad de Producto ”, expedido por una entidad autorizada por la Superintendencia de Industria y Comercio.

No se admiten certificados de productos que presente exclusiones a la especificación técnica .

17. PRESENTACIÓN DE LAS OFERTAS

El oferente deberá presentar su oferta técnica (en medio impreso) en el siguiente orden:
  • ANEXO 1 : relación de los bienes cotizados.
  • ANEXO 2: información del oferente.
  • ANEXO 3: planillas de características técnicas garantizadas. (En medio duro y medio magnético)
  • EXCEPCIONES TÉCNICAS : apartado en el cual se deben relacionar las excepciones de carácter exclusivamente técnico de la oferta, respecto a los bienes solicitados. Si la oferta no presenta excepción, se indicaría expresamente en el mismo “NO HAY EXCEPCIONES”
  • PROTOCOLO DE PRUEBAS : relación de los ensayos realizados, de acuerdo con lo indicado en el apartado 8 de la presente especificación.
  • EVIDENCIA TÉCNICA : relación de clientes, evidencia de su capacidad técnica y experiencias relacionadas con los materiales y/o equipos cotizados.
  • GARANTÍA : carta de garantía de los bienes cotizados.
  • NORMAS : normas técnicas aplicables a los bienes cotizados.
  • CATÁLOGOS : catálogos originales completos y actualizados del fabricante, que correspondan a los datos bienes cotizados.
  • INFORMACIÓN ADICIONAL : información adicional que se considere aporta explicación al diseño del dispositivo, así como las instrucciones de instalación, operación.
Adicionalmente, el fabricante debe incluir la anterior información en formato magnético en un CD o Disquete.

Enel Colombia S.A. podrá descartar ofertas que no cumplan con las anteriores disposiciones, sin expresión de causa ni obligación de compensación.

ANEXO 1 PLANILLA DE CARACTERÍSTICAS TÉCNICAS GARANTIZADAS - POSTES

ÍTEM CARACTERÍSTICAS SOLICITADO
1 Fabricante
2 Proveedor del poste
3 Proveedor de accesorios del electrodo
4 Normas técnicas de diseño y tipo de fabricación ET-213, NTC-1329
5 Longitud total (m)
6 Diámetro en la cima (cm)
7 Diámetro en la base (cm)
8 Peso total (kg)
9 Uso de chaflán de 3" de diámetro en la parte superior del poste  en reemplazo de la caja 5800 y por debajo de la linea de tierra, para que permita conectar el cable de AP y/o tierra.(No se permite el uso de tubo PVC y caja por la dimensión del poste esbelto)
10 Tipo y calibre del conductor inmerso en concreto
Incluye anillo en platina galvanizada de 1” x 18”
11 Resistencia mínima concreto f'c (kg/cm²)
Incluye en uso de bujes insertos
12 Carga mínima de rotura (kgf)
13 Sistema de construcción (vibrado/centrifugado)
14 Carga de trabajo (kgf)
15 Factor de seguridad
16 Tipo de poste (Para AP)
17 Cumple con marcación y señalización según ítem 11.2 (Si/No, detalles)
18 Presentan protocolo de pruebas (Si/No, indicar las pruebas)
RESULTADO DE EVALUACIÓN TÉCNICA
19 Certificación de sistema de calidad Entidad acreditadora
Número de acreditación
Fecha de aprobación (día/mes/año)
Vigencia
Adjunta el certificado (Si/No)
20 Certificación de producto con normas técnicas Entidad acreditadora
Número de acreditación
Fecha de aprobación (día/mes/año)
Vigencia
Adjunta el certificado (Si/No)
21 Certificación de producto con RETILAP Entidad acreditadora
Número de acreditación
Fecha de aprobación (día/mes/año)
Vigencia
Adjunta el certificado (Si/No)



>>
ANEXO 2
PLANILLA DE CARACTERÍSTICAS TÉCNICAS GARANTIZADAS - SOPORTES
CARACTERÍSTICAS TÉCNICAS SOPORTE METÁLICO PARA LUMINARIA
ÍTEM ELEMENTO CARACTERÍSTICA OFERTADO
1 Normas aplicadas Fabricación
Pruebas
2 Material de fabricación (Describir)
3 Adjunta planos dimensionados (Si/No)
4 Tipo (Sencillo, Doble, Doble propósito, Otro) (aclarar)
5 Dimensiónales Longitud del soporte Vehicular
Peatonal
Diámetro
Espesor
Radios de curvatura ITEM Peatonal Vehicular
Ángulos
Tramos
Cuña (Únicamente soporte vehicular) Espesor
Dimensión
Diámetro de la perforación antihurto
6 Caperuza (Únicamente soporte vehicular) Dimensiones [mm] Posee tapa removible (Si/No)
Diámetro en la tapa
Diámetro inferior
Tolerancia
Espesor
Longitud
Tornillos Tipo
Diámetro
Longitud
Cantidad
Arandela Diámetro
7 Galvanización. Norma
Clase
Espesor Revestimiento
8 Esquema de pintura Color (referencia RAL)
Recubrimiento con pintura e imprimante ( en micras)
Adherencia [PSI]
9 Protección Cartón Descripción
Incluido (Si/No)
Plástico Descripción
Calibre
Incluido (Si/No)
10 Marcación en la cuña (Contestar Si/No según corresponda) Tipo (Aclarar)
Con marca de fabrica
Con Enel Colombia S.A.
Con orden de compra
11 Pruebas Están incluidas dentro del precio del material (Si/No)
A realizar en fabrica (Describir)
12 Garantía (Meses)
13 Desviaciones técnicas

Firma del oferente _______________________

FIGURA 1. Dimensiones de poste esbelto


Definiciones para pruebas mecánicas de flexión

Longitud total (Lt): Distancia entre los centros geométricos de la base y cima del poste.

Longitud útil (Lu): Distancia entre la sección de empotramiento y la cima.

Longitud de empotramiento (Le): Distancia entre la sección de empotramiento y la base del poste
FIGURA 2

Definiciones para pruebas mecánicas de flexión por carga de luminaria superior

Longitud total (Lt): Distancia entre los centros geométricos de la base y cima del poste.

Longitud útil (Lu): Distancia entre la sección de empotramiento y la cima.

Longitud de empotramiento (Le): Distancia entre la sección de empotramiento y la base del poste
FIGURA 3

Definiciones para pruebas mecánicas de flexión por carga de luminaria peatonal

Longitud total (Lt): Distancia entre los centros geométricos de la base y cima del poste.

Longitud útil (Lu): Distancia entre la sección de empotramiento y la cima.

Longitud de empotramiento (Le): Distancia entre la sección de empotramiento y la base del poste
FIGURA 4

FIGURA 5. Soporte sencillo para luminaria

FIGURA 6. Soporte doble para luminaria

FIGURA 7. Detalle de la tapa removible.


FIGURA 8. Soporte para luminaria peatonal 9000 mm.(Este soporte es para vías peatonales y ciclovías en postes de 12 y 14 m)
FIGURA 8. Soporte para luminaria peatonal 9000 mm.


Nota : Los 9000 mm deben tomarse desde la línea de enterramiento hasta la proyección en el poste del punto superior del soporte de la luminaria (donde irá instalada la luminaria ).
DATOS ADICIONALES
Revisión #

5

Fecha de entrada en vigencia

HERRAMIENTAS
RELACIONADAS

Actividad de los usuarios

Estado del comentario