LA453 Red compacta en bandera – suspensión
- Contenido

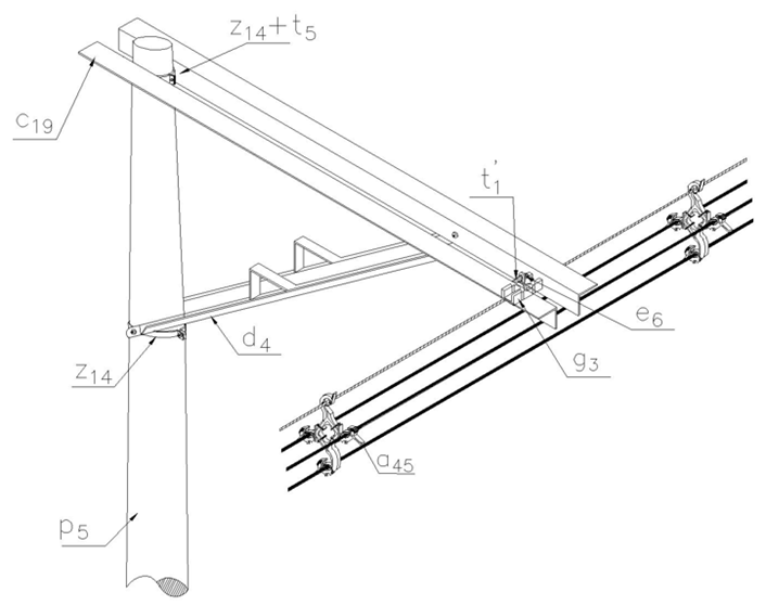
Figura 1. Vista isométrica

Figura 2. Vista Frontal.

Figura 3. Vista Superior.
LISTA DE MATERIALES
Cantidad | Código | ET | Descripción | |
a45 | 2 | 163152 | Espaciador angular 15 kV con grapas | |
c19 | 2 | 251506 | Cruceta metálica 2.5 m | |
d4 | 2 | 240080 | Diagonal metálica en ángulo tipo 3 | |
e6 | 1 | 251492 | Eslabón en U 5/8” | |
g3 | 1 | 251516 | Grapa suspensión (2 pernos) 2/0 – 4/0 AWG | |
p5 | 1 | 230053 | Poste de concreto 12 m, 750 kg (1) | |
t1 | 1 | 251360 | Espárrago 5/8" x 18" | |
t5 | 5 | 251363 | Tornillo carruaje 5/8” x 1 1/2" | |
z14 | 2 | 274311 | Abrazadera de dos salidas tipo 4, 200 mm. (2). |
ALTERNATIVAS:
(1) Poste de fibra o metálico.
(2) La abrazadera que aparece en la lista es una referencia, consulte la ET432 para su selección adecuada.
NOTAS:
- El poste que aparece en la lista es una referencia, consulte la norma (LA010-2-1) para su selección.
- El mensajero debe ser puesto a tierra, revisar la norma LA450.
- Se deben ubicar espaciadores, revisar la norma LA450.
DATOS ADICIONALES
Revisión #
0
Fecha de entrada en vigencia
Actividad de los usuarios
Para hacer comentarios debe iniciar sesión o registrarse aquí