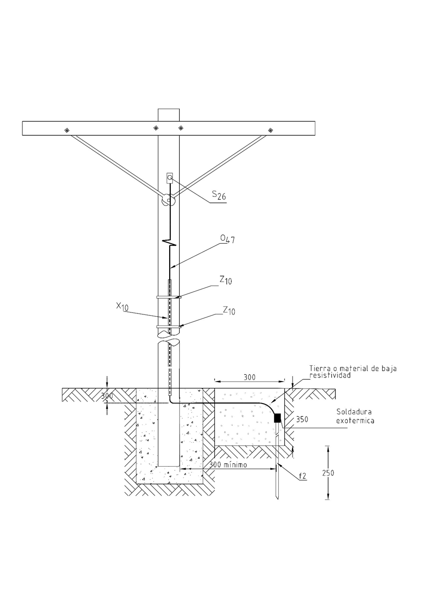
LA402 Accesorios para puesta a tierra instalación exterior al poste

  • Contenido


LISTA DE MATERIALES
SÍMB. CANT. CÓDIGO SAP ESP. TÉCNICA DESCRIPCIÓN
s 26 -- ET-304 Conector tipo tornillo pasante 2-1/0 AWG derivación 10-1/0 AWG (1)
f 2 1 6762280 ET-490 Varilla de puesta a tierra acero recubierto en Cu (15,8 mm x 2,44 m) (4)
O 47 -- ET-122 Cable acero recubierto en Cobre Nº 4 AWG (4)
Z 10 3 ET-431 Abrazadera de una salida tipo 5, 250 mm (2) (3)
x 10 3 ET-601 Metros de tubo galvanizado 1/2"



NOTAS :

(1) El número de conectores tipo tornillo dependerá del número de equipos a conectar al electrodo
(2) Se deben instalar 3 abrazaderas de una salida con soldadura en los dos tornillos de apriete y en el tubo de ½” a 2 m, 5 m y 8 m del nivel del piso como requerimiento anti vandálico
(3) La abrazadera es una referencia para efectos de selección se recomienda utilizar acorde con tabla 1 y tabla No. 2.

ALTERNATIVA :

(4) Para conductor del electrodo en acero usar, cable ¼” E-MT-028 , varilla en acero ET-492 , conector en acero ET 491 para conectar conductor al electrodo de acero
(5) Para proyectos nuevos utilizar LA-408 accesorios para puesta a tierra inmersa instalación poste de concreto

Tabla No. 1 Selección tipo de abrazadera
Tipo "T" de abrazadera de una salida ET-431
Altura del piso 10-510 10-1050 12-750 12-1050 14-1050
2 m T5 T6 T6 T7 T7
5m T4 T5 T5 T6 T6
8m T3 T4 T4 T5 T5


Tabla No. 2 Tipo de abrazadera
SIMBOLO COD. SAP ABRAZADERA D (mm)
Z 7 6762235 TIPO N°2 140
Z 8 6762236 TIPO N°3 180
Z 9 6762237 TIPO N°4 200
Z 10 TIPO N°5 250
Z 18 TIPO N°6 300
Z 27 TIPO N°7 350

DATOS ADICIONALES
Revisión #

LA 402

Fecha de entrada en vigencia

HERRAMIENTAS
RELACIONADAS

Actividad de los usuarios

Estado del comentario