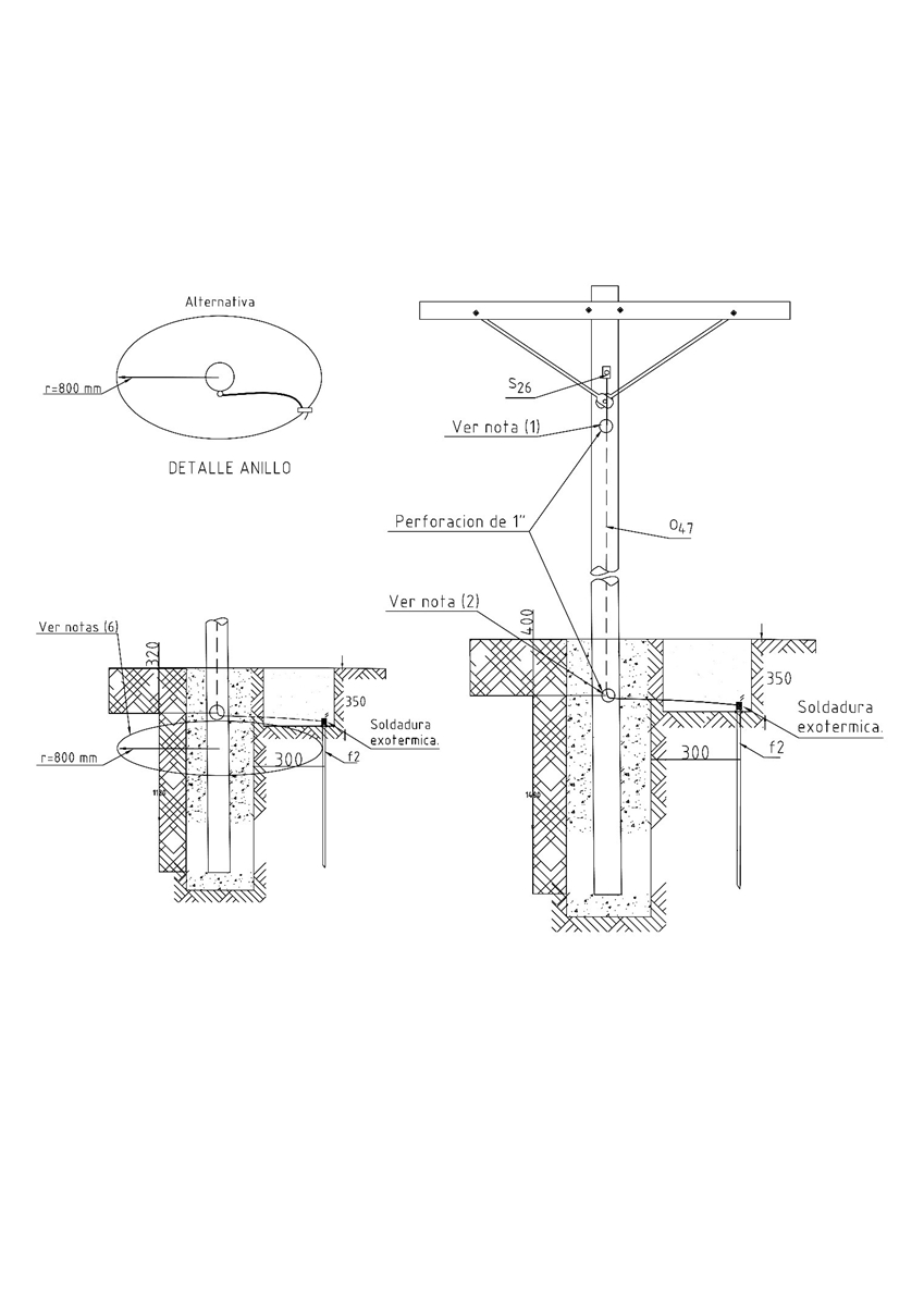
LA401 Accesorios para puesta a tierra instalación poste de concreto
- Contenido
LISTA DE MATERIALES
| SÍMB. | CANT. | CÓDIGOSAP | ESP.TÉCNICA | DESCRIPCIÓN |
| s26 | -- | ET-304 | Conector tipo tornillo pasante 2-1/0 AWG derivación 10-1/0 AWG (3) | |
| f2 | 1 | 6762280 | ET-490 | Varilla de puesta a tierra acero recubierto en Cu de 5/8” x 8’(2,44 m) (4) |
| O47 | ET-122 | Cable acero recubierto en Cobre Nº 4 AWG (4) |
NOTAS :
(1). Perforación superior para ingreso o salida del conductor del electrodo de puesta a tierra ubicado a 30 cm de la última perforación superior.
(2). Perforación inferior para ingreso o salida del conductor del electrodo de puesta a tierra
(3). El número de conectores tipo tornillo dependerá del número de equipos a conectar al electrodo
ALTERNATIVAS :
(4). Para electrodo en acero usar, cable ¼” E-MT-028 , varilla en acero ET-492 , conector en acero ET 491 para conectar electrodo a varilla acero
(5). Para proyectos nuevos utilizar LA-408 accesorios para puesta a tierra inmersa instalación poste de concreto.
(6). Opción anillo de protección alrededor del poste para protección humana
(7). Para proyectos existentes donde el poste no tenga las perforaciones de 1” utilizar la LA402
DATOS ADICIONALES
Revisión #
LA 401
Fecha de entrada en vigencia
Actividad de los usuarios
Para hacer comentarios debe iniciar sesión o registrarse aquí