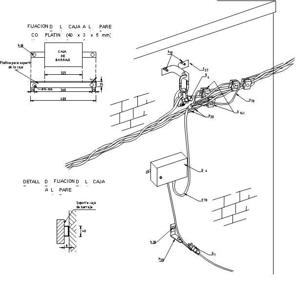
LA347 Circuito secundario sencillo en conductor trenzado sobre muros construcción en línea con caja de barrajes
- Contenido
LISTA DE MATERIALES
| SÍMB. | CANT. | CÓDIGO SAP | ESP. TÉCNICA | DESCRIPCIÓN |
| a 20 | 2 | 6762518 | Amarre plástico para cable trenzado | |
| 1 | Caja trifásica tipo intemperie para acometidas de B.T. | |||
| f 57 | 1 | Soporte de suspensión red trenzada en muro | ||
| g 4 | 1 | 274313 | ET-355 | Grapa de suspensión aislada para cable trenzado de B.T. |
| h 1 | 1 | 251380 | ET-468 | Tensor de acometidas |
| k 18 | 4 | Ancla de expansión ½” | ||
| k 20 | 1 | 251381 | ET420 | Soporte para anclaje de acometida (1) |
| o 70 | 2 | 330606 | ET-113 | Metros de cable de cobre trenzado para derivaciones 3x2+1x4 AWG |
| s 141 | 4 | ET-306 | Conector de tornillo con chaqueta aislante, tipo 2 |
(1) Dependiendo del número de acometidas se instalará percha porta aislador de un puesto
NOTA:
- Para acometidas subterráneas se instalarán ductos de acuerdo a la carga
DATOS ADICIONALES
Revisión #
1
Fecha de entrada en vigencia
Actividad de los usuarios
Para hacer comentarios debe iniciar sesión o registrarse aquí