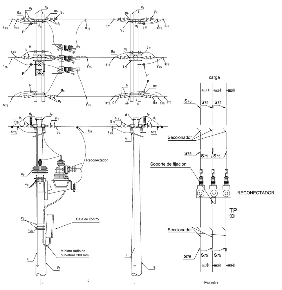
LA503 Línea 13,2 –11,4 kV montaje de reconectador con transformador de potencial
- Contenido

LISTA DE MATERIALES
| SÍMB. | CANT. | CÓDIGO | ESP. TÉCNICA | DESCRIPCIÓN |
| a 1 | 24 | 300013 | GSCC010 | Aislador Suspensión Compuesto 24kV |
| c 4 | 4 | 251506 | ET419 | Cruceta metálica de 2,5 m |
| d 1 | 8 | 240083 | ET405 | Diagonal metálica en varilla tipo 1 |
| g 0 | 12 | 251378 | ET350 | Grapa terminal tipo recto, para cables entre 6 AWG -3/0 AWG |
| M | 6 | 140995 | E-MT-006 | Desconectador cuchillo monofásico 400 A – 15 kV |
| m 7 | 6 | 251362 | ET454 | Tuerca de ojo alargado 5/8" |
| n 5 | 6 | 201013 | ET461 | Perno de ojo tipo 5 (5/8" x 545 mm ) |
| P | 6 | 170892 | GSCC016 | Descargador de sobretensión óxido metálico 12 kV , 10 kA (Ver notas) |
| p 6 | 2 | 230966 | GSS002 | Poste de concreto de 12 m 1 050 kgf (1) |
| TP | 1 | Transformador de Potencial 13,2/Raíz cuadrada de 3 kV – 120 V (ver notas) | ||
| R 2 | 1 | 141002 | E-MT-004 | Reconectador ( 13,2 / 11,4 kV ) (ver notas) |
| s 26 | 5 | 200012 | ET304 | Conector tipo tornillo para puesta a tierra |
| s 75 | 9 | 274320 | ET356 | Conector tipo cuña 4/0 – 2/0 AWG |
| t 10 | 8 | 251364 | ET457 | Tornillo de acero galvanizado 5/8" x 5" |
| t 11 | 2 | 274302 | ET457 | Tornillo de acero galvanizado 5/8" x 8" (2) |
| t 2 | 4 | 251375 | ET455 | Espárrago de 16 x 508 mm (5/8" x 20" ) |
| u | 2 | 200290 | ET492 | Accesorios para puesta a tierra |
| z 9 | 6 | 274300 | ET431 | Abrazadera de una salida tipo 4 |
ALTERNATIVAS:
(1) Poste Metálico, GSS003, Fibra de vidrio GSS00412 de 12 m para zonas de difícil acceso. El poste que aparece en la lista es una referencia, consulte la norma LA 010-3 para su utilización
(2) Abrazadera de dos salidas z 13 y dos tornillos de carruaje t 5
NOTAS:
- Todos los terminales a tierra (Reconectador y tablero de control) deben ser conectados y aterrizados a un mismo punto
- Los descargadores de sobretensiones para líneas de 11,4 kV y 13.2 kV serán de óxido metálico 12 kV , 10 kA.
- Montaje para reconectador marca Whipp & Bourne, ref: GRV 15/12
- Para 11,4 kV el TP es 11,4/Raíz cuadrada de 3 kV – 120 V
- La distancia “d” ,separación entre postes, debe ser lo más cercana para tener seguridad y control sobre el área de trabajo.

LISTA DE MATERIALES
| SÍMB. | CANT. | CÓDIGO SIMS | ESP. TÉCNICA | DESCRIPCIÓN |
| a 1 | 24 | 300013 | GSCC010 | Aislador Suspensión Compuesto 24kV |
| c 4 | 4 | 251506 | ET419 | Cruceta metálica 2,5 m |
| d 1 | 8 | 240083 | ET405 | Diagonal metálica en varilla tipo 1 |
| g 0 | 12 | 251378 | ET350 | Grapa terminal tipo recto, para cables entre 6 AWG -3/0 AWG |
| M | 6 | 140995 | E-MT-006 | Desconectador cuchillo monofásico 400 A – 15 kV |
| m 7 | 6 | 251362 | ET454 | Tuerca de ojo alargado 5/8" |
| n 5 | 6 | 201013 | ET461 | Perno de ojo tipo 5 (5/8" x 545 mm ) |
| P | 6 | 170892 | GSCC016 | Descargador de sobretensión óxido metálico 12 kV , 10 kA (Ver notas) |
| p 6 | 2 | 230966 | GSS002 | Poste de concreto de 12 m , 1 050 kg (1) |
| TP | 1 | ET923 | Transformador de Potencial 13,2/Raíz cuadrada de 3 kV – 120 V (ver notas) | |
| R 2 | 1 | 141002 | E-MT-004 | Reconectador ( 13,2 / 11,4 kV ) (ver notas) |
| s 26 | 5 | 200012 | ET304 | Conector tipo tornillo para puesta a tierra |
| s 75 | 9 | 274320 | ET356 | Conector tipo cuña 4/0 AWG – 2/0 AWG |
| t 10 | 8 | 251364 | ET457 | Tornillo de acero galvanizado 5/8" x 5" |
| t 11 | 2 | 274302 | ET457 | Tornillo de acero galvanizado 5/8" x 8" (2) |
| t 2 | 4 | 251375 | ET455 | Espárrago de 16 x 508 mm (5/8" x 20" ) |
| u | 2 | 200290 | ET492 | Accesorios para puesta a tierra |
| z 9 | 6 | 274300 | ET-431 | Abrazadera de una salida tipo 4 |
ALTERNATIVAS:
(1) Poste Metálico, GSS003, Fibra de vidrio GSS00412 de 12 m para zonas de difícil acceso. El poste que aparece en la lista es una referencia, consulte la norma LA 010-3 para su utilización
(2) Abrazadera de dos salidas z 13 y dos tornillos de carruaje t 5
NOTAS:
- Todos los terminales a tierra (Reconectador y tablero de control) deben ser conectados y aterrizados a un mismo punto
- Los descargadores de sobretensiones para líneas de 11,4 kV y 13.2 kV serán de óxido metálico 12 kV , 10 kA.
- Montaje para reconectador marca JOSLYN, ref: TRIMOD 300V 315-12,5
- Para 11,4 kV el TP es 11,4/Raíz cuadrada de 3 kV – 120 V
- La distancia “d”, separación entre postes, debe ser lo más cercana para tener seguridad y control sobre el área de trabajo.

LISTA DE MATERIALES
| SÍMB. | CANT. | CÓDIGO SIE | ESP. TÉCNICA | DESCRIPCIÓN |
| a 1 | 24 | 300013 | GSCC010 | Aislador Suspensión Compuesto 24kV |
| c 4 | 4 | 230970 | ET419 | Cruceta metálica 2,5 m |
| d 1 | 8 | 240083 | ET405 | Diagonal metálica en varilla tipo 1 |
| g 0 | 12 | 251378 | ET350 | Grapa terminal tipo recto, para cables entre 6 AWG -3/0 AWG |
| M | 6 | 140995 | E-MT-006 | Desconectador cuchillo monofásico 400 A – 15 kV |
| m 7 | 6 | 251362 | ET454 | Tuerca de ojo alargado 5/8" |
| n 5 | 6 | 201013 | ET461 | Perno de ojo tipo 5 (5/8" x 545 mm ) |
| P | 6 | 170892 | GSCC016 | Descargador de sobretensión óxido metálico 12 kV , 10 kA (Ver notas) |
| p 6 | 2 | 230966 | GSS002 | Poste de concreto de 12 m , 1 050 kg (1) |
| TP | 1 | ET923 | Transformador de Potencial 13,2 kV – 120 V (ver notas) | |
| R 2 | 1 | 141002 | E-MT-004 | Reconectador ( 13,2 / 11,4 kV ) (ver notas) |
| s 26 | 5 | 200012 | ET304 | Conector tipo tornillo para puesta a tierra |
| s 75 | 9 | 274320 | ET356 | Conector tipo cuña 4/0 AWG – 2/0 AWG |
| t 10 | 8 | 251364 | ET457 | Tornillo de acero galvanizado 5/8" x 5" |
| t 11 | 2 | 274302 | ET457 | Tornillo de acero galvanizado 5/8" x 8" (2) |
| t 2 | 4 | 251375 | ET455 | Espárrago de 16 x 508 mm (5/8" x 20" ) |
| u | 2 | 200290 | ET492 | Accesorios para puesta a tierra |
| z 9 | 6 | 274300 | ET431 | Abrazadera de una salida tipo 4 |
ALTERNATIVAS:
(1) Poste Metálico, GSS003, Fibra de vidrio GSS00412 de 12 m para zonas de difícil acceso. El poste que aparece en la lista es una referencia, consulte la norma LA 010-3 para su utilización
(2) Abrazadera de dos salidas z 13 y dos tornillos de carruaje t 5
NOTAS:
- Todos los terminales de tierra (Reconectador y tablero de control) deben ser conectados y aterrizados a un mismo punto- incluyendo los descargadores y el TP. El valor de puesta a tierra debe ser inferior a 20 Ohmios
- Los descargadores de sobretensiones para líneas de 11,4 kV y 13.2 kV serán de óxido metálico 12 kV, 10 kA.
- Montaje para reconectador marca NU-LEC, ref: U27-ACR-SOLID-15-12-110
- Para 11,4 kV el TP es 11,4 kV – 120 V
- La distancia “d” ,separación entre postes, debe ser lo más cercana para tener seguridad y control sobre el área de trabajo.
DATOS ADICIONALES
Revisión #
3
Fecha de entrada en vigencia
Actividad de los usuarios
Para hacer comentarios debe iniciar sesión o registrarse aquí