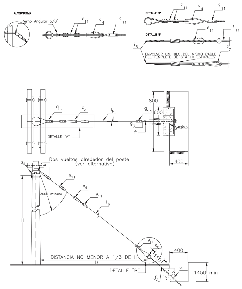
LAR412 Retenida poste a varilla de anclaje terminal o en ángulo
- Contenido
LISTA DE MATERIALES
| SÍMB. | CANT. | CÓDIGO SAP | ESP. TÉCNICA | DESCRIPCIÓN |
| a 4 | 1 | 6762217 | ET-255 | Aislador tipo tensor ANSI 54-4 (1) |
| f 1 | 1 | 6762182 | ET464 | Varilla de anclaje |
| g 11 | 4 | ET467 | Grapa prensadora de tres tornillos | |
| g 8 | 1 | 6762241 | ET466 | Guardacabo tipo 2 |
| j 6 | 20 | 6762124 | ET123 | Metros de cable de acero galvanizado de 3/8” |
| v 1 | 1 | 6764024 6762461 | Vigueta de anclaje para templete | |
| z 2 | 1 | 6762501 | ET433 | Abrazadera sin salida tipo 2 |
(1) El aislador se debe seleccionar de acuerdo al nivel de tensión del circuito así:
Hasta 600 V: ANSI 54-1
Hasta 13,2 kV: ANSI 54-2
Hasta 34,5 kV: ANSI 54-4
DATOS ADICIONALES
Revisión #
1
Fecha de entrada en vigencia
Actividad de los usuarios
Para hacer comentarios debe iniciar sesión o registrarse aquí