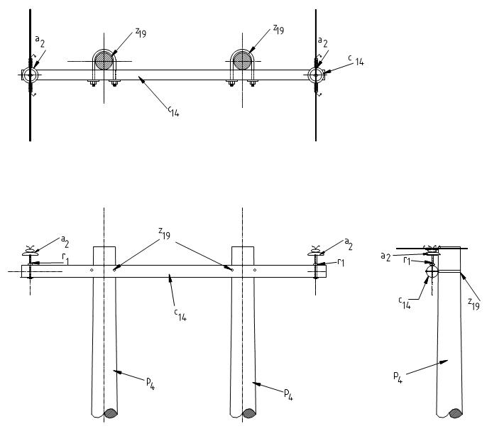
LAR298 Línea rural 13,2 – 11, 4 kV estructura de alineamiento bifilar en H
- Contenido
LISTA DE MATERIALES
| SÍMB. | CANT. | CÓDIGO SAP | ESP. TÉCNICA | DESCRIPCIÓN |
| a 2 | 2 | 300527 | E-MT-011 | Aislador de suspensión ANSI 55-5 |
| c 14 | 1 | 251508 | ET419 | Cruceta metálica de 4 m |
| p 4 | 2 | 230956 | GSS002 | Poste de concreto de 12 m , 510 kg (1) |
| r 1 | 2 | 201073 | ET414 | Porta aislador pasante para cruceta de madera 11,4 – 13,2 kV |
| z 19 | 2 | 6762174 | ET-436 | Abrazadera en U tipo 1 |
ALTERNATIVA:
(1) Poste de concreto de 12 m , tipo liviano.
NOTA:
- Vano viento máximo 400 m .
DATOS ADICIONALES
Revisión #
1
Fecha de entrada en vigencia
Actividad de los usuarios
Para hacer comentarios debe iniciar sesión o registrarse aquí