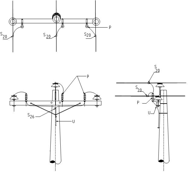
LAR281 Linea rural 34,5 - 11,4 kV montaje de pararrayos en poste adyacentes a equipos
- Contenido
LISTA DE MATERIALES
| SÍMB. | CANT. | CÓDIGO SAP | ESP.TÉCNICA | DESCRIPCIÓN |
| P | 3 | 6781248 | E-MT-031 | Descargadores de sobretensión de óxido metálico 12 kV 10 kA |
| s 20 | 3 | 6762146 | ET303 | Conector de compresión de ranuras paralelas (1) |
| S 26 | 1 | ET304 | Conector tipo tornillo para puesta a tierra | |
| u | 1 | Accesorios para puesta a tierra (2) |
(1) El conector que aparece en el listado es una referencia, consulte ET303
(2) Para puesta a tierra exterior al poste, los accesorios se especifican en la norma LAR402
DATOS ADICIONALES
Revisión #
3
Fecha de entrada en vigencia
Actividad de los usuarios
Para hacer comentarios debe iniciar sesión o registrarse aquí