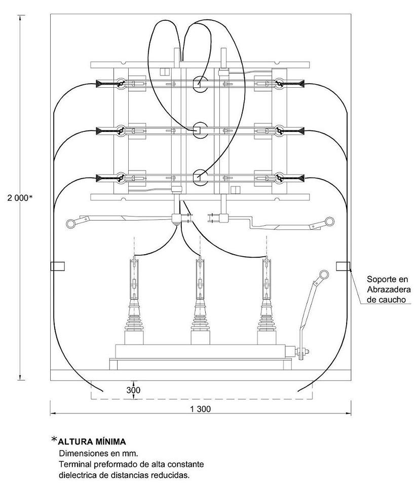
CTS506-2 Celda compacta triplex. Nivel 2. Alternativa N° 2
- Contenido
Nota: esta norma aplica solo para instalaciones existentes, para proyectos nuevos de la red de uso general de Enel Colombia las celdas deben cumplir con la especificación GSM001 MV RMU WITH SWITCH-DISCONNECTOR.
DATOS ADICIONALES
Revisión #
2
Fecha de entrada en vigencia
Actividad de los usuarios
Para hacer comentarios debe iniciar sesión o registrarse aquí