CTS593 Centro de transformación prefabricado superficie compacto para transformadores hasta 630kVA
- Contenido

Figura 1. Vista planta

Figura 2. Vista caras A y B

Figura 3. Vista caras C y D

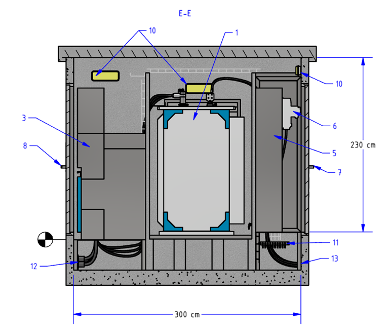
Figura 4. Vista corte E-E.

Figura 5. Vista corte F-F

Figura 6. Vista corte G-G

Figura 7. Vista isométrica

Figura 8. Tablero TLC (ET1003)
ALTERNATIVAS
Alternativa 1: 2L+1T transformador inferior a 225 kVA

Figura 9. Vista planta
Alternativa 2: 3L+1T transformador inferior a 225 kVA

Figura 10. Vista planta
Alternativa 3: 2L+1T transformador de 400 kVA

Figura 10. Vista planta
Alternativa 4: 3L+1T transformador de 400 kVA

Figura 10. Vista planta
LISTA DE MATERIALES
| ITEM | ESP. TÉCNICA | DESCRIPCIÓN |
| 1 | GST001 | Transformador de distribución (2) |
| 2 | NA | División cubiculos |
| 3 | GSM001 GSCM004 | Celdas RMU con seccionador (21) Celdas RMU con interruptor (opcional) (21) |
| 4 | ET-1003 | Tablero TLC y SSAA servicios auxiliares (3) |
| Telecontrol | ||
| GSTR002 | T• UP telecontrol para instalación interior (4) | |
| GSTP001 | • RGDAT | |
| GSCB001 | • Batería sellada pb-ácido VRLA 12vcc 24ah | |
| ET941 | • Antenas de comunicaciones para telemedida y telecontrol | |
| ET-RFP NGSN-2020v3 | • Modem 4G Medición Avanzada UP Módem 4G | |
| Macromedia | ||
| DMIAB000115 | • Med. 3F conexión indirecta 5-20A 120/208V CERS-3 | |
DMIAB000255 | • Concentradores | |
| ET-948 | • Modem para LVM | |
| 5 | GSCL002 | Tablero de protección BT (5) |
| 6 | GSCL003 | Interruptor automático de baja tensión (5) |
| 7 | NA | Puerta de acceso tableros TLC y protección |
| 8 | NA | Puerta de acceso a celdas RMU |
| 9 | NA | Puerta de acceso a transformador (20) |
| 10 | NA | Iluminación y iluminación de emergencia (6) |
| 11 | NA | Puesta a tierra interna |
| 12 | NA | Ingreso cables de Media Tensión |
| 13 | NA | Salida Cables de Baja tensión |
NOTAS:
- Se debe instalar DPS tipo codo en celda de entrada conectado al terminal tipo codo de alimentación. Se podrán evaluar otras opciones para proyectos de terceros siempre y cuando cumpla con la reglamentación vigente.
- El transformador debe tener una capacidad igual o menor a 630 kVA y tener aislamiento en aceite con alto punto de ignición. Los bujes MT del transformador deben ser tipo inserto con el uso de conectores tipo codo para conexión del cable MT. Los bujes de BT deben ser también aislados. El transformador debe ser montado en riel de desplazamiento con dispositivo de frenado.
- El tablero de TLC y SSAA contiene los siguientes equipos:
- Concentrador, medidor y Modem de macro medida
- UP, Fuente, batería y modem de UP
Tablero de servicios Auxiliares
El tablero de SSAA alimentara el circuito de iluminación, UP, macro medida y toma auxiliar La UP (Unidad periférica) se utiliza para tele controlar hasta 8 equipos. Ver figura No 8.
- La UP (Unidad periférica) se utiliza para efectuar el telecontrol hasta 8 equipos.
- La cantidad de tableros de protección e interruptores depende de la potencia del transformador.
- El sistema de iluminación interior debe cumplir con lo indicado en el RETILAP. En todo caso no debe ser menor de 150 luxes y se debe contemplar iluminación de emergencia
- La envolvente permite la instalación de celdas de hasta 3CBL+1T ó 3L+1T (CBL: Interruptor, L: seccionador, T: Protección fusibles). El espacio y orden de las celdas puede cambiar de acuerdo con el tamaño y fabricación de las celdas seleccionadas, para terceros se puede usar otra configuración según su proyecto.
- El cálculo de las compuertas de ventilación debe estar de acuerdo con NTC 2050 y/o RETIE.
- Las dimensiones de la profundidad de la excavación y cimentación de la obra civil son definidas en la fase de ingeniería de detalle según la profundidad de los ductos y tipo de suelo.
- El edificio prefabricado debe tener foso colector de recogida de aceite con capacidad de almacenar la totalidad del aceite del transformador.
- Se deben instalar ductos y pasacables IP67 de 6 pulgadas para el ingreso y salida de cables de media tensión y las salidas de baja tensión. La cantidad de ductos se establece acorde con el número de salidas/entradas del Centro de transformación. En media tensión es según la cantidad de celdas (CBL o L) más una reserva. La cantidad de salidas en baja tensión es de mínimo 2 ductos. Se tendrá también en cuenta el número de cables que permita albergar el pasacables IP67.
- Todos los equipos deben estar conectados a tierra y en cumplimiento con la norma IEC-62271-200. La malla de puesta a tierra debe estar construida por una malla o anillo perimetral con cable desnudo de cobre con calibre igual o superior al No. 2/0 AWG, se deben utilizar conectores que cumplan la Norma IEEE-837 o en su defecto se utilizará soldadura exotérmica. A la malla de tierra se deben instalar varillas de puesta a tierra de 2,40 m x 5/8” (16 mm), distanciadas entre sí mínimo dos veces la longitud de la varilla. El número de varillas de la malla dependerá de la resistividad del terreno y de la resistencia de la malla a tierra. La resistencia de la malla de puesta a tierra de la subestación debe ser menor o igual a diez ohmios (10 Ohmios) para sistemas de Media Tensión. Se debe garantizar las tensiones de paso, contacto y transferidas máximas permitidas. El sistema de tierra unificado al interior de la cabina debe estar interconectado por medio de una platina o barra que conecte la cabina con la malla de puesta a tierra. Las platinas deben tener la facilidad de conectar con terminal tipo pala del conductor de SPT de la malla externa.
- El sistema de telecontrol incluye antena; como alternativa se permite el uso de cable de fibra óptica para minimizar el hurto
- En sitios de alto vandalismo se recomienda el uso de envolvente subterránea CTS594.
- Las cotas dimensionales de ancho y largo del prefabricado son internas, lo que quiere decir que no se contempla el espesor de la envolvente.
- Las cerraduras de las puertas deben ser de alta seguridad y su diseño ser aprobado previamente por ENEL Colombia. Se requiere mínimo de dos cerraduras para generar redundancia en la seguridad, permitiéndose cerradura antipánico y cerrojo de seguridad adicional.
- Por reglamentación la ubicación de los equipos debe cumplir con los espacios de trabajo acorde con NTC2050 y/o RETIE
- La envolvente y todos los equipamientos instalados debe cumplir con la norma de sismo resistencia en Colombia NSR-10
- La puerta de ingreso al transformador no corresponde a una puerta cortafuego, debe ser una puerta de seguridad que le garantice integridad física a la puerta y a su vez que proteja el ingreso contra vandalismo. Así mismo todas las puertas de la envolvente deben ser de seguridad.
- La profundidad máxima de las celdas de línea y de protección fusible es de 90 cm incluyendo el espacio libre que se debe dejar entre la pared y la celda.
- El cable de protección al transformador debe ser acorde al kit GSCC011 Medium voltaje pre-assembled
- El techo debe contemplar un mecanismo de aposamiento de agua validado previamente por ENEL
- El techo no debe permitir el efecto jaula de Faraday con el fin que las antenas de comunicaciones funcionen correctamente.
- Se permite la alternativa de medida en MT para proyectos de terceros
- Para proyectos de terceros se permiten potencias menores al rango de 150 kVA.
- Este tipo de montajes puede ser aplicable para casos de potencias mayores a 630 kVA, en caso tal se deberá validar en las ingenierías el tamaño del equipo para el dimensionamiento final de la subestación.
- Para los casos que los activos formen parte del operador de red todos los equipamientos deben cumplir con las especificaciones del grupo ENEL-Enel Colombia.
DATOS ADICIONALES
Revisión #
4
Fecha de entrada en vigencia
Actividad de los usuarios
Para hacer comentarios debe iniciar sesión o registrarse aquí