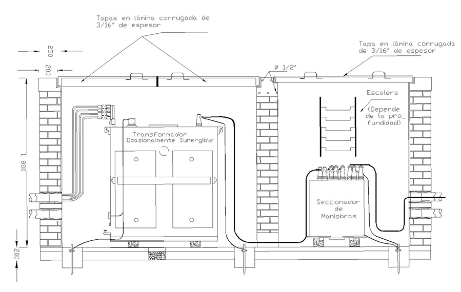
CTS535-2 Centro de transformación subterraneo. Caja de inspección, corte
- Contenido

NOTAS:
- Dimensión en milímetros y pulgadas.
- El seccionador de maniobras debe quedar lo mas superficial posible para que se opere con el personal ubicado en el andén. Deberá cumplir con la especificación técnica ET-512
- El tamaño de la caja de inspección del transformador será acorde al tamaño del transformador, la cota indicada es una referencia.
- Para el seccionador de maniobras se debe usar la caja de inspección indicada en la CS290 en sus dos alternativas.
- Ver CS290-5 Escalera de gato recubierta para ingreso a cajas de inspección. No se admite escalera de gato sin recubrimiento como se especifica en CS290-5.
DATOS ADICIONALES
Revisión #
3
Fecha de entrada en vigencia
Actividad de los usuarios
Para hacer comentarios debe iniciar sesión o registrarse aquí