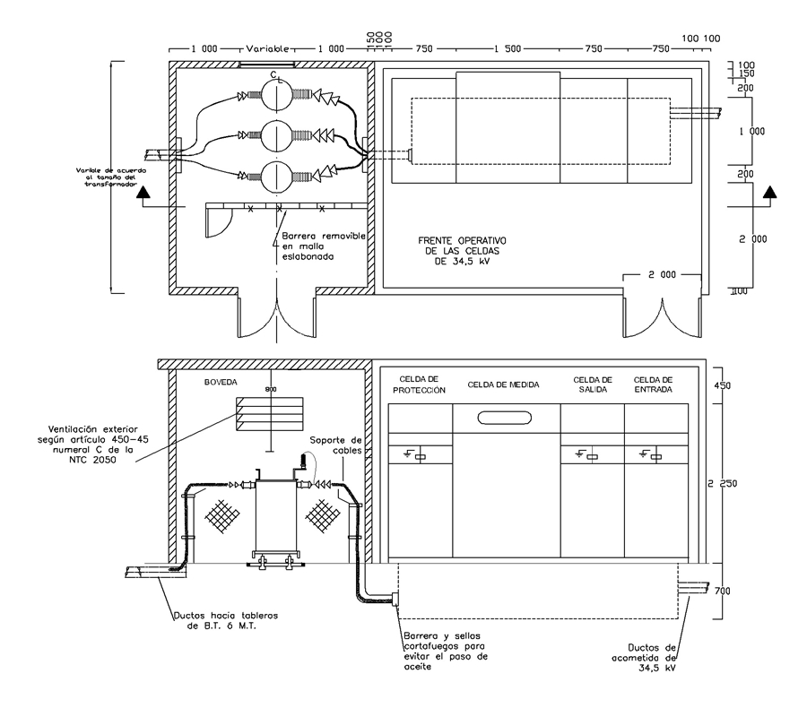
CTS568 Centro de transformación industrial 34,5kV disposición interior con celdas SF6 y transformador seco
- Contenido
Notas:
1- La configuración de las celdas de maniobra y protección está en función del circuito (entrada/salida o derivación)
2- Las dimensiones dependen del tamaño de los equipos
3. Para los diseños, uso e instalación en la infraestructura eléctrica de uso general de ENEL-Enel Colombia sólo se permite la utilización de Transformadores en aceite.
DATOS ADICIONALES
Revisión #
CTS 568
Fecha de entrada en vigencia
Actividad de los usuarios
Para hacer comentarios debe iniciar sesión o registrarse aquí