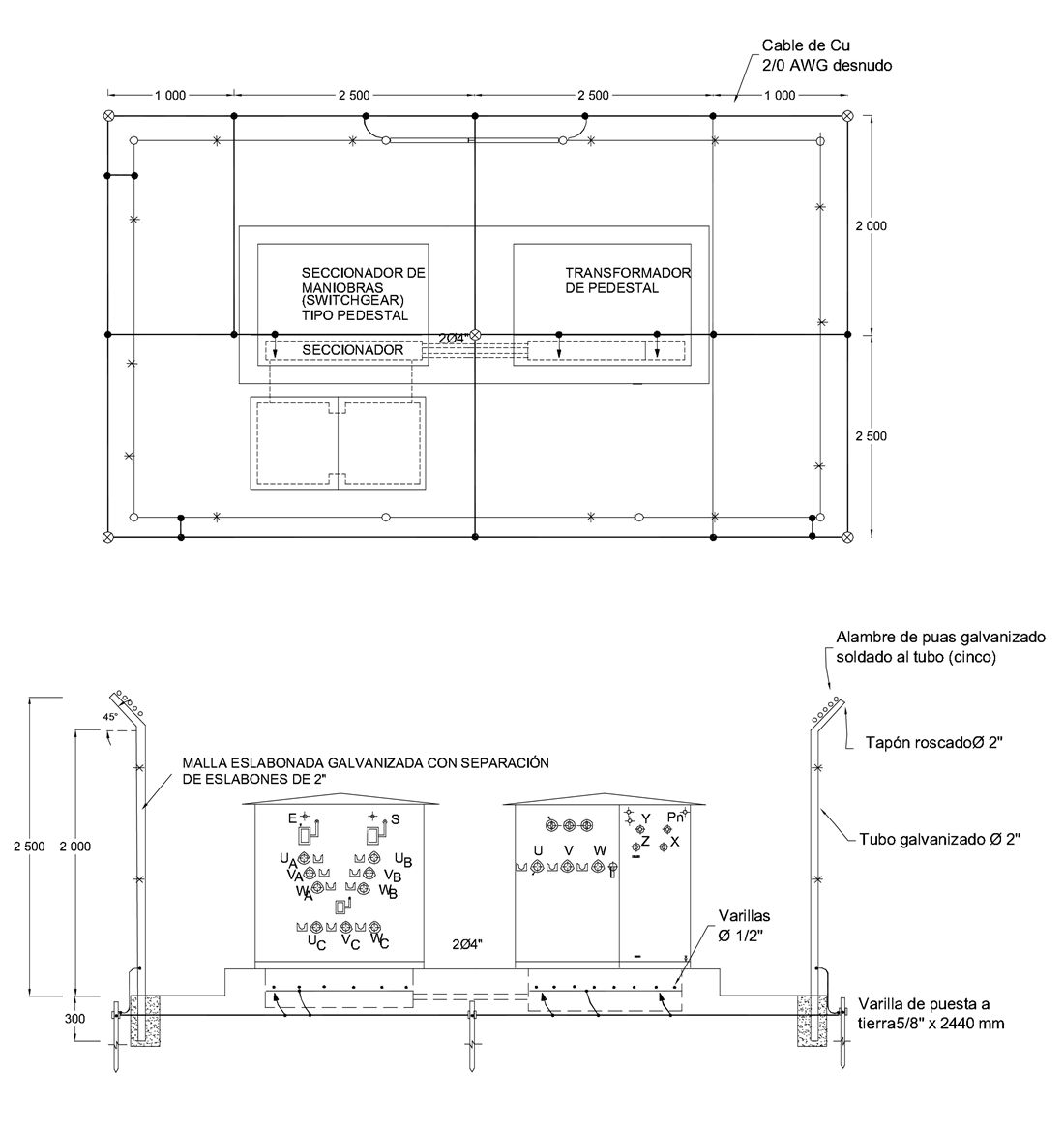
CTS523-2 Centros de transformación de pedestal. Malla para puesta a tierra
- Contenido
El diseño de malla de puesta a tierra propuesto en esta norma es indicativo, por tanto, para ser implementado en proyectos, debe verificarse por medio de cálculos, que los valores de resistencia de puesta a tierra aseguren unas tensiones de toque y paso que no sean peligrosas para el ser humano ni para los equipos. Se recomienda utilizar el procedimiento de cálculo indicado en la norma IEEE 80.
NOTAS :
- Los transformadores tipo pedestal únicamente aplican para los casos que el tercero construya su propia infraestructura.
- Para proyectos nuevos de la red de uso general de Enel Colombia no se permiten transformadores tipo pedestal.
DATOS ADICIONALES
Revisión #
3
Fecha de entrada en vigencia
Actividad de los usuarios
Para hacer comentarios debe iniciar sesión o registrarse aquí