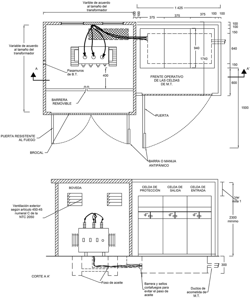
CTS515 Centro de transformación de M.T. Disposición con celdas en SF6 y transformador en aceite. Acceso desde el exterior (Nivel 2)
- Contenido
NOTA:
1. Esta altura depende de lo especificado por el fabricante de las celdas o en su defecto 60 cm según RETIE .
2. Hojas de las puertas no menores a 900 mm y con cerradura antipánico acorde con RETIE .
3. Las puertas deben ser a prueba de fuego según los casos que establece RETIE , en caso contrario implementar celosía.
4. Esta norma aplica solo para instalaciones existentes, para proyectos nuevos de la red de uso general de Enel Colombia las celdas deben cumplir con las especificaciones GSM001 MV RMU WITH SWITCH-DISCONNECTOR y GSCM004 MV RMU.
DATOS ADICIONALES
Revisión #
5
Fecha de entrada en vigencia
Actividad de los usuarios
Para hacer comentarios debe iniciar sesión o registrarse aquí