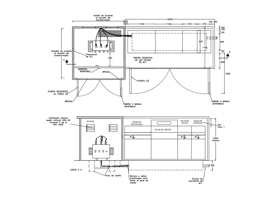
CTS515-1 Centro de transformación de M.T. Celdas en SF6, medida en M.T. y transformador en aceite. Acceso desde el exterior (Nivel 2)
- Contenido
NOTAS:
1. Esta altura depende de lo especificado por el fabricante de las celdas o en su defecto 60 cm según RETIE.
2. Hojas de las puertas no menores a 900 mm y con cerradura antipánico acorde con RETIE .
3. Las puertas deben ser a prueba de fuego según los casos que establece RETIE , en caso contrario implementar celosía.
4. Para proyectos nuevos de la red de uso general de Enel Colombia las celdas deben cumplir con las especificaciones GSM001 MV RMU WITH SWITCH-DISCONNECTOR y GSCM004 MV RMU.
DATOS ADICIONALES
Revisión #
CTS515-1
Fecha de entrada en vigencia
Actividad de los usuarios
Para hacer comentarios debe iniciar sesión o registrarse aquí