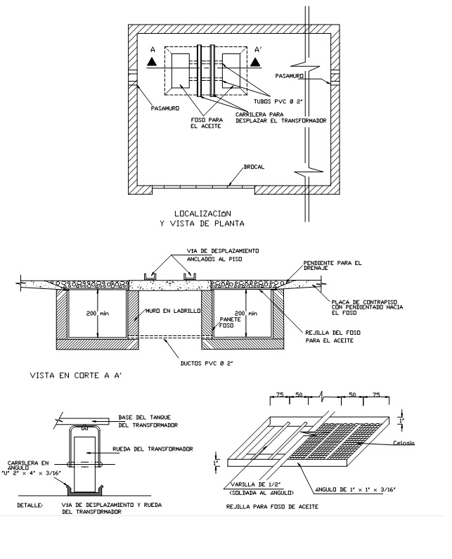
CTS513-1 Trampa y foso para el aceite en locales de centros de transformación (Nivel 2)

  • Contenido

Notas:
  1. Todo transformador con aceite dieléctrico cuya capacidad sea igual o superior a 112,5 kVA deberá tener un foso para el aceite con capacidad de contener el 100 % del volumen total de aceite del transformador a instalar.
  2. La trampa de aceite se compone de una rejilla la cual tiene varillas y celosía para soportar la grava y el peso de algunas personas, permitiendo el paso del aceite que pueda haberse fugado.
  3. La separación entre los fosos de aceite dependen de las dimensiones del transformador y su capacidad.
  4. Las dimensiones de la pendiente para el drenaje debe cumplir el largo y el ancho del transformador incluyendo los radiadores (ver línea de trazos en la vista de la planta).
  5. El brocal puede instalarse debajo o detrás de la puerta.
  6. Dimensiones en mm y pulgadas.
DATOS ADICIONALES
Revisión #

2

Fecha de entrada en vigencia

HERRAMIENTAS
RELACIONADAS

Actividad de los usuarios

Estado del comentario