CTS511-4 Centros de transformación capsulados. Celdas de medida y protección - Transformador en aceite con acceso exterior al edificio o en local separado (nivel 2)

  • Contenido



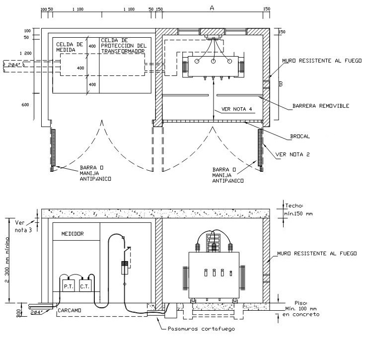
NOTA:
  1. Dimensiones en milímetros.
  2. La puerta debe ser a prueba de fuego acorde con los casos que establece RETIE, en caso contrario instalar celosía. La figura de la puerta es representativa y ninguna de sus alas puede ser menor a 900 mm según RETIE.
  3. Esta altura depende de lo especificado por el fabricante de las celdas o en su defecto 60 cm según RETIE.
  4. De acuerdo a RETIE (Tabla 13.7. Distancias mínimas para trabajos en o cerca de partes energizadas en corriente alterna) la distancia mínima de bornes de baja tensión del transformador a la puerta del cuarto debe ser de 1 m. Considerando lo indicado en esta misma tabla la barrera removible debe ubicarse a una distancia adecuada para evitar el contacto involuntario.
DATOS ADICIONALES
Revisión #

6

Fecha de entrada en vigencia

HERRAMIENTAS
RELACIONADAS

Actividad de los usuarios

Estado del comentario