CTS511-1 Centro de transformación capsulado. Transformador en aceite - Acceso frontal desde el exterior del edificio o en local separado (Nivel 2)

  • Contenido




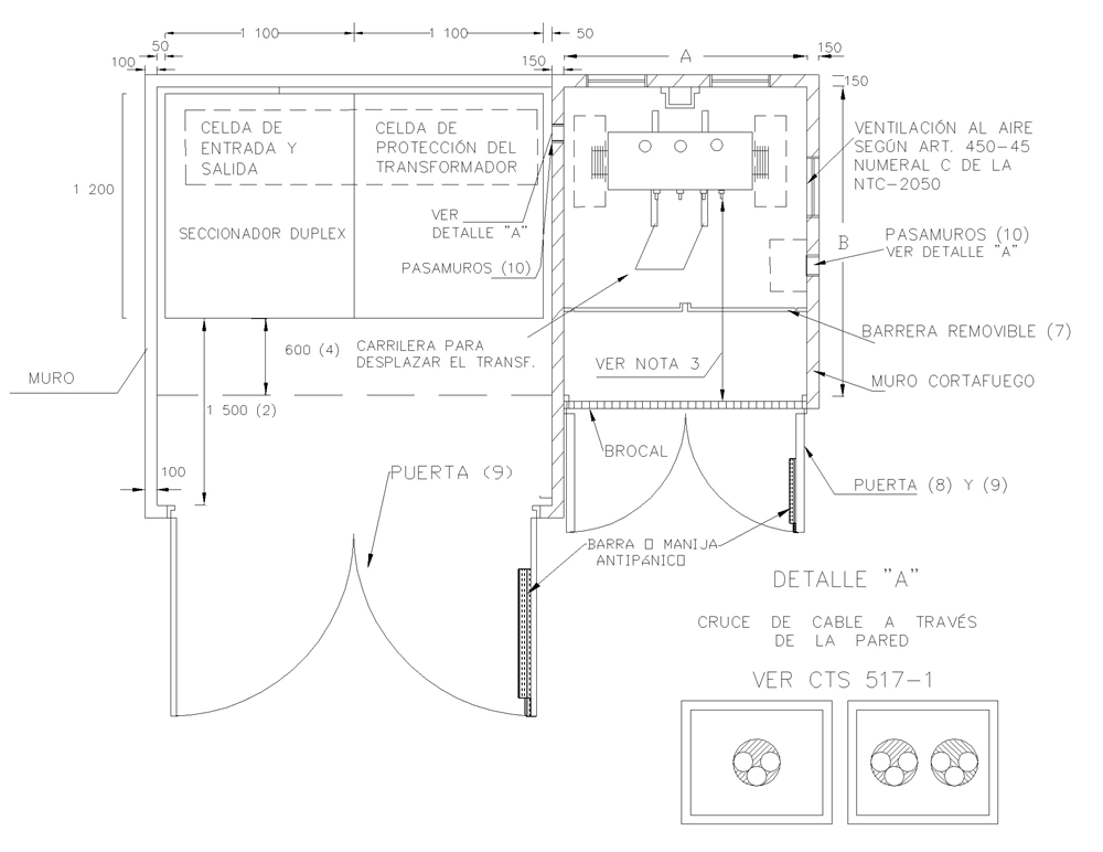
NOTAS:
1- Dimensiones en milímetros.
2- Frente a las celdas de maniobra y protección se debe dejar un espacio completamente libre para circulación y maniobra mínimo 1 500 mm.
3- De acuerdo a RETIE (Tabla 13.7. Distancias mínimas para trabajos en o cerca de partes energizadas en corriente alterna) la distancia mínima de bornes de baja tensión del transformador a la puerta del cuarto debe ser de 1 m. Considerando lo indicado en esta misma tabla la barrera removible debe ubicarse a una distancia adecuada para evitar el contacto involuntario.
4- Se permite reducir la distancia entre celdas y puerta a 600 mm siempre que se garantice el espacio para maniobras más allá de la puerta y el frente de las celdas queden completamente libre.
5- Altura mínima del local 2200 mm.
6- En caso de tener equipo de protección en aceite los muros deben ser cortafuego.
7- Reja plegable, o barrera que impida tocar partes energizadas del transformador.
8- La puerta debe ser a prueba de fuego acorde con los casos que establece RETIE. En caso contrario implementar puerta en celosía.
9- La figura de la puerta es representativa, el ala no debe ser menor a 900 mm y se debe instalar cerradura antipánico según RETIE.
Para las entradas y salidas de cables al exterior de la bóveda se utilizan pasamuros a prueba de fuego.


Tabla 1. Descripción dimensional
RANGOS DE CAPACIDAD DIMENSIONES (mm)
KVA A B C
< ó = 75 2100 2550 2200
150 2300 2550 2200
225-500 2900 3250 2350
630-1000 3600 3350 2600


Diagrama 3D

DATOS ADICIONALES
Revisión #

CTS511-1

Fecha de entrada en vigencia

HERRAMIENTAS
RELACIONADAS

Actividad de los usuarios

Estado del comentario