Pasar al contenido principal
Navegación principal
HOME
NORMAS TÉCNICAS
ESPECIFICACIONES TÉCNICAS LOCALES
ESPECIFICACIONES TÉCNICAS CORPORATIVAS
CONTACTO
Menú de cuenta de usuario
Iniciar sesión
Sobrescribir enlaces de ayuda a la navegación
Inicio
Normas Técnicas
CENTROS DE TRANSFORMACIÓN PARA REDES AEREAS URBANOS Y RURALES
Centros De Transformación Rurales De 34,5 KV. Obra Civil
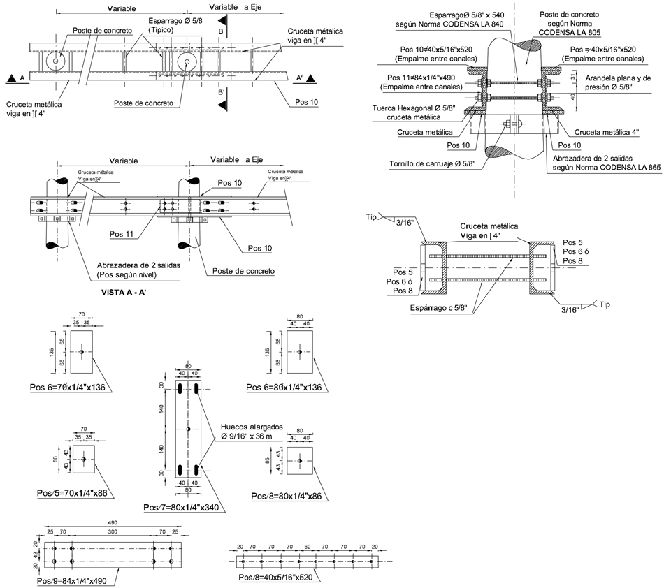
CTR641 Centro De Transformación Rural 34,5 KV. Detalles De Vigas Y Crucetas Metálicas
CTR641 Centro de transformación rural 34,5 kV. Detalles de vigas y crucetas metálicas
Contenido
DATOS ADICIONALES
Revisión #
0
Fecha de entrada en vigencia
03 Junio 1999
HERRAMIENTAS
Descargar archivo
RELACIONADAS
Actividad de los usuarios
Para hacer comentarios debe
iniciar sesión
o registrarse
aquí
Estado del comentario
X
×
Actividad de los usuarios
Para hacer comentarios debe iniciar sesión o registrarse aquí