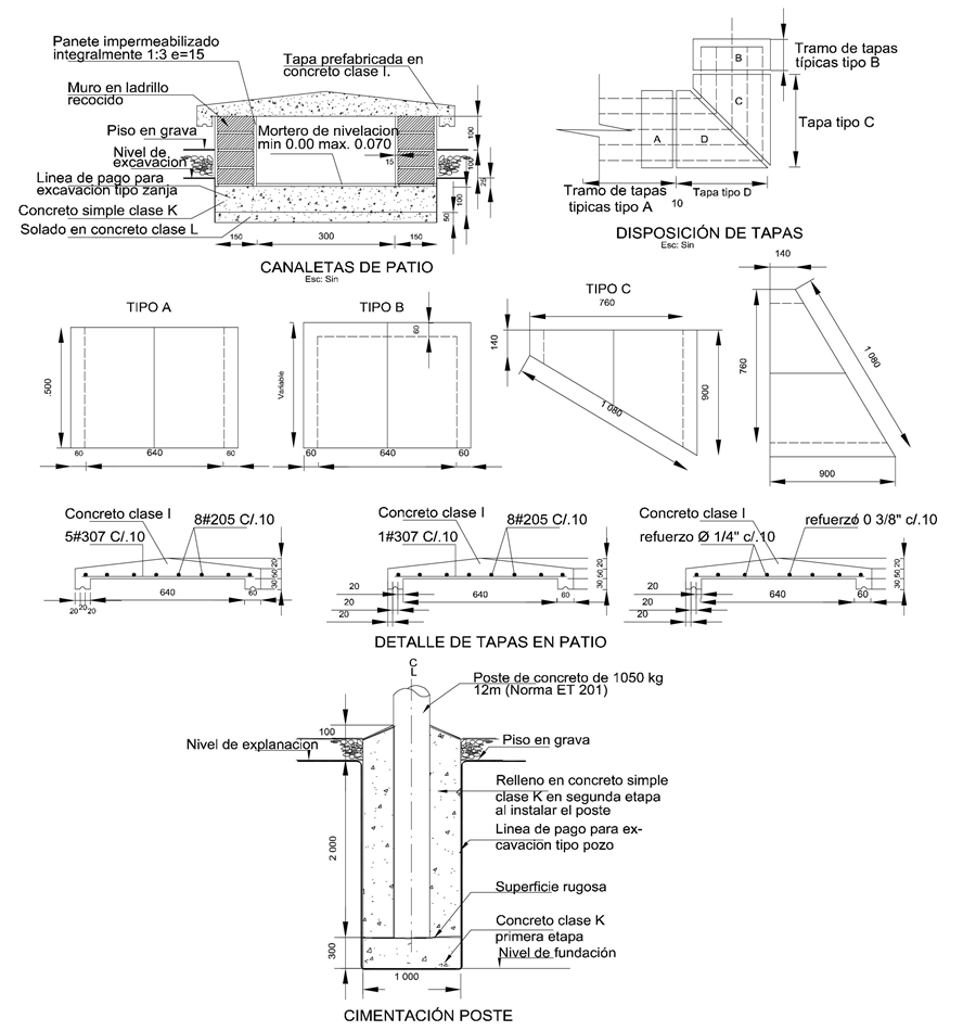
CTR634 Centro de transformación rural 34,5 kV. Obra civil. Canaletas y cimentaciones. Patio de conexiones
- Contenido
ESPECIFICACIONES
1- Las varillas corrugadas deben cumplir con la especificación A-615 y las varillas lisas deben cumplir con la especificación A-37.
2- Los concretos clase (H-I), K y L deben tener una resistencia a la compresión a los 28 días de 3 000, 2 500 y 1 400 P.S.I. respectivamente.
NOTAS
1- Dimensiones en mm y pulgadas.
2- Las excavaciones son en cajón tipo zanja y/o tipo pozo.
DATOS ADICIONALES
Revisión #
0
Fecha de entrada en vigencia
Actividad de los usuarios
Para hacer comentarios debe iniciar sesión o registrarse aquí