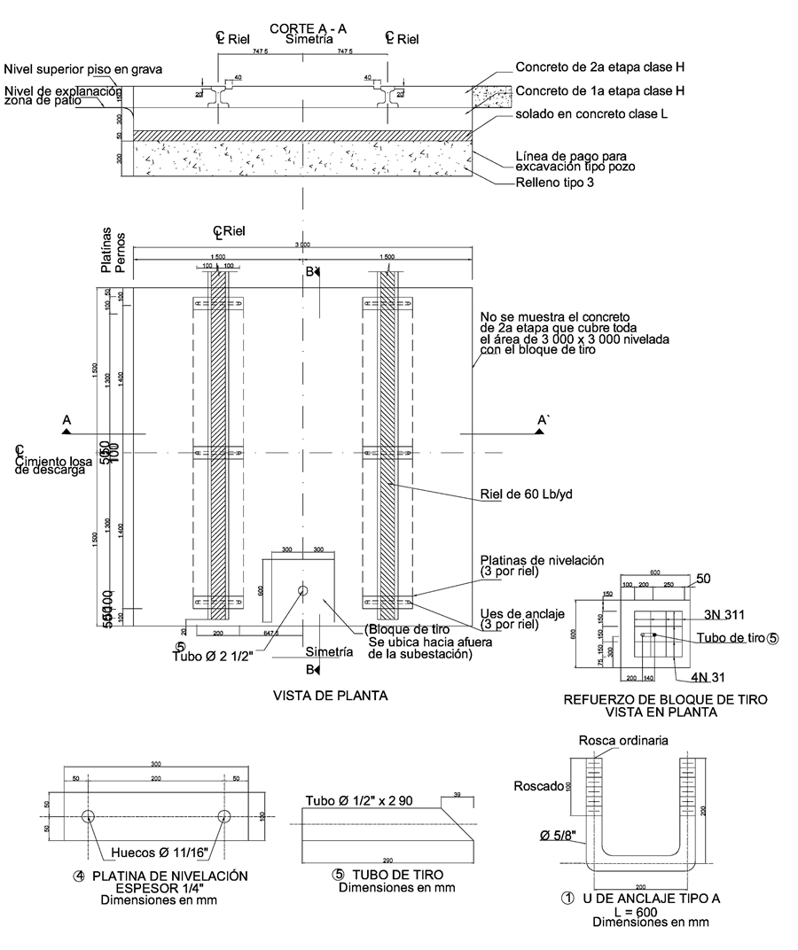
CTR630 Centro de transformación rural 34,5 Kv. Obra civil. Cimiento para descarga del transformador de potencia
- Contenido
NOTAS
1- El concreto se colocará sobre el relleno tipo 3 el cuál se compactará al 95% del próctor modificado, del espesor que determine el interventor de acuerdo a las condiciones y tipo del terreno.
2- Dimensiones en mm a menos que se indique lo contrario.
3- Los rieles serán suministrados por la Empresa, pero serán colocados, y recortados, por el contratista de acuerdo con el interventor de tal manera que se logre el menor desperdicio.
4- Todos los accesorios se clasifican como acero misceláneo no galvanizado para el pago.
5- El interventor debe verificar la capacidad portante del terreno y definir el espesor del relleno de mejoramiento antes de la construcción del cimiento de acuerdo con las condiciones del terreno.
6- Las cantidades que se presentan son para un cimiento
DATOS ADICIONALES
Revisión #
1
Fecha de entrada en vigencia
Actividad de los usuarios
Para hacer comentarios debe iniciar sesión o registrarse aquí