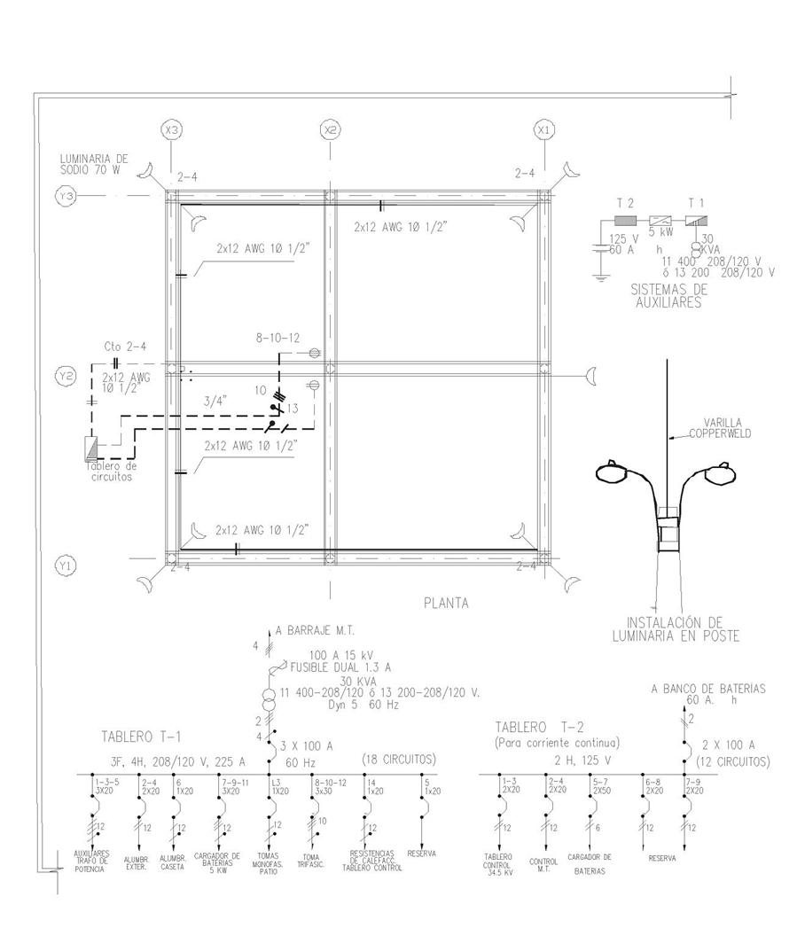
CTR626 Centro de transformación rural 34,5 kV de 2,5 a 10 MVA con reconectadores. Servicios uxiliares y alumbrado de patio
- Contenido
LISTA DE MATERIALES
| SÍMB. | CANT. | CÓDIGO SAP | ESP. TÉCNICA | DESCRIPCIÓN |
| b 1 | 9 | ET 832 | Soporte para luminaria horizontal f3/4”x2 m en vías secundarias | |
| c 55 | 2 | Conduleta en X tipo intemperie f ¾” | ||
| c 56 | 4 | Conduleta en T tipo intemperie f ¾” | ||
| F 2 | 1 | Fotocontrol 1 000 W / 1 500 VA 205 / 305 V tipo NC para Luminaria . | ||
| j´ 3 | 20 | 6764362 | ET 450 | Hebilla para cinta de acero inoxidable de 5/8” |
| j 3 | 20 | 6762433 | ET 450 | Metros de cinta de acero inoxidable de 5/8”x 0,03” |
| I 1 | 9 | 6762554 | ET 801 | Luminaria de sodio de 70 W tubular clara |
| o 26 | 6762337 | ET 121 | Metros de cable de cobre No. 2 AWG – 600 V. | |
| o 27 | 6762494 | ET 121 | Metros de cable de cobre No. 4 AWG – 600 V. | |
| o 28 | ET 121 | Metros de cable de cobre No. 6 AWG – 600 V. | ||
| o 36 | ET 116 | Metros de alambre de cobre aislado 10 AWG a 600V | ||
| o 37 | ET 116 | Metros de alambre de cobre aislado 12 AWG a 600 V | ||
| q | 9 | 6762336 | ET 820 | Bombilla de sodio 70 W tubular clara |
| x 9 | 70 | ET 601 | Metros de tubería conduit galvanizada f ¾” | |
| x 62 | 4 | Metros de tubería conduit flexible f ¾” | ||
| z 41 | 1 | Abrazadera sencilla para brazo de luminaria | ||
| z 42 | 4 | Abrazadera doble para brazo de luminaria | ||
| 1 | Tablero de distribución para 18 circuitos, 208 Vac, 225 A. a prueba de humedad y polvo, con puerta y directorio | |||
| 1 | Tablero de distribución para 12 circuitos, 208 Vac, 225 A. a prueba de humedad y polvo, con puerta y directorio | |||
| 4 | ET - 502 | Interruptores automáticos 1 x 20 A | ||
| 5 | ET - 502 | Interruptores automáticos 2 x 20 A | ||
| 1 | ET - 502 | Interruptor automático 2 x 50 A | ||
| 2 | ET - 502 | Interruptores automáticos 3 x 20 A | ||
| 1 | ET - 502 | Interruptor automático 3 x 30 A. | ||
| 1 | ET - 502 | Interruptor automático 3 x 100 A. | ||
| 1 | ET - 502 | Interruptor automático 2 x 100 A (V. dc) | ||
| 1 | ET - 502 | Interruptor automático 2 x 20 A (V. dc) |
Las cantidades del material dependen del proyecto específico.
DATOS ADICIONALES
Revisión #
1
Fecha de entrada en vigencia
Actividad de los usuarios
Para hacer comentarios debe iniciar sesión o registrarse aquí