Pasar al contenido principal
Navegación principal
HOME
NORMAS TÉCNICAS
ESPECIFICACIONES TÉCNICAS LOCALES
ESPECIFICACIONES TÉCNICAS CORPORATIVAS
CONTACTO
Menú de cuenta de usuario
Iniciar sesión
Sobrescribir enlaces de ayuda a la navegación
Inicio
Normas Técnicas
CENTROS DE TRANSFORMACIÓN PARA REDES AEREAS URBANOS Y RURALES
Centros De Transformación Rurales De 34,5 KV De 2,5 A 10 MVA
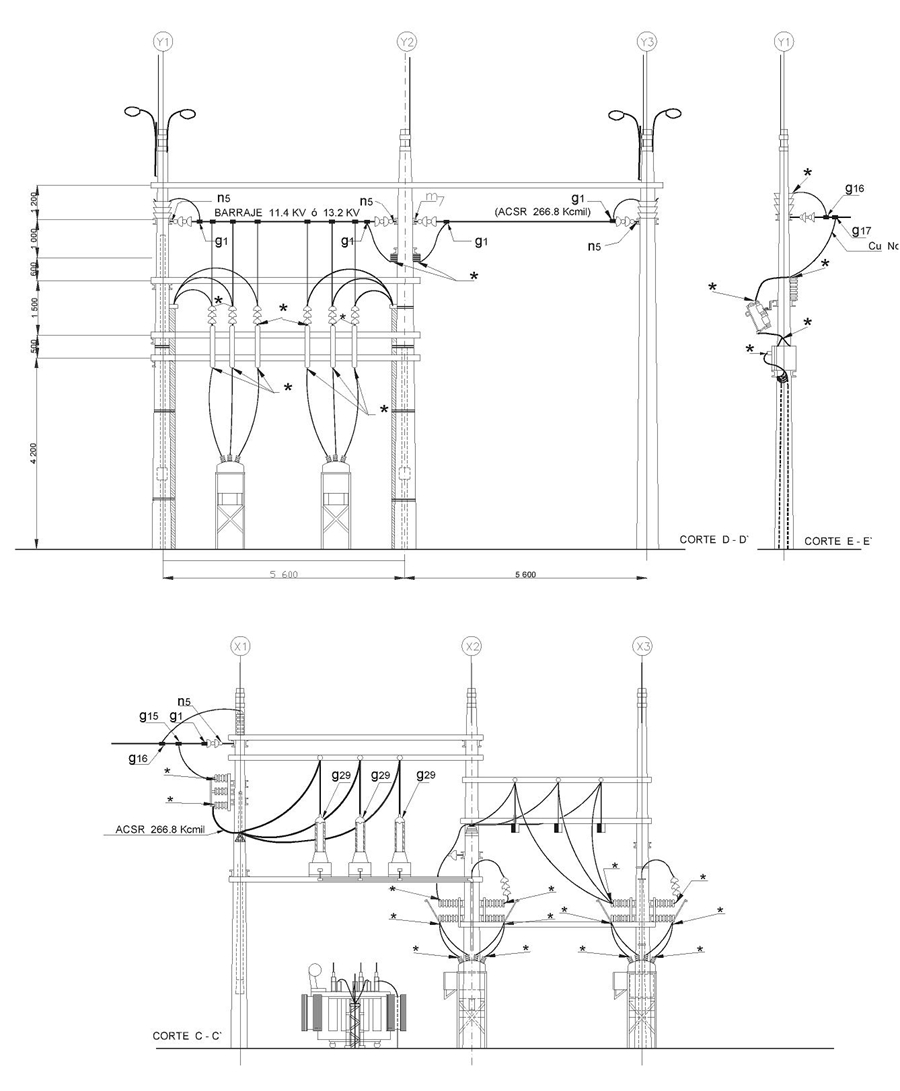
CTR625-1 Centro De Transformación Rural 34, 5 KV De 2,5 A 10 MVA Con Reconectadores. Enlaces Y Conectores. Cortes C-C´, D-D´, E-E´
CTR625-1 Centro de transformación rural 34, 5 kV de 2,5 a 10 MVA con reconectadores. Enlaces y conectores. Cortes C-C´, D-D´, E-E´
Contenido
DATOS ADICIONALES
Revisión #
1
Fecha de entrada en vigencia
22 Septiembre 2009
HERRAMIENTAS
Descargar archivo
RELACIONADAS
Actividad de los usuarios
Para hacer comentarios debe
iniciar sesión
o registrarse
aquí
Estado del comentario
X
×
Actividad de los usuarios
Para hacer comentarios debe iniciar sesión o registrarse aquí