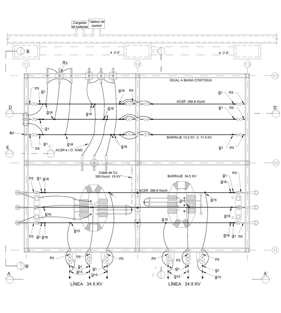
CTR624 Centro de transformación rural 34,5 kV de 2,5 a 10 MVA con reconectadores. Enlaces y conectores. Planta
- Contenido
LISTA DE MATERIALES
| SÍMB. | CANT. | CÓDIGO SAP | ESP. TÉCNICA | DESCRIPCIÓN |
| g 1 | 24 | 6762180 | ET 350 | Grapa terminal tipo recto |
| G 15 | 12 | Conector en T cable - cable de ACSR 266,8 kcmil a 266,8 kcmil | ||
| G 16 | 30 | Conector en T cable - cable de ACSR 266,8 kcmil a 4/0 AWG | ||
| G 17 | 3 | Conector en T cable - cable de ACSR 266,8 kcmil a 4 AWG | ||
| G 19 | 6 | Conector para conexión de ACSR 4/0 AWG a terminales de los PT´s 34,5 kV | ||
| G 21 | 12 | Conector para conexión de ACSR 4/0 AWG a terminales de los CT´s | ||
| G 22 | 12 | Conector para conexión de ACSR 4/0 AWG a terminales del interruptor | ||
| G 23 | 12 | Conector para conexión de ACSR 4/0 AWG a terminales de DPS | ||
| G 24 | 6 | Conector para conexión de ACSR 4/0 AWG a buje de 34,5 kV del transformador de potencia | ||
| G 25 | 6 | Conector a 90º para conexión de buje 11,4 kV a tubo de Cobre Ø 1” IPS del transformador de potencia. | ||
| G 26 | 6 | Conector para soporte de tubo en cobre Ø 1” para instalarse sobre aislador de soporte. | ||
| G 27 | 6 | Conector para derivación a 90º desde tubo de cobre Ø 1” a platina. | ||
| s 52 | 6 | 6762489 | ET 302 | Terminal de compresión tipo pala para cable de cobre 350 MCM 15 kV |
| G 29 | 6 | Conector para conexión de ACSR 4/0 AWG a terminales de los PT’s.- 34.5 Kv | ||
| G 30 | 12 | Conector para conexión de ACSR 266,8 kcmil a terminales del seccionador tripolar. | ||
| m 7 | 3 | 6762209 | ET 454 | Tuerca de ojo alargado 5/8" |
| n 4 | 24 | 6762532 | ET 461 | Perno de ojo tipo 4 (5/8" x 545 mm) |
| s 12 | 12 | 6762171 | ET 302 | Conector terminal de compresión tipo pala 2 huecos, 4/0 AWG |
| * | Conector que viene con el equipo |
DATOS ADICIONALES
Revisión #
1
Fecha de entrada en vigencia
Actividad de los usuarios
Para hacer comentarios debe iniciar sesión o registrarse aquí