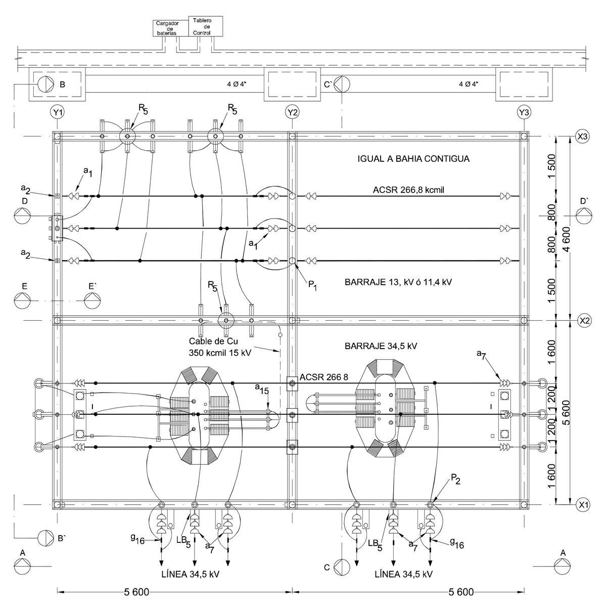
CTR622 Centros de transformación rural 34,5 kV de 2,5 a 10 MVA con reconectadores. Disposición de equipos - Planta
- Contenido

LISTA DE MATERIALES
| SÍMB. | CANT. | CÓDIGO | ESP. TÉCNICA | DESCRIPCIÓN |
| a 1 | 24 | 300013 | GSCC010 | Aislador Suspensión Compuesto 24 kV |
| a 2 | 6 | 300527 | E-MT-011 | Aislador de pin ANSI 55-5 |
| a 7 | 36 | 300011 | GSCC010 | Aislador de suspensión ANSI 52-4 |
| a 8 | 12 | 300520 | E-MT-011 | Aislador de pin ANSI 56-3 |
| a 15 | 6 | E-MT-011 | Aislador line post 15 kV ANSI 57-1 | |
| f 2 | 9 | 201017 | ET-490 | Varilla de puesta a tierra 5/8" x 2,44 m |
| f 3 | 9 | ET-490 | Conector para varilla a tierra 5/8" | |
| IN 1 | 2 | Interruptor de potencia tripolar 34,5 kV, 630 A, BIL 250 kV, Icc 12 kA | ||
| I CC 12 kA | ||||
| j´ 3 | 30 | 780351 | ET-450 | Hebilla de acero inoxidable 5/8” |
| j 3 | 15 | 780182 | ET-450 | Metros de cinta de acero inoxidable 5/8”x 0,03” |
| LB 5 | 2 | Seccionador tripolar 36 kV 250 kV BIL con cuchilla de puesta a tierra | ||
| M | 39 | 140995 | E-MT-006 | Seccionador monopolar 400 A 15 kV tipo cuchilla |
| M 1 | 6 | 140992 | E-MT-006 | Seccionador monopolar 600 A, 38 kV |
| O 0 | 110 | 310413 | GSC003 | Metros de cable ACSR calibre 266,8 kcmil. Partridge. |
| O 1 | 130 | 310414 | GSC003 | Metros de cable ACSR calibre 4/0 AWG. Penguin. |
| O 33 | 8 | ET-121 | Metros de alambre de cobre calibre 4 AWG | |
| O 83 | 60 | E-MT-002 | Metros de cable triplex de cobre 15 kV 300 kcmil | |
| O 84 | E-MT-002 | Metros de cable triplex de cobre 15 kV 4/0 AWG | ||
| P | 6 | 170892 | GSCC016 | DPS - Descargadores de sobretensión de óxido metálico 12 kV 10 kA |
| P 2 | 12 | 170893 | GSCC016 | DPS - Descargadores de sobretensión de óxido metálico 30 kV 10 kA |
| P 6 | 9 | 230966 | GSS002/45 | Poste de concreto de 12 m 1 050 kgf |
| r 1 | 6 | 201012 | ET-413 | Porta aislador pasante para cruceta de madera en 11,4 kV. |
| R 5 | 6 | E-MT-004 | Reconectador 15 kV | |
| r 8 | 12 | 201014 | ET-412 | Porta aislador pasante 34,5 kV |
| S 1 | 3 | 140993 | E-MT-001 | Corta circuito de cañuela 100 A 15 kV |
| T | 1 | GST001 | Transformador de distribución trifásico, 30 kVA, Dyn5 , | |
| T 1 | 2 | Transformador de potencia | ||
| TC 20 | 6 | ET-927 | Transformador de corriente monopolar 15 kV, dos núcleos 400/200 :5 A, uso exterior | |
| TC 3 | 6 | ET-927 | Transformador de corriente monopolar tipo columna 36 kV, 2 núcleos | |
| x 17 | 6 | ET-604 | Boquilla galvanizada 4" | |
| x 37 | 3 | ET-602 | Codo galvanizado 4" x 90 | |
| x 7 | 18 | 6762440 | ET-601 | Metros de tubo galvanizado 4" |
| y 3 | 12 | GSCC005 | Terminal preformado uso exterior 15 kV para cable 4/0 AWG 250 kcmil | |
| y 5 | 6 | 274588 | GSCC005 | Terminal preformado uso exterior 15 kV para cable 300 kcmil |
| 18 | Metros de tubo de cobre Ø 1” IPS standard |
DATOS ADICIONALES
Revisión #
1
Fecha de entrada en vigencia
Actividad de los usuarios
Para hacer comentarios debe iniciar sesión o registrarse aquí