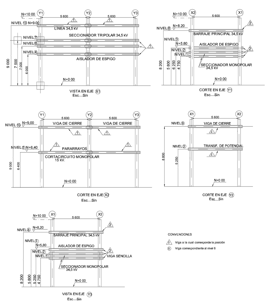
CTR619-1 Centro de tranformación rural 34,5 kV de 2,5 a 10 MVA, con celdas. Crucetas metálicas – Cortes
- Contenido
NOTAS
1- Todas las dimensiones están dadas en mm
2- Los encerrados en triángulo corresponden a las vigas de las crucetas
3- Cada viga llevará abrazadera por un poste y el tipo de ésta será según al nivel a que corresponda.
4- Los espárragos irán provistos de 2 tuercas y 4 arandelas (2 planas y 2 de presión) en cada uno de sus extremos.
5- Cada viga esta conformada por sus canales (2 cuando son dobles) y platinas según el equipo que se va a montar.
6- El nivel N+0 00 corresponde al nivel piso en grava del proyecto.
7- Todos los postes entre los niveles N 7 00 y N 9 00, deben estar unidos como mínimo por una cruceta metálica (sea esta viga de cierre o con equipo eléctrico) con el objeto de lograr que las partes trabajen conjuntamente.
DATOS ADICIONALES
Revisión #
1
Fecha de entrada en vigencia
Actividad de los usuarios
Para hacer comentarios debe iniciar sesión o registrarse aquí