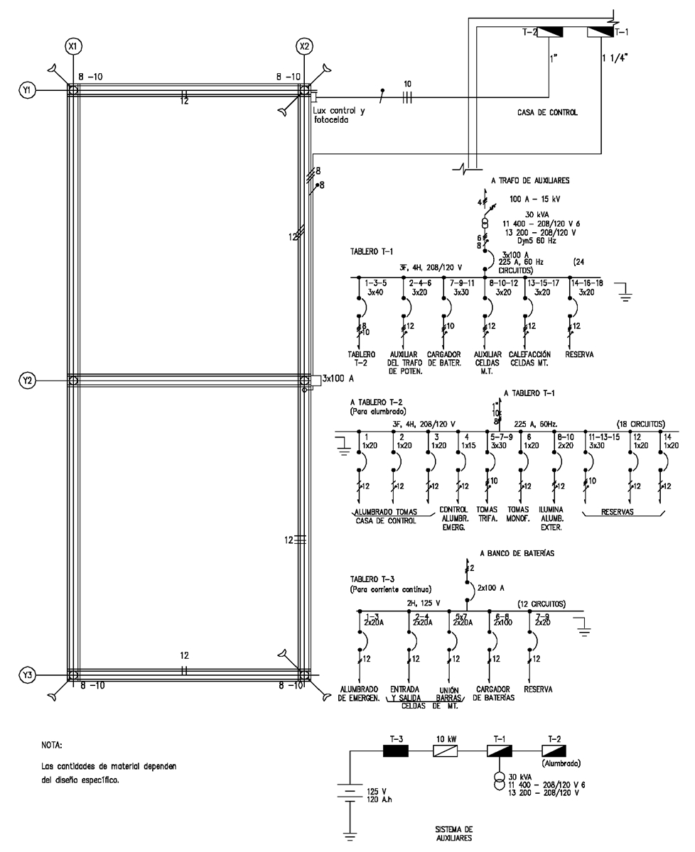
CTR617 Centros de transformación rural 34,5 kV de 2,5 a 10 MVA con celdas. Servicios auxiliares y alumbrado de patio
- Contenido
LISTA DE MATERIALES
| SÍMB. | CANT. | CÓDIGO SAP | ESP. TÉCNICA | DESCRIPCIÓN |
| b 1 | 6 | Soporte para luminaria horizontal vías secundarias | ||
| c 55 | 4 | Conduleta en x tipo intemperie de ¾” | ||
| c 56 | 4 | Conduleta en T tipo intemperie de ¾” | ||
| c 57 | Conduleta en T tipo intemperie ½ " | |||
| F | 6 | 6762325 | ET-810 | Fotocontrol 1000 W / 1800 VA 205/285 V , tipo NC |
| l 1 | 6 | 6762554 | ET-801 | Luminaria de sodio 70 W para vías secundarias |
| o 28 | 60 | ET-116 | Metros de cable de cobre calibre 6 AWG aislado a 600V | |
| o 29 | 6762224 | ET-116 | Metros de cable de cobre calibre 8 AWG aislado a 600 V | |
| o 36 | 60 | ET-116 | Metros de alambre de cobre aislado 10 AWG a 600V | |
| o 37 | ET-116 | Metros de alambre de cobre aislado 12 AWG a 600 V | ||
| q | 6 | 6762336 | ET-820 | Bombilla de sodio 70 W tubular clara |
| x 1 | 12 | 6762233 | ET-601 | Metros de tubo galvanizado de 1” |
| x 2 | 18 | 6762529 | ET-601 | Metros de tubo galvanizado de 1 ¼” |
| x 62 | 6 | Metros de tubo conduit flexible de ¾” | ||
| x 9 | ET-601 | Metros de tubo galvanizado de ¾” | ||
| x 10 | ET-601 | Metros de tubo galvanizado ½ " | ||
| z 41 | 2 | Abrazadera sencilla para brazo de luminaria | ||
| z 42 | 2 | Abrazadera doble para brazo de luminaria | ||
| 1 | Tablero de 18 circuitos, trifásico 225 A, con puerta y directorio (T-2) con interruptores de acuerdo al cuadro de cargas |
DATOS ADICIONALES
Revisión #
1
Fecha de entrada en vigencia
Actividad de los usuarios
Para hacer comentarios debe iniciar sesión o registrarse aquí