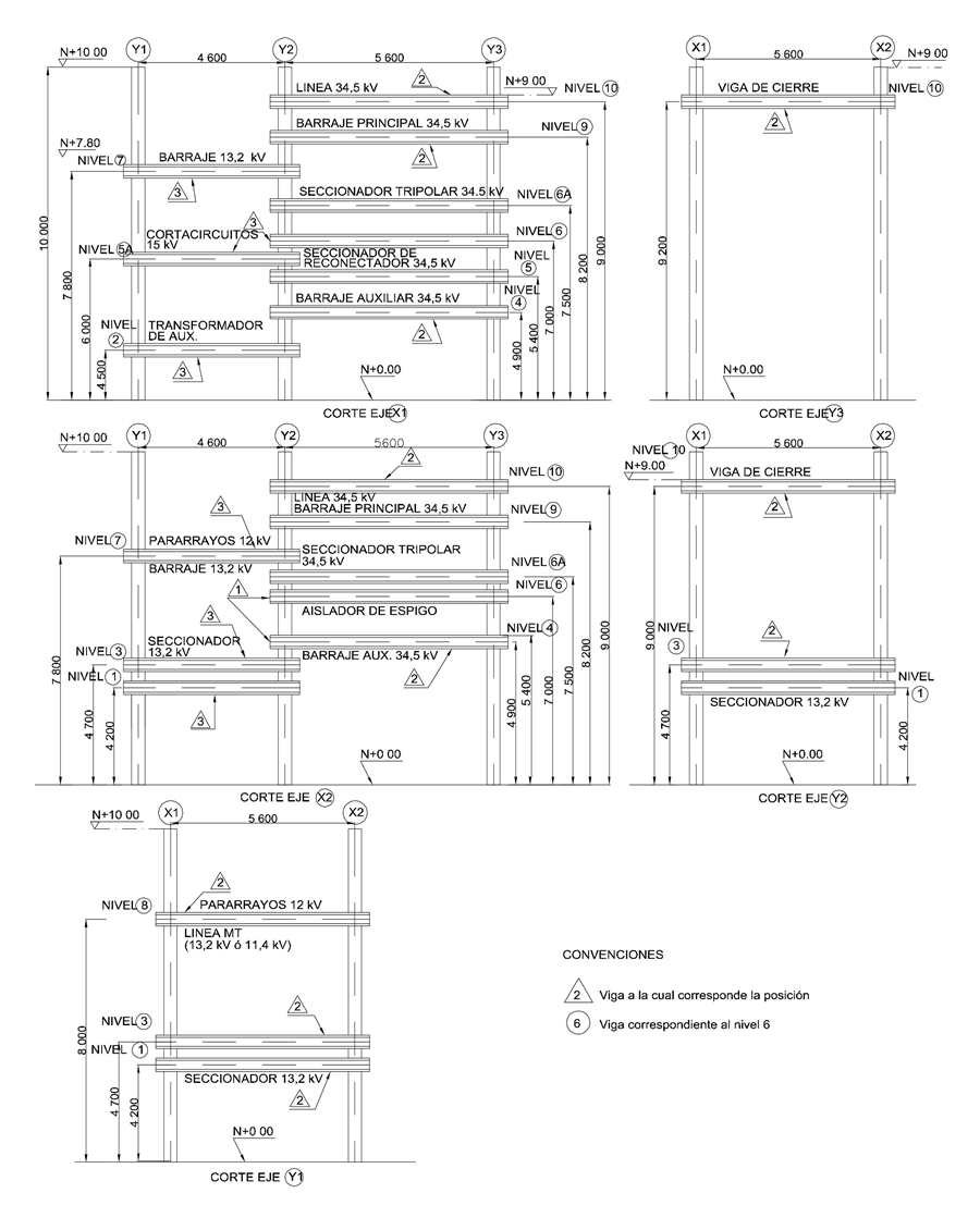
CTR608-1 Centro de transformación rural 34,5 kV de 0,5 a 2,0 MVA. Crucetas metálicas-Cortes
- Contenido
NOTAS
1- Todas las dimensiones están dadas en mm.
2- Los niveles están dados en metros.
3- Los encerrados en triángulo corresponden a las vigas de las crucetas.
4- Cada viga llevará abrazadera por un poste y el tipo de ésta será según al nivel a que corresponda.
5- Los espárragos irán provistos de 2 tuercas y 4 arandelas (2 planas y 2 de presión) en cada uno de sus extremos.
6- El nivel N+0.00 Corresponde al paso grava del proyecto.
7- Todos los postes entre los niveles de N + 7.00 y N + 9.00, deben estar unidos como mínimo por una cruceta metálica (sea esta viga de cierre o con equipo eléctrico) con el objeto de lograr que los postes trabajen conjuntamente.
DATOS ADICIONALES
Revisión #
1
Fecha de entrada en vigencia
Actividad de los usuarios
Para hacer comentarios debe iniciar sesión o registrarse aquí