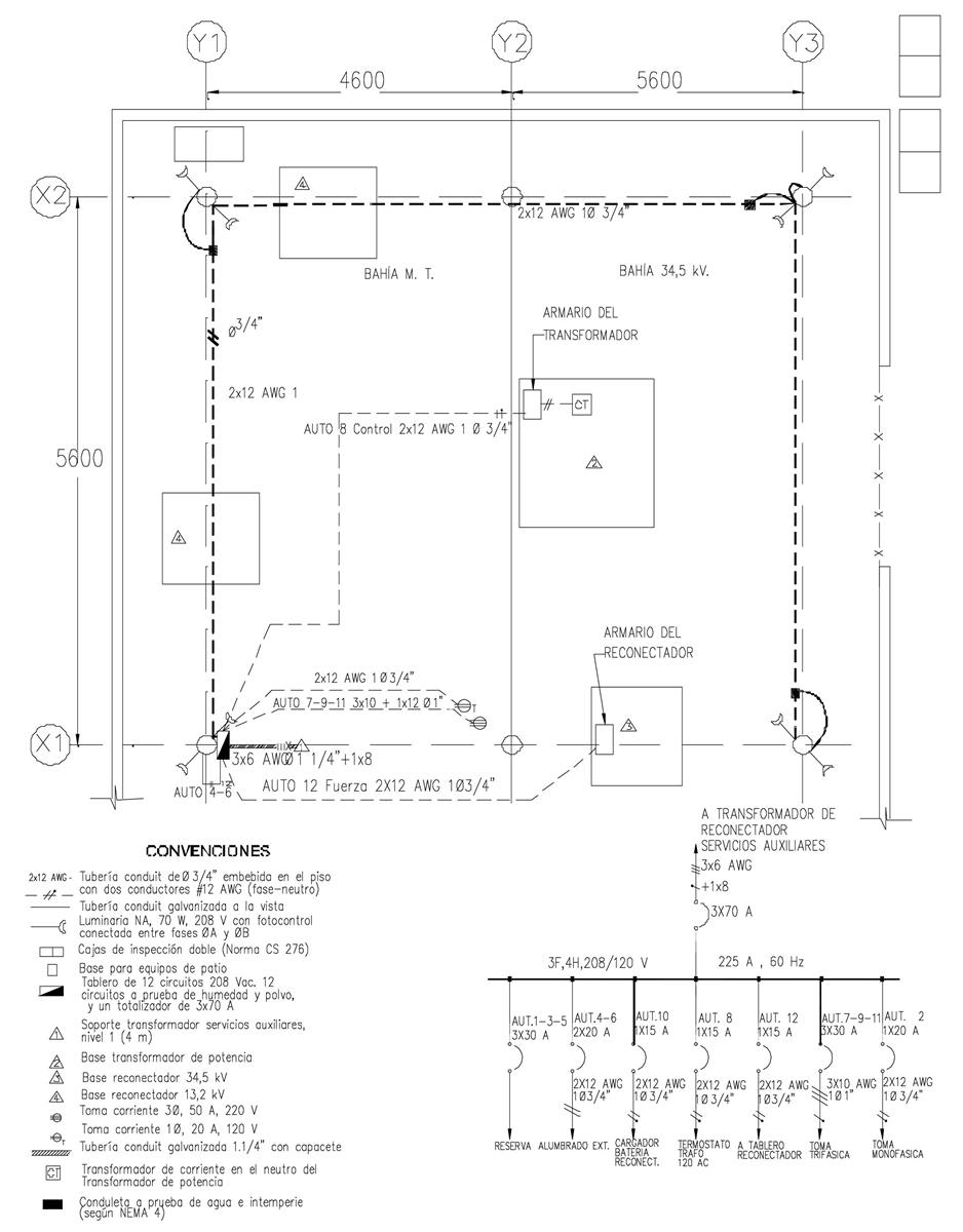
CTR606 Centro de tranformación rural 34,5 kV de 0,5 a 2,0 MVA. Alumbrado de patio y servicios auxiliares
- Contenido
LISTA DE MATERIALES
| SÍMB. | CANT. | CÓDIGO SAP | ESP. TÉCNICA | DESCRIPCIÓN |
| b 1 | 8 | ET-832 | Soporte para luminaria horizontal Phi 3/4”x2 m en vías secundarias | |
| c 55 | 2 | Conduleta en x tipo intemperie de 3/4” | ||
| c 56 | 4 | Conduleta en T tipo intemperie de 3/4” | ||
| j´ 3 | 30 | 6764362 | ET-450 | Hebilla para cinta de acero inoxidable de 5/8” |
| j 3 | 20 | 6762433 | ET-450 | Metros de cinta de acero inoxidable de 5/8”x 0,03” |
| l 1 | 8 | 6762554 | ET-801 | Luminaria de sodio 70 W para vías secundarias |
| o 28 | 10 | ET-116 | Metros de cable de cobre calibre 6 AWG aislado a 600 V | |
| o 35 | 30 | ET-121 | Metros de alambre de cobre calibre 8 AWG | |
| o 36 | 30 | ET-121 | Metros de alambre de cobre calibre 10 AWG | |
| o 37 | 160 | ET-121 | Metros de alambre de cobre calibre 12 AWG | |
| x 1 | 24 | 6762233 | ET-601 | Metros de tubo galvanizado de 1” |
| x 2 | 6 | 6762529 | ET-601 | Metros de tubo galvanizado de 1 1/4” |
| x 31 | 2 | ET-604 | Codo galvanizado 1” x 90º | |
| x 32 | 2 | ET-604 | Codo galvanizado 1 ¼” x 90º | |
| x 39 | 12 | ET-604 | Codo galvanizado ¾” x 90º | |
| x 62 | 4 | Metros de tubo conduit flexible de ¾” | ||
| x 9 | 90 | ET-601 | Metros de tubo galvanizado de ¾” | |
| z 16 | 8 | Abrazadera de 140 mm para soporte de luminaria en vías secundarias | ||
| z 5 | 1 | ET-433 | Abrazadera sin salida tipo 5 | |
| 1 | Tablero de distribución de 208 Vac 12 circuitos a prueba de humedad y polvo | |||
| 1 | Toma corriente trifásico para 50 A , 220 V tipo intemperie. | |||
| 1 | Toma corriente monofásico para 20 A , 120 V tipo intemperie. |
1- Las cantidades mostradas son indicativas, ya que dependen del diseño específico.
DATOS ADICIONALES
Revisión #
1
Fecha de entrada en vigencia
Actividad de los usuarios
Para hacer comentarios debe iniciar sesión o registrarse aquí