CTU610 Obra civil de la trampa de aceite en subestaciones industriales de 34,5 kV tipo exterior

  • Contenido

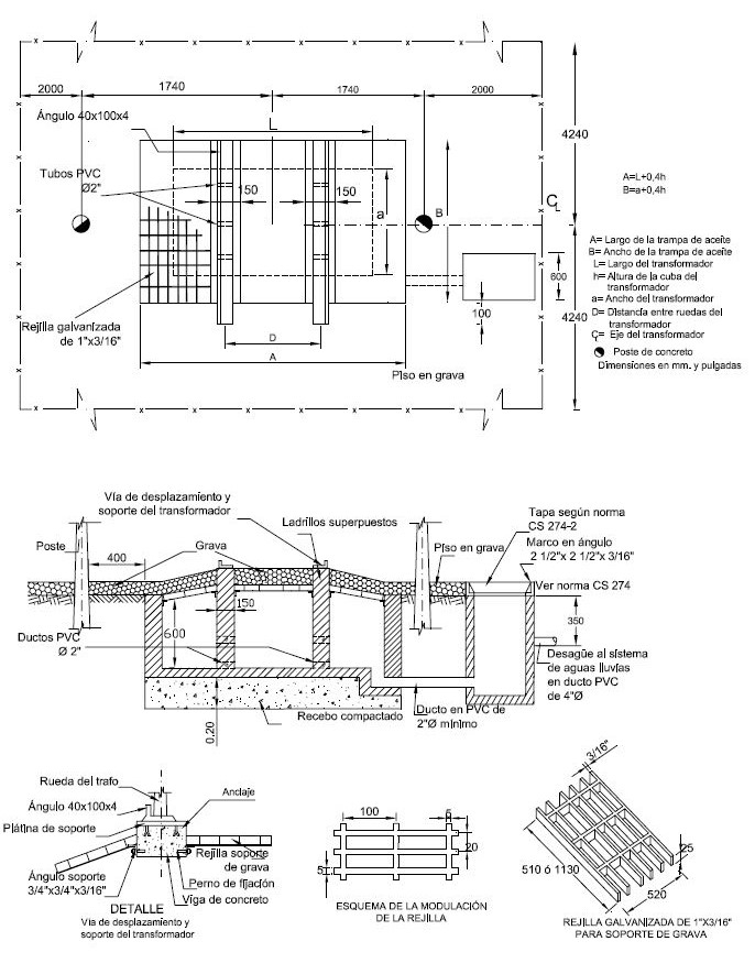
Notas:
  1. Dimensiones en milímetros.
  2. Todo transformador con aceite dieléctrico cuya capacidad sea igual o superior a 112,5 kVA deberá tener un foso para el aceite con capacidad de contener el 100 % del volumen total de aceite del transformador a instalar.

DATOS ADICIONALES
Revisión #

2

Fecha de entrada en vigencia

HERRAMIENTAS
RELACIONADAS

Actividad de los usuarios

Estado del comentario