Pasar al contenido principal
Navegación principal
HOME
NORMAS TÉCNICAS
ESPECIFICACIONES TÉCNICAS LOCALES
ESPECIFICACIONES TÉCNICAS CORPORATIVAS
CONTACTO
Menú de cuenta de usuario
Iniciar sesión
Sobrescribir enlaces de ayuda a la navegación
Inicio
Normas Técnicas
CENTROS DE TRANSFORMACIÓN PARA REDES AEREAS URBANOS Y RURALES
Centros De Transformación Aereos Urbanos Trifásicos
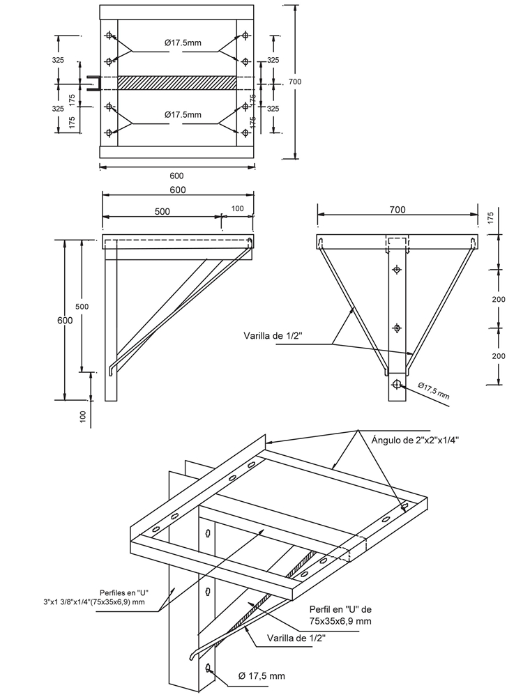
CTU530 Silla Para Soporte De Transformadores De Distribución
CTU530 Silla para soporte de transformadores de distribución
Contenido
DATOS ADICIONALES
Revisión #
0
Fecha de entrada en vigencia
09 Mayo 2000
HERRAMIENTAS
Descargar archivo
RELACIONADAS
Actividad de los usuarios
Para hacer comentarios debe
iniciar sesión
o registrarse
aquí
Estado del comentario
X
×
Actividad de los usuarios
Para hacer comentarios debe iniciar sesión o registrarse aquí