Pasar al contenido principal
Navegación principal
HOME
NORMAS TÉCNICAS
ESPECIFICACIONES TÉCNICAS LOCALES
ESPECIFICACIONES TÉCNICAS CORPORATIVAS
CONTACTO
Menú de cuenta de usuario
Iniciar sesión
Sobrescribir enlaces de ayuda a la navegación
Inicio
Normas Técnicas
ALUMBRADO PÚBLICO
Materiales Y Equipos
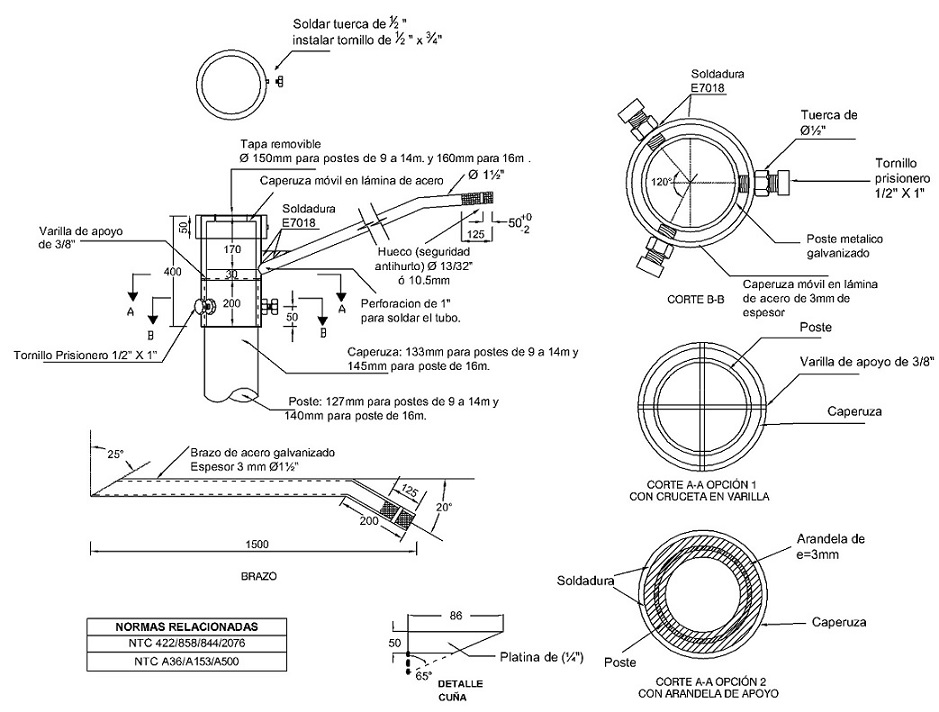
AP808 Soporte Sencillo Ø 1 1/2" Para Poste Metálico Galvanizado
AP808 Soporte sencillo Ø 1 1/2" para poste metálico galvanizado
Contenido
NOTAS:
En la caperuza las varillas de 3/8” se utilizan para el apoyo en el poste y su vez para facilitar el alambrado interno del mismo
DATOS ADICIONALES
Revisión #
4
Fecha de entrada en vigencia
13 Mayo 2014
HERRAMIENTAS
Descargar archivo
RELACIONADAS
Actividad de los usuarios
Para hacer comentarios debe
iniciar sesión
o registrarse
aquí
Estado del comentario
X
×
Actividad de los usuarios
Para hacer comentarios debe iniciar sesión o registrarse aquí