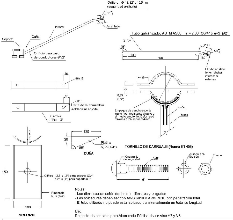
AP806-1 Soporte sencillo con abrazadera para poste de concreto 0,5m
- Contenido
| BRAZADERA | DIAMETRO | NORMAS RELACIONADAS |
| Tipo 2 | 140mm | NTC 422/858/844/2076 - ASTM A36/A153/A500 |
| Tipo 3 | 180mm | |
| Tipo 4 | 200mm |
| CÓDIGO | DESCRIPCIÓN |
| 6780062 | Soporte doble diámetro ¾”, 0,500m con abrazadera tipo 2 |
| 6781362 | Soporte doble diámetro ¾”, 0,500m con abrazadera tipo 3 |
| Soporte doble diámetro ¾”, 0,500m con abrazadera tipo 4 | |
| Soporte doble diámetro 2”, 0,500m con abrazadera tipo 2 | |
| Soporte doble diámetro 2”, 0,500m con abrazadera tipo 3 | |
| Soporte doble diámetro 2”, 0,500m con abrazadera tipo 4 |
DATOS ADICIONALES
Revisión #
6
Fecha de entrada en vigencia
Actividad de los usuarios
Para hacer comentarios debe iniciar sesión o registrarse aquí