Pasar al contenido principal
Navegación principal
HOME
NORMAS TÉCNICAS
ESPECIFICACIONES TÉCNICAS LOCALES
ESPECIFICACIONES TÉCNICAS CORPORATIVAS
CONTACTO
Menú de cuenta de usuario
Iniciar sesión
Sobrescribir enlaces de ayuda a la navegación
Inicio
Normas Técnicas
ALUMBRADO PÚBLICO
Materiales Y Equipos
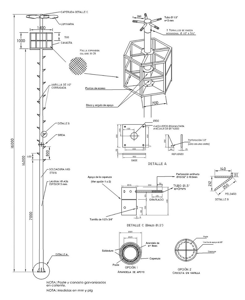
AP805 Poste Metálico De 16 Metros Con Canasta
AP805 Poste metálico de 16 metros con canasta
Contenido
FIGURA 1. POSTE CON DETALLE DE CAPERUZA CON BRAZOS DE 1.5”
FIGURA 2. DETALLE CAPERUZA CON 5 BRAZOS DE 2”
DATOS ADICIONALES
Revisión #
4
Fecha de entrada en vigencia
03 Noviembre 2015
HERRAMIENTAS
Descargar archivo
RELACIONADAS
Actividad de los usuarios
Para hacer comentarios debe
iniciar sesión
o registrarse
aquí
Estado del comentario
X
×
Actividad de los usuarios
Para hacer comentarios debe iniciar sesión o registrarse aquí