AP802 Poste metálico para alumbrado público
- Contenido
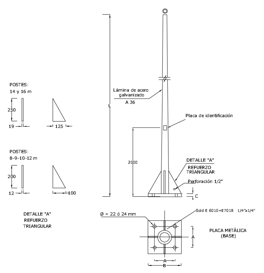
FIGURA 1.
| ASTM | A-36 | A-370 | |
| NTC | 1920 | 2 | 3320 |
| DENOM. | MAT. PRIM. | PRUEB. MEC | TERM. REC |
| NORMAS | |||
| 9 | 127 | 190 | 220 | 3,0 | 12 | 400 | 300 | 22 |
| 10 | 127 | 190 | 200 | 3,0 | 12 | 400 | 300 | 22 |
| 12 | 127 | 195 | 180 | 3,0 | 12 | 400 | 300 | 22 |
| 14 | 127 | 250 | 160 | 3,0 | 19 | 500 | 400 | 24 |
| 16 | 140 | 250 | 4,0 | 19 | 500 | 400 | 24 | |
| LONGITUD (L)m | DIAMETRO CIMA mm | DIAMETRO BASE mm | CARGA ROTURA (KG) | ESPESOR LAMINA mm | [C] ESPESOR BASE mm | [B] ANCHO BASE mm | [A] DISTANCIA ORIFICIOS | DIAMETRO DEL ORIFICIO |
- Las dimensiones estan en milimetros y pulgadas
- Para mayor infomacion ver ET204
Notas:
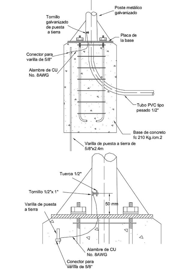
- La base de concreto debe sobresalir 50 mm del suelo cuando se ubique el poste en zonas verdes (Ver figura 2).
- Cuando el poste este ubicado en un andén, la base de concreto deberá quedar al mismo nivel del andén (Ver figura 3).
DETALLE DE PUESTA A TIERRA DEL POSTE METALICO
Buscando garantizar que la conexión sea continua, la varilla de puesta a tierra debe ir dentro de la base de anclaje del poste antes de fundir el concreto.La cabeza del tornillo galvanizado de ½” x 1” debe ir soldada en la parte interna del poste a 50mm de la base. Debe incluir una tuerca de ½” galvanizada en caliente para conexión del cable.
CORTE AA
| 8 | 1100 | 450 | 300 | 400 | 19 (3/4") | 1200 | 22 |
| 9 | 1100 | 450 | 300 | 400 | 19 (3/4") | 1200 | 22 |
| 10 | 1100 | 450 | 300 | 400 | 20 (3/4") | 1200 | 22 |
| 12 | 1300 | 450 | 300 | 400 | 21 (3/4") | 1500 | 22 |
| 14 | 1300 | 550 | 400 | 500 | 22 (7/8") | 1500 | 24 |
| 16 | 1300 | 700 | 400 | 500 | 23 (7/8") | 1500 | 24 |
| ALTURA LIBRE (H) m | LONG. CIMENTACIÓN (H1)mm | D mm | A mm | B mm | PERNO DIAM. Mm | LONG. PERNO mm | DIAMETRO DEL ORIFICIO (mm) |
FIGURA 6.
DATOS ADICIONALES
Revisión #
1
Fecha de entrada en vigencia
Actividad de los usuarios
Para hacer comentarios debe iniciar sesión o registrarse aquí