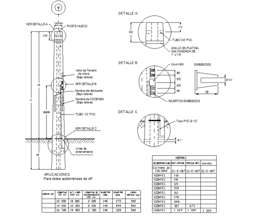
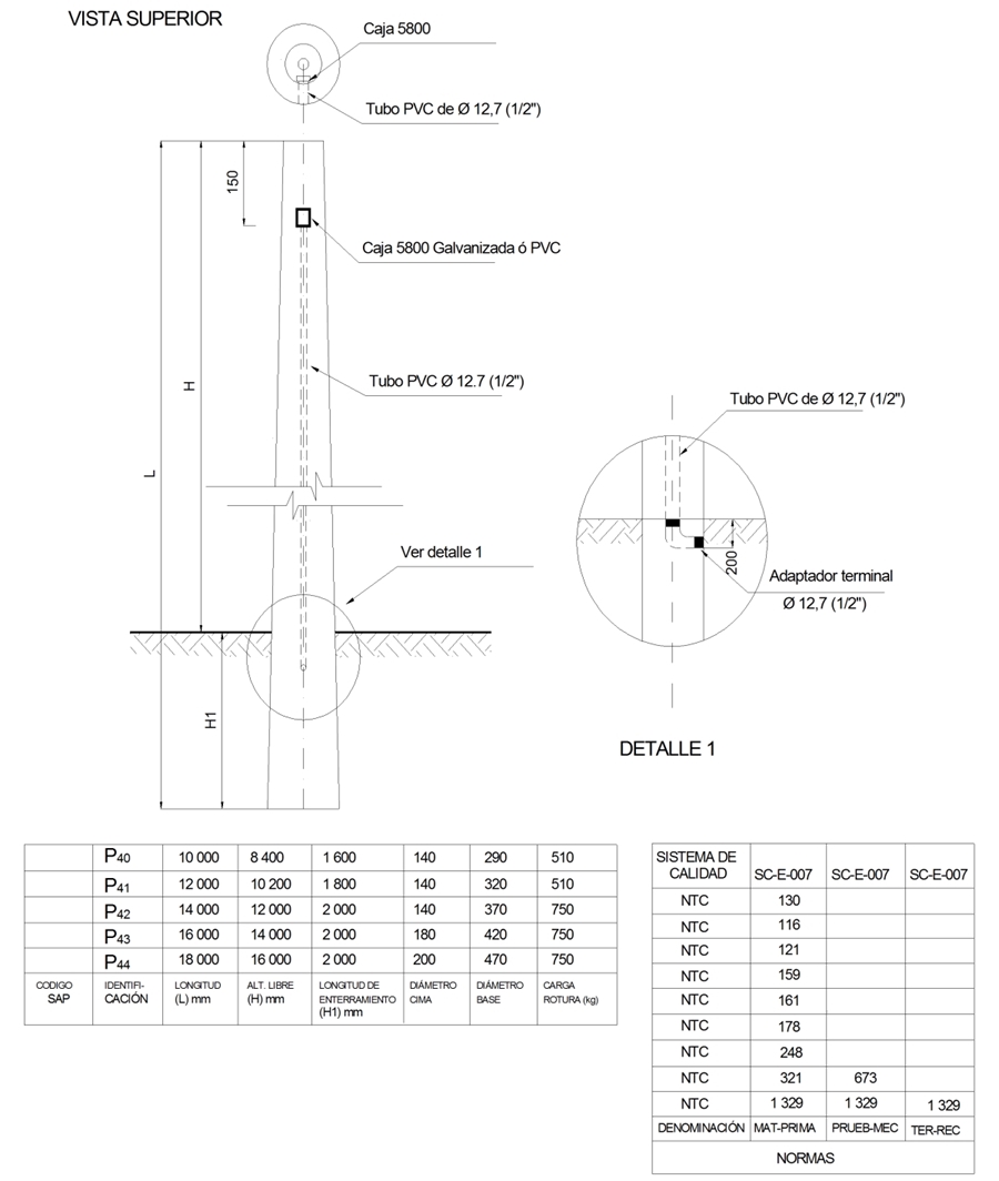
AP801 Postes para alumbrado público
- Contenido
1 CARACTERIZACIÓN GEOMETRICA DE LOS POSTES DE CONCRETO DE AP
Detalles: Ver especificación ET209
Detalles: Ver especificación ET213
Para poste metálico de alumbrado público ver ET-208
Para postes de fibra de alumbrado público ver ET-205
2 LONGITUD DE ENTERRAMIENTO POSTES AP
t= D + 0,1 mD= H/10 + 0,6 m Donde:
t: profundidad de la cimentación
D: Profundidad de enterramiento del poste H: Altura del poste
3 CARACTERIZACIÓN DE LOS TIPOS DE TERRENO
Los tipos de cimentaciones para la presente normativa están de acuerdo con los siguientes tipos de terreno y características:
3.1 Suelos blandos
Corresponde a suelos anegados con nivel freático alto, presencia de suelo vegetal con capa de 50 cm o más, la superficie del fondo de la excavación se puede marcar con el mango de la pala, el material de excavación se puede moldear con facilidad, o suelos sueltos que no permiten mantener las paredes de la excavación.
3.2 Suelos semiblandos
Corresponde a suelos sin presencia de agua en la excavación, que se pueden excavar fácilmente y que los lados de la excavación se mantienen estables, al cortar y al sacar con la paladraga la muestra se desmorona o fluye sin conservar la geometría del corte.
3.3 Suelos semiduros
Corresponde a suelos secos que se componen de arcillo arenoso o arena compacta, permiten el corte manual. Al cortarse con la paladraga permanece el bloque sin desmoronarse.
3.4 Suelos duros
Corresponde a suelos secos compuestos por arenas duras, arenas con gravas consolidadas, rocas, que requieren para su corte equipo de percusión o pesado. Las paredes del corte permanecen estables.
3.5 Propiedades mecánicas de los suelos
Las siguientes son las propiedades mecánicas de los suelos utilizados para el análisis de las cimentaciones:
| Clasificación de los suelos | Tipos de suelos | Capacidad portante | Índice de compresibilidad [1] | Coeficiente de fricción terreno y concreto | Cohesión | Angulo de fricción |
| (kg/cm 2 ) | (kg/cm 3 ) | ° | (kg/cm 2 ) | ° | ||
| Blando | Terrenos muy blandos | 0.5 a 0.8 | 3 a 8 | 0.3 | 15 a 25 | 20 |
| Arena Fina húmeda | ||||||
| Arcilla Blanda | ||||||
| Semiblandos | Arcilla medio dura seca | 0.8 a 1.8 | 8 a 12 | 0.4 | 25 a 50 | 30 |
| Arena fina seca | ||||||
| Semiduro | Arcilla rígida | 1.8 a 2.5 | 12 a 16 | 0.4 | 50 a 100 | 35 |
| Arena gruesa y pedregullo | ||||||
| Duro | Arcilla gruesa dura | >2.5 | > 16 | 0.4 | >100 | 40 |
| Rígido pedregullo y canto rodado |
[1] El índice de compresibilidad se refiere a la profundidad del fondo de la cimentación. Método de Sulzberger, Tadeo Maciejewski, AMIEE.
Aquellas cimentaciones que tengan propiedades del terreno distintas a las anteriores deberán de ser calculadas conforme a sus características particulares.
4 CIMENTACIÓN DE POSTES CONCRETO, METALICOS O FIBRA
No se recomienda utilizar relleno que contenga materia orgánica, basuras, tierra vegetal y terrones de arcilla.Para la cimentación de la postería, en suelos de baja capacidad portante se recomienda la utilización de una mezcla homogénea compacta de recebo-cemento en proporción 10:1; Para suelos normales, el relleno tanto en la base como en los laterales se hará en recebo compactado, y en suelos muy buenos semiduro y duro, la utilización de material proveniente de la excavación.
El relleno utilizado alrededor del poste puede ser de dos tipos:
a. En terrenos normales, se colocará recebo B-0200 compactado en capas de 15 cm en la base y alrededor del poste.
b. En terrenos de baja capacidad portante se usará una mezcla homogénea compacta de relleno B- 0200, en proporción 10:1, la cual debe ser compactada en capas de 15 cm en la base y alrededor del poste.
Se reconstruirá el andén alrededor del poste colocado, con un mismo espesor y calidad de concreto del andén original.
DATOS ADICIONALES
Revisión #
2
Fecha de entrada en vigencia
Actividad de los usuarios
Para hacer comentarios debe iniciar sesión o registrarse aquí