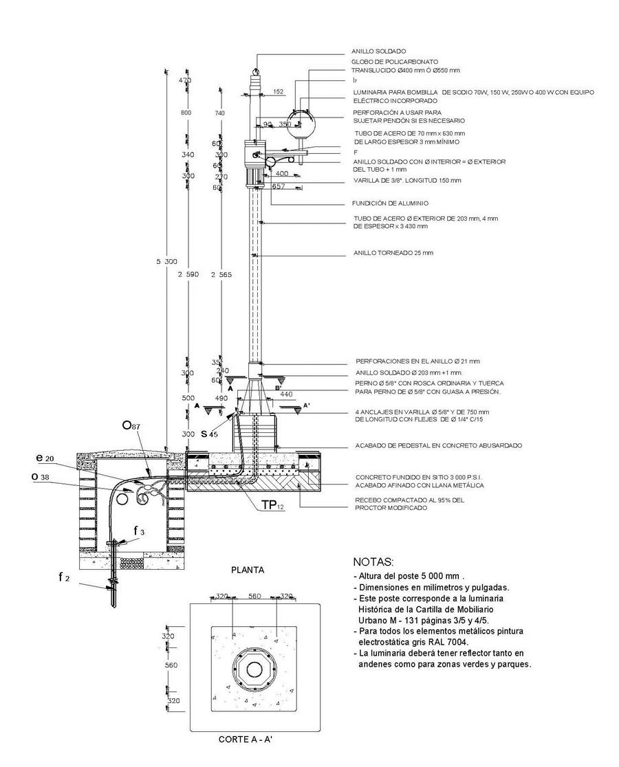
AP334 Instalación poste histórico con brazo sencillo
- Contenido
LISTA DE MATERIALES
| SÍMB. | CANT. | CÓDIGO SAP | ESP. TÉCNICA | DESCRIPCIÓN |
| 1 | AP816 | Poste histórico brazo sencillo | ||
| 1 | AP274 | Caja de inspección para A.P. | ||
| e 20 | 2 | Empalme tipo recto o en derivación | ||
| F | 1 | 6762325 | ET810 | Fotocontrol 1000 W / 1800 VA 185 / 305 V, tipo N.C. |
| l 7 | 1 | 6764381 | Luminaria con refractor esférico en policarbonato con anillo para bombilla de sodio 70 W (Nota 2) | |
| o 38 | 30 | ET123 | Metros de cable de cobre aislado 14 AWG THW a 600V | |
| q | 1 | 6762336 | ET820 | Bombilla de sodio 70 W tubular clara 90 V (Nota 2) |
| TP 10 | 1,5 | ET607 | Metros de ducteria PVC conduit tipo pesado de ½ " | |
| y 40 | 1 | ET-614 | Codo 90° para ducto en PVC de ½ ” (mínimo) | |
| f 2 | 1 | 6762280 | ET490 | Varilla de puesta a tierra f 5/8” x 2.44 m |
| f 3 | 1 | ET490 | Conector para varilla de puesta a tierra 5/8” | |
| o 87 | 1 | ET121 | Metros de alambre de cobre desnudo calibre 8 AWG | |
| S 45 | 1 | 6762178/72 | ET 302 | Conector terminal de compresión tipo pala, 4 AWG (1) |
ALTERNATIVA
1- Utilizar soldadura exotérmica cable -platina
NOTAS
1- La caja de inspección debe ubicarse a una distancia máxima de 1,5 metros medidos desde el poste.
2- La potencia de la luminaria podrá variar dependiendo del diseño (70 W a 400 W).
3- La carcasa de la luminaria debe ir aterrizada.
DATOS ADICIONALES
Revisión #
1
Fecha de entrada en vigencia
Actividad de los usuarios
Para hacer comentarios debe iniciar sesión o registrarse aquí