AP333 Poste metálico para vía vehicular y peatonal (Doble propósito)
- Contenido
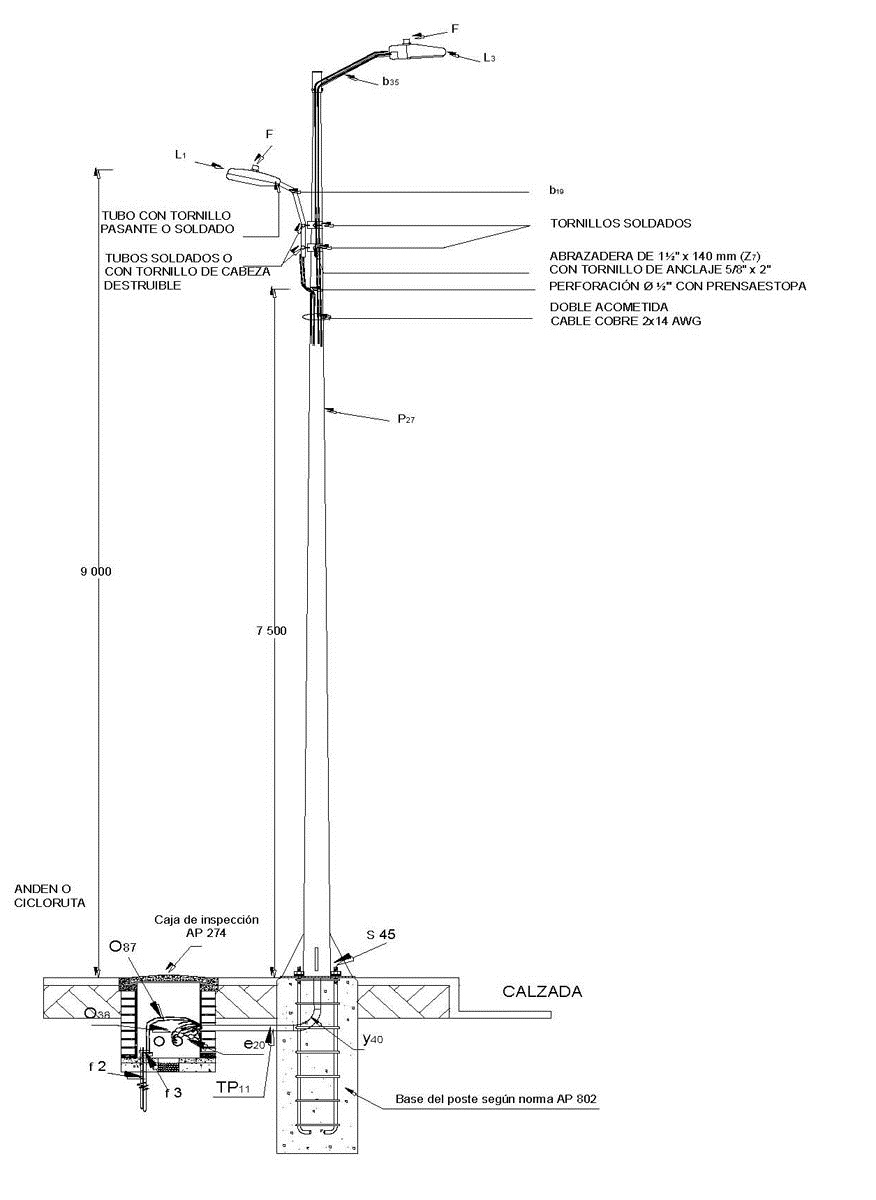
FIGURA 1.
Figura 2. Instalación de luminaria en poste metálico con soporte doble
LISTA DE MATERIALES
| SÍMB. | CANT. | CÓDIGO SAP | ESP. TÉCNICA | DESCRIPCIÓN |
| 1 | AP274 | Caja de inspección para A.P. | ||
| b 35 | 1 | ET204 | Soporte sencillo para luminaría en poste metálico | |
| b 19 | 1 | ET207 | Soporte para luminaria peatonal tipo 2 | |
| e 20 | * | ET708 | Empalme en resina para B.T. | |
| F | * | ET810 | Fotocontrol 1000 W / 1800 VA 185 / 305 V, tipo N.C. | |
| L 2 | 1 | GSCL005 | Luminaria LED para vías secundarias | |
| L 4 | 1 | GSCL005 | Luminaria led para vías principales | |
| o 38 | * | ET123 | Metros de cable de cobre aislado 14 AWG THW a 600V | |
| p 27 | 1 | ET204 | Poste metálico galvanizado de 12 m para A.P. | |
| TP 11 | * | ET607 | Metros de ductería PVC conduit tipo pesado ¾ ” (mínimo) | |
| y 40 | 1 | ET614 | Codo 90° para ducto en PVC de ½ ” | |
| z 7 | * | ET431 | Abrazadera de una salida tipo 1 | |
| t 9 | * | ET456 | Tornillo de carruaje 5/8” x 2” | |
| f 2 | 1 | ET490 | Varilla de puesta a tierra f 5/8” x 2.44 m | |
| f 3 | 1 | ET490 | Conector para varilla de puesta a tierra 5/8” | |
| o 87 | * | ET121 | Metros de alambre de cobre desnudo calibre 8 AWG | |
| S 45 | 1 | ET302 | Conector terminal de compresión tipo pala, 4 AWG (1) |
ALTERNATIVAS:
(1) Utilizar soldadura exotérmica cable -platina.
NOTAS:
- La caja de inspección debe ubicarse a una distancia máxima de 1,5 metros medidos desde el poste.
- Los conductores de acometida deben ser independientes para cada luminaria .
- Altura del poste: 12, 14 y 16 m
- Para todos los elementos metálicos pintura electrostática color gris RAL 7004.
- Cuando el poste se instale en zonas verdes deberá tener un pedestal de 50 mm tal como lo indica la Norma AP802 (Figura 1).
- La carcasa de la luminaria debe ir aterrizada.
DATOS ADICIONALES
Revisión #
2
Fecha de entrada en vigencia
Actividad de los usuarios
Para hacer comentarios debe iniciar sesión o registrarse aquí