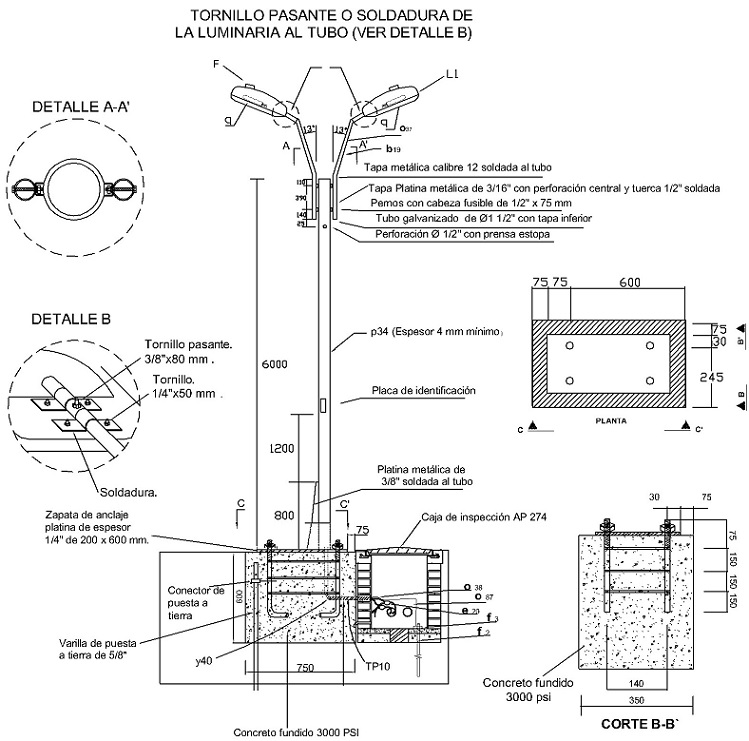
AP331 Luminaria peatonal doble en poste metálico de 4”
- Contenido
NOTAS:
-Altura total del poste 6000 mm.
-Pintura de todos los elementos metálicos color gris Ral 7004.
-Dimensiones en milímetros y pulgadas.
-Esta noma tiene como referencia la instalación de “luminaria peatonal doble ” de la cartilla del mobiliario urbano M-130.
-En zonas verdes el pedestal debe sobresalir 100 mm del poste para evitar oxidaciones.
LISTA DE MATERIALES
| SÍMB. | CANT. | CÓDIGO SAP | ESP. TECNICA | DESCRIPCIÓN |
| 1 | AP-274 | Caja de inspección para A.P. | ||
| b 19 | 2 | ET-207 | Soporte para luminaria peatonal tipo 2 | |
| e 20 | 4 | 6762545 | ET-708 | empalme en resina para BT |
| F | 2 | 6762325 | ET-810 | Fotocontrol 1000 W / 1800 VA 205 / 285 V, tipo N.C. |
| l 1 | 2 | 6762554 | ET-801 | luminaria de sodio 70 W |
| o 38 | 36 | ET-123 | Metros de alambre de cobre aislado 14 AWG THW a 600V | |
| q | 2 | 6762336 | ET-820 | bombilla de sodio 70 W tubular clara 90 V |
| p 34 | 1 | ET-207 | Poste metálico galvanizado 4" de 6 m para A.P. | |
| TP 10 | 1.5 | ET-607 | Metros de ductería PVC conduit tipo pesado ½ ” | |
| y 40 | 1 | ET-614 | Codo de 90° para ducto en PVC de ½ ” | |
| f 2 | 1 | 6762280 | ET-490 | Vatilla de puesta a tierra Phi 5/8” x 2.44 m |
| f 3 | 1 | ET-490 | Conector para varilla de puesta a tierra 5/8” | |
| o 87 | 1 | ET121 | Metros de alambre de cobre desnudo calibre 8 AWG | |
| S 45 | 1 | 6762178/72 | ET-302 | Conector terminal de compresión tipo pala, 4 AWG (1) |
| o 37 | ET-116 | Metros de alambre de cobre aislado 12 AWG a 600 V |
1- Utilizar soldadura exotérmica cable-platina.
NOTAS
2- La carcasa de la luminaria debe ir aterrizada.
DATOS ADICIONALES
Revisión #
3
Fecha de entrada en vigencia
Actividad de los usuarios
Para hacer comentarios debe iniciar sesión o registrarse aquí