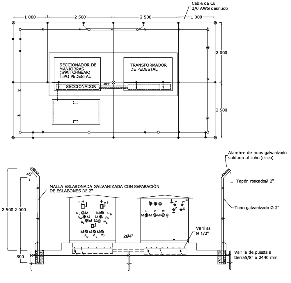
AP524 Centro de transformación de pedestal para A.P. Malla de puesta a tierra
- Contenido
Notas:
- El diseño de malla de puesta a tierra propuesto en esta norma es indicativo, por tanto, para ser implementado en proyectos, debe verificarse por medio de cálculos, que los valores de resistencia de puesta a tierra aseguren unas tensiones de toque y paso que no sean peligrosas para el ser humano ni para los equipos. Se recomienda utilizar el procedimiento de cálculo indicado en la norma IEEE 80.
- La presente norma aplica para instalaciones existentes.
DATOS ADICIONALES
Revisión #
1
Fecha de entrada en vigencia
Actividad de los usuarios
Para hacer comentarios debe iniciar sesión o registrarse aquí