AP200 Distribución típica de ductos y cámaras

  • Contenido

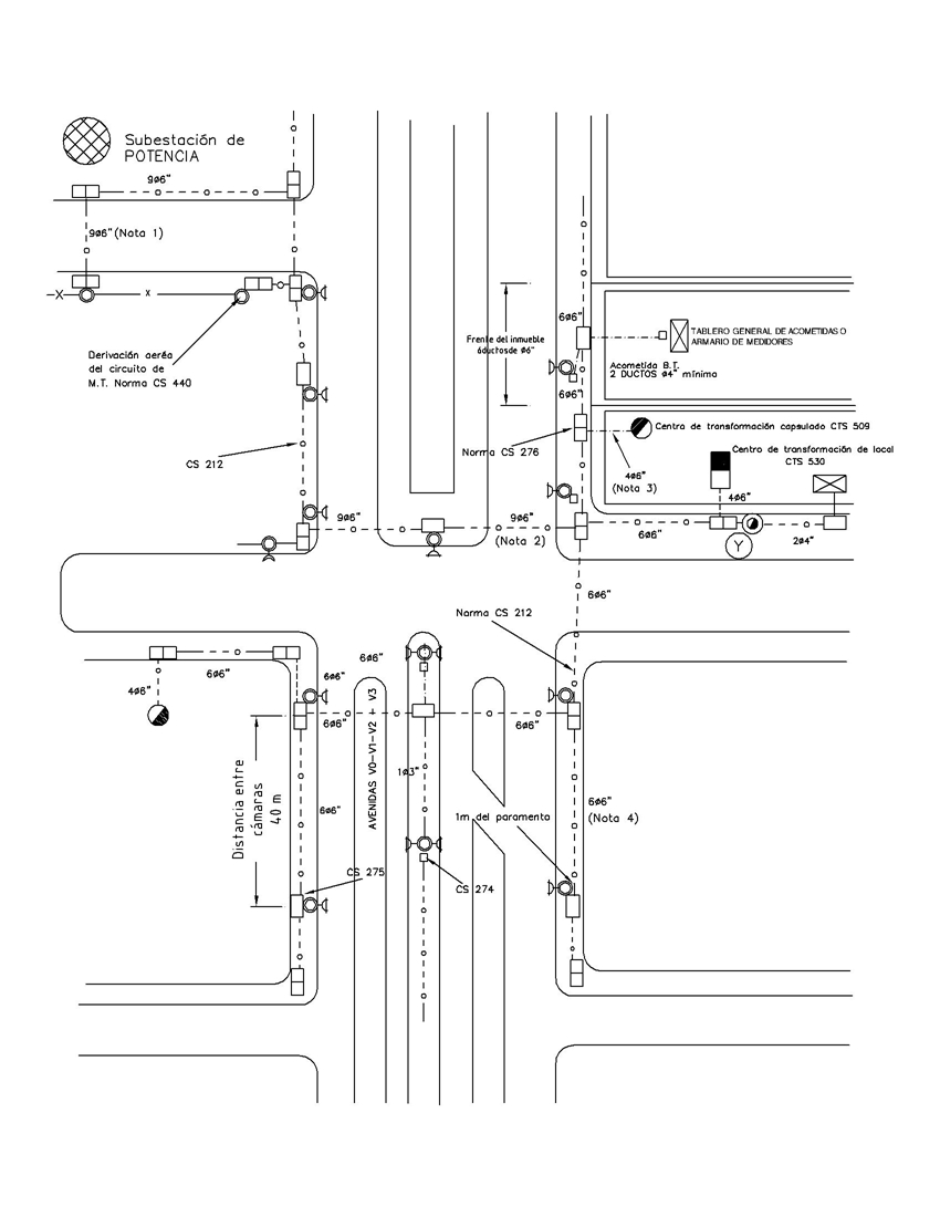
DISTRIBUCIÓN TÍPICA DE DUCTOS Y CÁMARAS:

1. En las subestaciones de Potencia, la salida de los circuitos de MT y 34,5 kV utilizan bancos de nueve (9) ductos de 6”. Cuando se requiera más ductos se construirán otro(s) banco(s) de nueve (9) ductos independientes.

2. En los cruces de vías arterias Vo, V1, V2 y V3 se utilizarán bancos ductos de 9ø6”. Se instalarán los cruces como mínimo cada 500 m. Otros cruces de vías locales en 6ø6”.

3. Para proyectos de desarrollo urbanístico nuevo se utilizará bancos de ductos de 6”.El ingreso a la subestación desde el frente del inmueble exterior también será en ductos de 4ø6".

4. En frente de inmuebles de proyectos nuevos, si la canalización existente es de 4”, la continuación y derivación se realizará en banco de ductos de 4”, excepto si hay proyectos de expansión de la compañía en la ruta que indiquen el uso de bancos de ductos de 6”.

5. En proyectos donde se tenga dentro del predio varias subestaciones ubicadas en locales distantes, la alimentación de estas subestaciones se realizara en 2 ductos de 4”.

6. De la Subestación al TGA se utilizarán los ductos de acuerdo a lo que indique el calibre a utilizar según diseño.
DATOS ADICIONALES
Revisión #

1

Fecha de entrada en vigencia

HERRAMIENTAS
RELACIONADAS

Actividad de los usuarios

Estado del comentario