Pasar al contenido principal
Navegación principal
HOME
NORMAS TÉCNICAS
ESPECIFICACIONES TÉCNICAS LOCALES
ESPECIFICACIONES TÉCNICAS CORPORATIVAS
CONTACTO
Menú de cuenta de usuario
Iniciar sesión
Sobrescribir enlaces de ayuda a la navegación
Inicio
Normas Técnicas
ACOMETIDAS Y MEDIDORES
Sistemas De Emergencia Instalados Por El Cliente
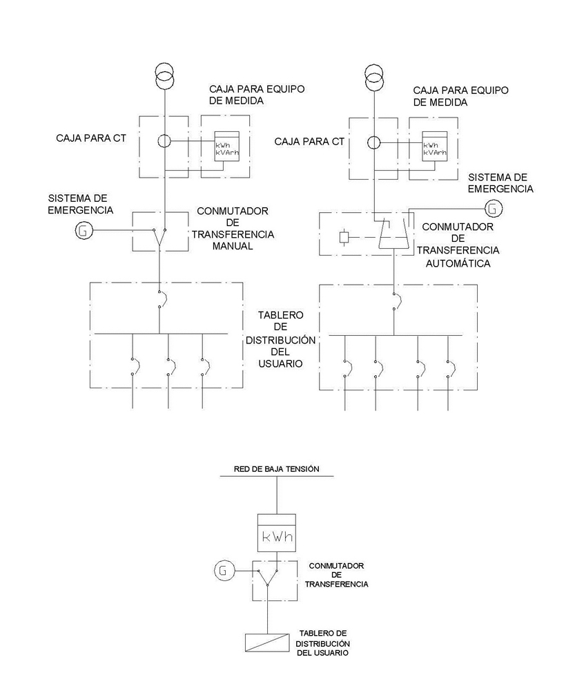
AE602 Transferencia De Planta De Emergencia Después Del Equipo De Medida En B.T.
AE602 Transferencia de planta de emergencia después del equipo de medida en B.T.
Contenido
DATOS ADICIONALES
Revisión #
1
Fecha de entrada en vigencia
27 Diciembre 2010
HERRAMIENTAS
Descargar archivo
RELACIONADAS
Actividad de los usuarios
Para hacer comentarios debe
iniciar sesión
o registrarse
aquí
Estado del comentario
X
×
Actividad de los usuarios
Para hacer comentarios debe iniciar sesión o registrarse aquí